Ballymunterhiggins, Ballyshannon, Co. Donegal
€50,000
Office Space
- Available From:Immediately
About this property
Description
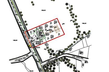
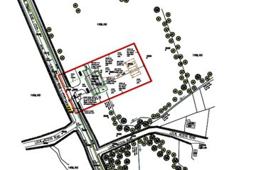
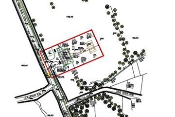
New to the Market Circa 0.790 acre site with full planning permission for a 3-bed, single storey residence extending to c. 244 sq. mtr home with attached garage. Planning Ref. 25/60434. The site is located just 3.7 km from Ballyshannon town.
The local area
The local area
Local schools and transport

Learn more about what this area has to offer.
School Name | Distance | Pupils | |||
|---|---|---|---|---|---|
| School Name | Holy Family National School | Distance | 2.8km | Pupils | 183 |
| School Name | Kilbarron National School | Distance | 2.9km | Pupils | 32 |
| School Name | Scoil Chaitríona Ballyshannon | Distance | 3.2km | Pupils | 82 |
School Name | Distance | Pupils | |||
|---|---|---|---|---|---|
| School Name | Gaelscoil Éirne | Distance | 3.4km | Pupils | 28 |
| School Name | Rockfield National School | Distance | 4.7km | Pupils | 42 |
| School Name | Creevy National School | Distance | 5.7km | Pupils | 224 |
| School Name | St Macartan's National School | Distance | 5.9km | Pupils | 282 |
| School Name | Four Masters National School | Distance | 7.1km | Pupils | 266 |
| School Name | Ballaghameehan National School | Distance | 11.5km | Pupils | 34 |
| School Name | Robertson National School | Distance | 12.5km | Pupils | 64 |
School Name | Distance | Pupils | |||
|---|---|---|---|---|---|
| School Name | Coláiste Cholmcille | Distance | 3.3km | Pupils | 700 |
| School Name | Magh Ene College | Distance | 5.8km | Pupils | 354 |
| School Name | St. Clare's Comprehensive School | Distance | 19.1km | Pupils | 519 |
School Name | Distance | Pupils | |||
|---|---|---|---|---|---|
| School Name | Abbey Vocational School | Distance | 20.1km | Pupils | 999 |
| School Name | Grange Post Primary School | Distance | 23.4km | Pupils | 281 |
| School Name | St. Catherine's Vocational School | Distance | 24.4km | Pupils | 366 |
| School Name | Ballinode College | Distance | 27.8km | Pupils | 246 |
| School Name | Sligo Grammar School | Distance | 28.4km | Pupils | 495 |
| School Name | Mercy College | Distance | 29.1km | Pupils | 676 |
| School Name | Ursuline College | Distance | 29.3km | Pupils | 632 |
Type | Distance | Stop | Route | Destination | Provider | ||||||
|---|---|---|---|---|---|---|---|---|---|---|---|
| Type | Bus | Distance | 3.0km | Stop | Ballyshannon | Route | 964 | Destination | Galway Cathedral | Provider | Bus Feda Teoranta |
| Type | Bus | Distance | 3.0km | Stop | Ballyshannon | Route | 964 | Destination | Rahylin Glebe | Provider | Bus Feda Teoranta |
| Type | Bus | Distance | 3.0km | Stop | Ballyshannon | Route | 483 | Destination | Sligo | Provider | Bus Éireann |
Type | Distance | Stop | Route | Destination | Provider | ||||||
|---|---|---|---|---|---|---|---|---|---|---|---|
| Type | Bus | Distance | 3.0km | Stop | Ballyshannon | Route | 292 | Destination | Ballyshannon | Provider | Tfi Local Link Donegal Sligo Leitrim |
| Type | Bus | Distance | 3.0km | Stop | Ballyshannon | Route | 983 | Destination | Manorhamilton | Provider | Tfi Local Link Donegal Sligo Leitrim |
| Type | Bus | Distance | 3.0km | Stop | Ballyshannon | Route | 982 | Destination | Sligo Station | Provider | Tfi Local Link Donegal Sligo Leitrim |
| Type | Bus | Distance | 3.0km | Stop | Ballyshannon | Route | 983 | Destination | Kinlough | Provider | Tfi Local Link Donegal Sligo Leitrim |
| Type | Bus | Distance | 3.0km | Stop | Ballyshannon | Route | 264 | Destination | Ballyshannon | Provider | Tfi Local Link Donegal Sligo Leitrim |
| Type | Bus | Distance | 3.0km | Stop | Ballyshannon | Route | 64 | Destination | Sligo | Provider | Bus Éireann |
| Type | Bus | Distance | 3.0km | Stop | Ballyshannon | Route | 480 | Destination | Sligo | Provider | Bus Éireann |
Statistics
- 12/11/2025Entered
- 28Property Views
Daft ID: 524049756
Contact Agent
