Ballynabrigadane, Kilmallock, Ballymurn, Co. Wexford
€55,000
- Selling Type:By Private Treaty
- Available From:Immediately
About Ballynabrigadane, Kilmallock
Description
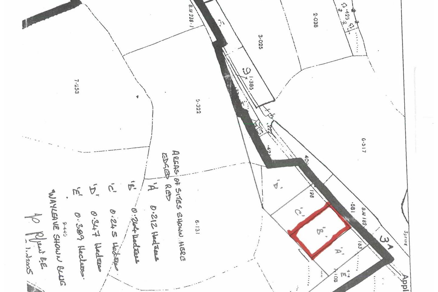
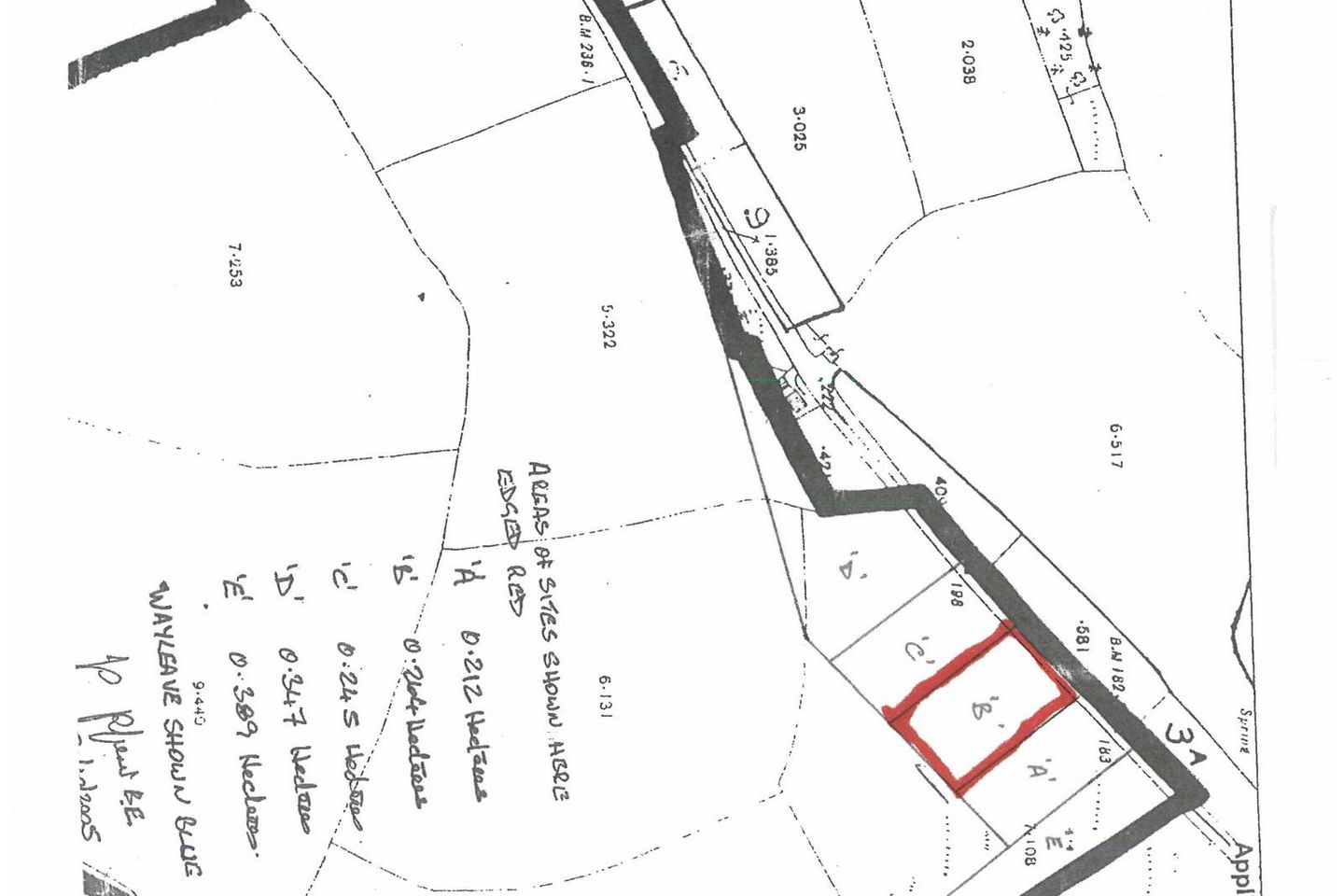
Superb c.0.65 acre site subject to full planning permission located near the village of Ballymurn. Good level site, located near the village of Ballymurn, convenient to all the amenities of Ballymurn village such as school, shop/filling station, licenced premises and church. This site did have full planning permission in 2004 - this has now expired. The site is also located 10 minutes from Enniscorthy town and 20 minutes from Wexford town. SUBJECT TO PLANNING PERMISSION - LOCAL NEEDS APPLY Directions: From Enniscorthy town, proceed through the village of Glenbrien. On entering the village of Ballymurn, take a left at the filling station, continue down this road and the site is on the right with a sign on it.
The local area of Ballynabrigadane, Kilmallock
Local schools and transport

Learn more about what this area has to offer.
School Name | Distance | Pupils | |||
|---|---|---|---|---|---|
| School Name | Ballymurn National School | Distance | 1.2km | Pupils | 116 |
| School Name | Glenbrien National School | Distance | 3.3km | Pupils | 96 |
| School Name | Ballaghkeene National School | Distance | 4.3km | Pupils | 142 |
School Name | Distance | Pupils | |||
|---|---|---|---|---|---|
| School Name | Oylegate National School | Distance | 5.0km | Pupils | 145 |
| School Name | Screen National School | Distance | 5.4km | Pupils | 123 |
| School Name | Castlebridge National School | Distance | 6.8km | Pupils | 219 |
| School Name | Crossabeg National School | Distance | 7.3km | Pupils | 214 |
| School Name | Blackwater National School | Distance | 7.7km | Pupils | 232 |
| School Name | Curracloe National School | Distance | 7.7km | Pupils | 87 |
| School Name | Oulart National School | Distance | 7.8km | Pupils | 138 |
School Name | Distance | Pupils | |||
|---|---|---|---|---|---|
| School Name | Meanscoil Gharman | Distance | 6.7km | Pupils | 228 |
| School Name | Coláiste Bríde | Distance | 9.1km | Pupils | 753 |
| School Name | St Mary's C.b.s. | Distance | 9.2km | Pupils | 772 |
School Name | Distance | Pupils | |||
|---|---|---|---|---|---|
| School Name | Enniscorthy Community College | Distance | 10.9km | Pupils | 472 |
| School Name | Loreto Secondary School | Distance | 11.6km | Pupils | 930 |
| School Name | Selskar College (coláiste Sheilscire) | Distance | 11.8km | Pupils | 390 |
| School Name | Presentation Secondary School | Distance | 12.4km | Pupils | 981 |
| School Name | St. Peter's College | Distance | 12.6km | Pupils | 784 |
| School Name | Christian Brothers Secondary School | Distance | 12.7km | Pupils | 721 |
| School Name | Coláiste An Átha | Distance | 13.8km | Pupils | 366 |
Type | Distance | Stop | Route | Destination | Provider | ||||||
|---|---|---|---|---|---|---|---|---|---|---|---|
| Type | Bus | Distance | 4.6km | Stop | Ballaghkeen | Route | 884 | Destination | Main Street | Provider | Wexford Bus |
| Type | Bus | Distance | 5.4km | Stop | Oilgate | Route | 859 | Destination | Wexford Business Park | Provider | Wexford Bus |
| Type | Bus | Distance | 5.4km | Stop | Oilgate | Route | 740 | Destination | Wexford O'Hanrahan Station | Provider | Wexford Bus |
Type | Distance | Stop | Route | Destination | Provider | ||||||
|---|---|---|---|---|---|---|---|---|---|---|---|
| Type | Bus | Distance | 5.5km | Stop | Oilgate | Route | 2 | Destination | Dublin Airport | Provider | Bus Éireann |
| Type | Bus | Distance | 5.5km | Stop | Oilgate | Route | 376 | Destination | Tyndall College | Provider | Wexford Bus |
| Type | Bus | Distance | 5.5km | Stop | Oilgate | Route | 132 | Destination | Dublin | Provider | Bus Éireann |
| Type | Bus | Distance | 5.5km | Stop | Oilgate | Route | 740x | Destination | Dublin Airport Zone 16 Bay 21 | Provider | Wexford Bus |
| Type | Bus | Distance | 6.8km | Stop | Fairyhill | Route | 877 | Destination | Wexford O'Hanrahan Station | Provider | Wexford Bus |
| Type | Bus | Distance | 7.3km | Stop | Castlebridge | Route | 379 | Destination | Wexford | Provider | Bus Éireann |
| Type | Bus | Distance | 7.4km | Stop | Castlebridge | Route | 877 | Destination | Wexford O'Hanrahan Station | Provider | Wexford Bus |
Ad performance
- Date listed25/10/2024
- Views1,251
Daft ID: 520251687
