Barrymore, Hodson Bay, Athlone, Co. Roscommon
Price on Application
- Available From:Immediately
About this property
Description
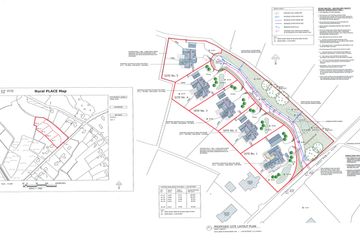
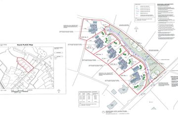
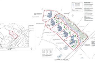
Hodson Bay- An exceptional site measuring approx. 3.311 acres, located in the highly sought-after area of Hodson Bay. This property boasts full planning permission for the construction of five detached luxury homes, offering a unique opportunity for developers or investors. Situated in a picturesque and tranquil setting, this site combines scenic surroundings with excellent development potential. Don`t miss the chance to create a premium residential enclave in this prime location. Hodson Bay, located just outside Athlone, is a picturesque and tranquil area known for its stunning natural beauty and close proximity to Lough Ree. This sought-after location offers a perfect blend of peaceful countryside living with easy access to Athlone town`s amenities, including schools, shopping, and dining options. The area is a haven for outdoor enthusiasts, with boating, fishing, and scenic walking trails readily available. Hodson Bay is also home to the renowned Hodson Bay Hotel and golf courses, making it a desirable location for those seeking a balanced lifestyle both relaxation and recreation. Its idyllic charm and connectivity make Hodson Bay a prime residential location. Folio number RN15141F. Measuring 3.311 Acres. With full planning permission for 5 Detached Luxury homes. Services : 0
Standard features
The local area
The local area
Local schools and transport

Learn more about what this area has to offer.
| School Name | Distance | Pupils | |||
|---|---|---|---|---|---|
| School Name | St. Peter's National School | Distance | 300m | Pupils | 129 | 
| School Name | St Paul's National School | Distance | 400m | Pupils | 129 | 
| School Name | St Marys National School | Distance | 480m | Pupils | 586 | 
| School Name | Distance | Pupils | |||
|---|---|---|---|---|---|
| School Name | St. Hilda's Special School | Distance | 670m | Pupils | 58 | 
| School Name | Dean Kelly National School | Distance | 910m | Pupils | 93 | 
| School Name | Athlone Mixed National School | Distance | 930m | Pupils | 56 | 
| School Name | Scoil Na Gceithre Máistrí | Distance | 1.5km | Pupils | 219 | 
| School Name | Coosan National School | Distance | 2.5km | Pupils | 414 | 
| School Name | Cornamaddy Cns | Distance | 2.8km | Pupils | 308 | 
| School Name | Summerhill National School | Distance | 3.5km | Pupils | 249 | 
| School Name | Distance | Pupils | |||
|---|---|---|---|---|---|
| School Name | Marist College | Distance | 940m | Pupils | 608 | 
| School Name | Our Lady's Bower | Distance | 1.2km | Pupils | 638 | 
| School Name | Athlone Community College | Distance | 1.4km | Pupils | 1161 | 
| School Name | Distance | Pupils | |||
|---|---|---|---|---|---|
| School Name | Coláiste Chiaráin | Distance | 3.6km | Pupils | 958 | 
| School Name | Moate Community School | Distance | 14.5km | Pupils | 910 | 
| School Name | Gallen Community School Ferbane | Distance | 18.7km | Pupils | 433 | 
| School Name | Ballymahon Vocational School | Distance | 19.6km | Pupils | 420 | 
| School Name | Mercy Secondary School | Distance | 19.7km | Pupils | 760 | 
| School Name | Ardscoil Mhuire | Distance | 23.3km | Pupils | 481 | 
| School Name | Garbally College | Distance | 23.3km | Pupils | 460 | 
| Type | Distance | Stop | Route | Destination | Provider | ||||||
|---|---|---|---|---|---|---|---|---|---|---|---|
| Type | Bus | Distance | 80m | Stop | Northgate Street | Route | A2 | Destination | Bealnamulla | Provider | Bus Éireann | 
| Type | Bus | Distance | 80m | Stop | Northgate Street | Route | 548 | Destination | Loughrea | Provider | Tfi Local Link Galway | 
| Type | Bus | Distance | 80m | Stop | Northgate Street | Route | A1 | Destination | Bealnamulla | Provider | Bus Éireann | 
| Type | Distance | Stop | Route | Destination | Provider | ||||||
|---|---|---|---|---|---|---|---|---|---|---|---|
| Type | Bus | Distance | 170m | Stop | Northgate Street | Route | 548 | Destination | Athlone | Provider | Tfi Local Link Galway | 
| Type | Bus | Distance | 170m | Stop | Northgate Street | Route | A1 | Destination | Athlone | Provider | Bus Éireann | 
| Type | Bus | Distance | 170m | Stop | Northgate Street | Route | Ai01 | Destination | Longford Centre | Provider | Farrelly's Coaches | 
| Type | Bus | Distance | 170m | Stop | Northgate Street | Route | A2 | Destination | Athlone | Provider | Bus Éireann | 
| Type | Bus | Distance | 170m | Stop | Northgate Street | Route | Ai01 | Destination | Northgate Street | Provider | Farrelly's Coaches | 
| Type | Bus | Distance | 210m | Stop | Castle Street | Route | A1 | Destination | Bealnamulla | Provider | Bus Éireann | 
| Type | Bus | Distance | 220m | Stop | Luan Gallery | Route | 548 | Destination | Athlone | Provider | Tfi Local Link Galway | 
Statistics
- 31/10/2025Entered
- 81Property Views
Daft ID: 523969616