Creche, Coleville Woods, Clonmel, Co. Tipperary
Price on Application
- Available From:Immediately
About this property
Description
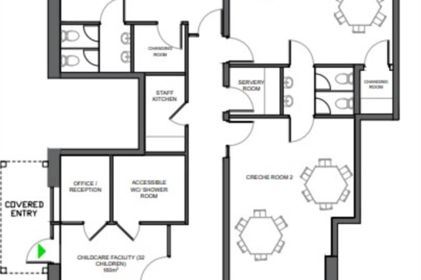
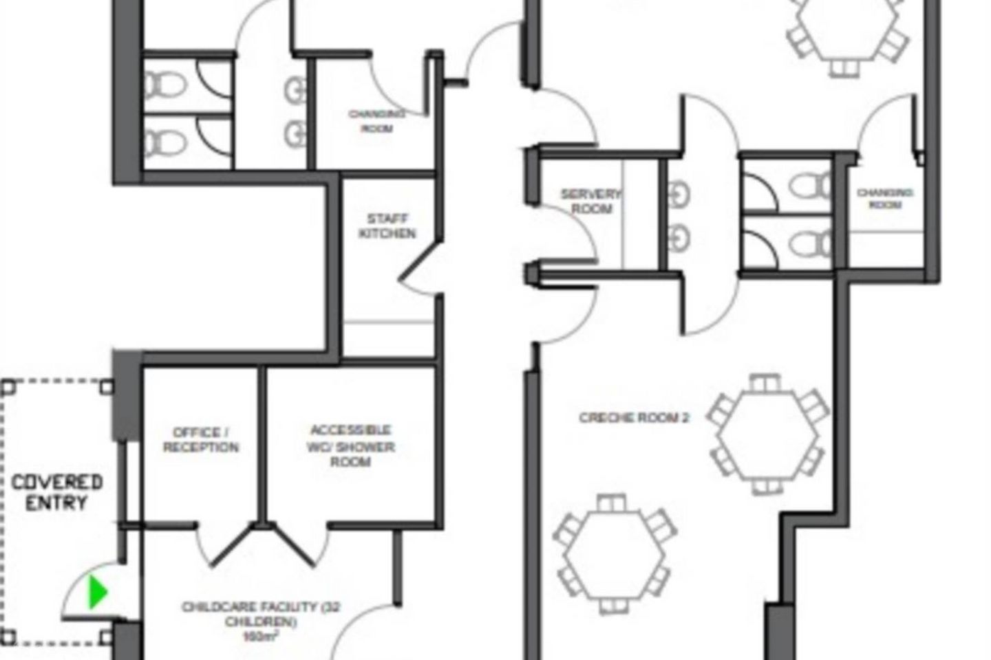
This brand new creche is a purpose-built facility in Clonmel's newest homes development. There are approximately 115 units in Coleville Woods, with several hundred homes in the immediate vicinity. Clonmel is an ever growing town being the largest inland town in the South of Ireland. Located just outside the town centre making it an ideal location for drop off and collection without the town traffic. The property is ideally located close to Loretto Secondary School, Hillview Sports Club, Clonmel Golf Club and Minella Hotel Close to the entrance to the high-quality development with a large Garden/Play area of approx 110 sq m, it caters for the various needs of a thriving child care facility. Accommodation Note: Please note we have not tested any apparatus, fixtures, fittings, or services. Interested parties must undertake their own investigation into the working order of these items. All measurements are approximate and photographs provided for guidance only. Features 3 large Creche rooms , Large external play area (110 sq m) , Wheelchair accessible setup , Great location , 160 sq m
The local area
The local area
Local schools and transport

Learn more about what this area has to offer.
School Name | Distance | Pupils | |||
|---|---|---|---|---|---|
| School Name | St Peter And Paul | Distance | 1.5km | Pupils | 291 |
| School Name | Sisters Of Charity | Distance | 1.7km | Pupils | 392 |
| School Name | Coláiste Sliabh Na Mban | Distance | 1.8km | Pupils | 12 |
School Name | Distance | Pupils | |||
|---|---|---|---|---|---|
| School Name | St. Mary's C.b.s., Primary | Distance | 2.3km | Pupils | 213 |
| School Name | Powerstown National School | Distance | 2.3km | Pupils | 334 |
| School Name | Gaelscoil Chluain Meala | Distance | 2.3km | Pupils | 291 |
| School Name | St Marys Parochial School | Distance | 2.4km | Pupils | 26 |
| School Name | St Oliver Plunketts National School | Distance | 2.7km | Pupils | 311 |
| School Name | Presentation Primary School | Distance | 2.7km | Pupils | 274 |
| School Name | Kilsheelan National School | Distance | 6.7km | Pupils | 92 |
School Name | Distance | Pupils | |||
|---|---|---|---|---|---|
| School Name | Loreto Secondary School | Distance | 1.1km | Pupils | 467 |
| School Name | Central Technical Institute, Clonmel | Distance | 1.1km | Pupils | 316 |
| School Name | High School Clonmel | Distance | 1.4km | Pupils | 700 |
School Name | Distance | Pupils | |||
|---|---|---|---|---|---|
| School Name | Patrician Presentation | Distance | 12.8km | Pupils | 280 |
| School Name | Colaiste Dun Iascaigh | Distance | 16.5km | Pupils | 904 |
| School Name | Comeragh College | Distance | 18.2km | Pupils | 565 |
| School Name | Rockwell College | Distance | 18.6km | Pupils | 478 |
| School Name | Edmund Rice Secondary School | Distance | 19.0km | Pupils | 316 |
| School Name | Cashel Community School | Distance | 23.0km | Pupils | 855 |
| School Name | St Declan's Community College | Distance | 24.1km | Pupils | 817 |
Type | Distance | Stop | Route | Destination | Provider | ||||||
|---|---|---|---|---|---|---|---|---|---|---|---|
| Type | Bus | Distance | 540m | Stop | Silversprings Road | Route | Cl2 | Destination | Ard Gaoithe Business Park | Provider | Tfi Local Link Tipperary |
| Type | Bus | Distance | 540m | Stop | Silversprings Road | Route | Cl1 | Destination | Poppyfield Retail Park | Provider | Tfi Local Link Tipperary |
| Type | Bus | Distance | 540m | Stop | Silversprings Road | Route | Cl9 | Destination | Ard Gaoithe Business Park | Provider | Tfi Local Link Tipperary |
Type | Distance | Stop | Route | Destination | Provider | ||||||
|---|---|---|---|---|---|---|---|---|---|---|---|
| Type | Bus | Distance | 550m | Stop | Silversprings Road | Route | Cl9 | Destination | Crann Ard | Provider | Tfi Local Link Tipperary |
| Type | Bus | Distance | 550m | Stop | Silversprings Road | Route | Cl2 | Destination | Crann Ard | Provider | Tfi Local Link Tipperary |
| Type | Bus | Distance | 550m | Stop | Silversprings Road | Route | Cl1 | Destination | Crann Ard | Provider | Tfi Local Link Tipperary |
| Type | Bus | Distance | 550m | Stop | Davis Road | Route | Cl9 | Destination | Ard Gaoithe Business Park | Provider | Tfi Local Link Tipperary |
| Type | Bus | Distance | 550m | Stop | Davis Road | Route | Cl1 | Destination | Poppyfield Retail Park | Provider | Tfi Local Link Tipperary |
| Type | Bus | Distance | 550m | Stop | Davis Road | Route | Cl2 | Destination | Ard Gaoithe Business Park | Provider | Tfi Local Link Tipperary |
| Type | Bus | Distance | 610m | Stop | Davis Road | Route | Cl2 | Destination | Crann Ard | Provider | Tfi Local Link Tipperary |
Statistics
- 12/11/2025Entered
- 1,389Property Views
Daft ID: 520888322