Creche Facility, 19 Clonrath Hill, Lusk, Co. Dublin
€380,000
- Available From:Immediately
About this property
Description
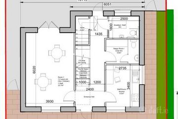
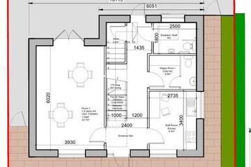
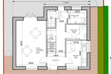
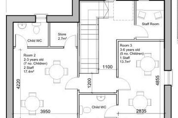
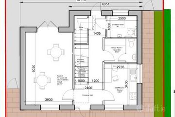
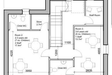
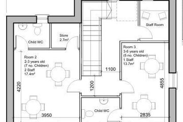
• 2 storey detached property • Being sold shell & core finish, 2nd fix complete ready for fit out. • Floor area – c.125 sq m (1,345 sq ft) • Capacity for 17 children • • Room 1 1-2 year olds 5 x children allowed with 1 x Staff • • Room 2 2-3 year olds 7 x children allowed with 2 x Staff • • Room 3 3-6 year olds 5 x children allowed with 1 x Staff • 72sqm Garden/Play area to the rear. • 2 car parking spaces and 19 bicycle parking spaces • Full day care facility • A2 Rated property as per provisional BER Cert. • Annual rates estimated in the region of €5,000 • Management fees-- c €410 per annum. Grimes is delighted to present this detached Creche facility to the market. Finished in shell and core and ready for fit out this property offers a great opportunity to purchase a purpose built creche facility in an area with a growing community. Accommodation comprises of the following: Ground floor: 1 childcare room, a nappy/changing room with child WC, staff WC and staff room/kitchen. Access to rear garden/play area. First floor: comprises of 2 further childcare rooms, both with individual access to child WC, a staff room and a store. Lusk and its surrounding area face a notable shortage of childcare places leading to high demand for childcare spaces. Lusk’s population has grown considerably in recent years and such growth naturally fuels demand for local services like childcare, especially as new families move into the area. Please contact Grimes should you wish to arrange a viewing. (Please note all measurements are approximate and images are for illustration purposes)
The local area
The local area
Local schools and transport

Learn more about what this area has to offer.
School Name | Distance | Pupils | |||
|---|---|---|---|---|---|
| School Name | Rush And Lusk Educate Together | Distance | 530m | Pupils | 410 |
| School Name | Lusk Junior National School St Maccullins | Distance | 670m | Pupils | 382 |
| School Name | Lusk S.n.s. St. Maccullins | Distance | 670m | Pupils | 416 |
School Name | Distance | Pupils | |||
|---|---|---|---|---|---|
| School Name | Corduff National School | Distance | 2.7km | Pupils | 90 |
| School Name | St Mary's Special School Drumcar | Distance | 3.0km | Pupils | 98 |
| School Name | Gaelscoil Ros Eo | Distance | 3.6km | Pupils | 159 |
| School Name | Milverton National School | Distance | 3.6km | Pupils | 84 |
| School Name | Hedgestown National School | Distance | 3.7km | Pupils | 67 |
| School Name | Rush National School | Distance | 4.0km | Pupils | 708 |
| School Name | St Catherine's National School | Distance | 4.0km | Pupils | 278 |
School Name | Distance | Pupils | |||
|---|---|---|---|---|---|
| School Name | Lusk Community College | Distance | 470m | Pupils | 1081 |
| School Name | St Joseph's Secondary School | Distance | 4.8km | Pupils | 928 |
| School Name | Donabate Community College | Distance | 5.0km | Pupils | 813 |
School Name | Distance | Pupils | |||
|---|---|---|---|---|---|
| School Name | Skerries Community College | Distance | 5.9km | Pupils | 1029 |
| School Name | Ardgillan Community College | Distance | 7.7km | Pupils | 1001 |
| School Name | Bremore Educate Together Secondary School | Distance | 8.4km | Pupils | 836 |
| School Name | Coláiste Ghlór Na Mara | Distance | 8.7km | Pupils | 500 |
| School Name | Swords Community College | Distance | 8.7km | Pupils | 930 |
| School Name | St. Finian's Community College | Distance | 8.7km | Pupils | 661 |
| School Name | Balbriggan Community College | Distance | 8.8km | Pupils | 696 |
Type | Distance | Stop | Route | Destination | Provider | ||||||
|---|---|---|---|---|---|---|---|---|---|---|---|
| Type | Bus | Distance | 920m | Stop | Station Road | Route | 33a | Destination | Balbriggan | Provider | Go-ahead Ireland |
| Type | Bus | Distance | 920m | Stop | Station Road | Route | 33a | Destination | Skerries | Provider | Go-ahead Ireland |
| Type | Bus | Distance | 920m | Stop | Station Road | Route | 33t | Destination | Station Road | Provider | Go-ahead Ireland |
Type | Distance | Stop | Route | Destination | Provider | ||||||
|---|---|---|---|---|---|---|---|---|---|---|---|
| Type | Bus | Distance | 920m | Stop | Station Road | Route | 33 | Destination | Skerries | Provider | Dublin Bus |
| Type | Bus | Distance | 920m | Stop | Station Road | Route | 33e | Destination | Skerries | Provider | Dublin Bus |
| Type | Bus | Distance | 920m | Stop | Station Road | Route | 33n | Destination | Mourne View | Provider | Nitelink, Dublin Bus |
| Type | Bus | Distance | 920m | Stop | Station Road | Route | 33 | Destination | Balbriggan | Provider | Dublin Bus |
| Type | Bus | Distance | 920m | Stop | Station Road | Route | 33x | Destination | Balbriggan | Provider | Dublin Bus |
| Type | Bus | Distance | 920m | Stop | Station Road | Route | 33a | Destination | Station Road | Provider | Go-ahead Ireland |
| Type | Bus | Distance | 920m | Stop | Station Road | Route | 33a | Destination | Dublin Airport | Provider | Go-ahead Ireland |
BER Details
Ad performance
- Date listed16/10/2025
- Views1,232
Daft ID: 523801706
Contact Agent
