Development Land, Castleconnell, Development Land, Castleconnell, Limerick, Co. Limerick, V9422T3
€475,000
- Available From:Immediately
About this property
Description
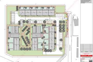
FOR SALE BY ONLINE AUCTION ON THURSDAY, 26TH MARCH 2026 via Youbid.ie Development Opportunity: Development Site with full planning permission for 16 residential dwellings for an age-friendly / elderly living residential development. (NOTE: The Eircode provided is for identification purposes only and relates to a neighbouring property) Planning Permission Details: Planning Reference: 24/60030 | ABP Reference: 321152-24, Full planning permission has been granted for the development of 16 dwellings comprising a mix of 2-bedroom (3-person) and 2-bedroom (4-person) single storey bungalows ranging in size from approximately 74 76 sq.m and arranged around shared open space. The scheme also includes 2 community-type dwellings, each extending to approximately 244 sq.m, designed to provide support facilities for senior living. Below is a brief summary of the proposed scheme. Type: Age-friendly / elderly living residential development. Scale: Planning for 16 dwellings including a mix of 2 bedroom (3-person) and 2 bedroom (4-person) single storey houses, and two community homes grouped ground shared open space. Ancillary works: 1. Internal roads and car parking spaces 2. Boundary treatments and landscaping 3. Connection to public water, foul and surface water systems 4. Communal bin storage and bicycle parking. Castleconnell is approximately 17 km from Limerick City Centre and 9 km from Castletroy, with convenient links to the M7 Limerick Dublin motorway, the M20 Limerick Cork motorway, and the M18 Limerick Galway motorway. The subject site is located within the existing Castlerock residential estate, which lies within walking distance of Castleconnell village. Castlerock is an established residential development comprising a mix of detached, semi detached and townhouses. Other residential developments in the village include Coolbawn Meadows, Stradbally North and The Hermitage, to name a few. The village is well served by local amenities, including crèches, sports clubs, pubs, cafés and convenience stores (including SuperValu), all located within the village centre. The area is served by several well-established schools, including Castleconnell National School, Lisnagry National School and Castletroy College. It is also only a short drive from the University of Limerick and Plassey Technological Park, with Limerick City Centre approximately 13 km away. The subject site is located at the southern end of the internal road within the existing Castlerock residential estate. The site is bounded on three sides by existing Castlerock residential houses. Access to the proposed development will be via the main Castlerock estate road, which connects to the R525 (Castleconnell Road). VAT: Please refer to the legal documents. Please visit www.youbid.ie to register for legal documents. For further details please contact us on 061 279300. what3words /// batteries.dentistry.embedding Notice Please note we have not tested any apparatus, fixtures, fittings, or services. Interested parties must undertake their own investigation into the working order of these items. All measurements are approximate and photographs provided for guidance only.
The local area
The local area
Local schools and transport

Learn more about what this area has to offer.
School Name | Distance | Pupils | |||
|---|---|---|---|---|---|
| School Name | Castleconnell National School | Distance | 730m | Pupils | 239 |
| School Name | Castleconnell National School | Distance | 730m | Pupils | 239 |
| School Name | Lisnagry National School | Distance | 3.3km | Pupils | 295 |
School Name | Distance | Pupils | |||
|---|---|---|---|---|---|
| School Name | Lisnagry National School | Distance | 3.3km | Pupils | 295 |
| School Name | Clonlara National School | Distance | 3.8km | Pupils | 276 |
| School Name | Clonlara National School | Distance | 3.8km | Pupils | 276 |
| School Name | Ahane National School | Distance | 4.8km | Pupils | 153 |
| School Name | Ahane National School | Distance | 4.8km | Pupils | 153 |
| School Name | St Vincent's Lisnagry | Distance | 4.8km | Pupils | 100 |
| School Name | St Vincent's Lisnagry | Distance | 4.8km | Pupils | 100 |
School Name | Distance | Pupils | |||
|---|---|---|---|---|---|
| School Name | Castletroy College | Distance | 5.8km | Pupils | 1329 |
| School Name | Castletroy College | Distance | 5.8km | Pupils | 1329 |
| School Name | St. Mary's Secondary School | Distance | 6.2km | Pupils | 725 |
School Name | Distance | Pupils | |||
|---|---|---|---|---|---|
| School Name | St. Mary's Secondary School | Distance | 6.2km | Pupils | 725 |
| School Name | Newport College | Distance | 6.5km | Pupils | 364 |
| School Name | Newport College | Distance | 6.5km | Pupils | 364 |
| School Name | St Munchin's College | Distance | 8.1km | Pupils | 662 |
| School Name | St Munchin's College | Distance | 8.1km | Pupils | 662 |
| School Name | Ardscoil Mhuire | Distance | 8.7km | Pupils | 574 |
| School Name | Ardscoil Mhuire | Distance | 8.7km | Pupils | 574 |
Type | Distance | Stop | Route | Destination | Provider | ||||||
|---|---|---|---|---|---|---|---|---|---|---|---|
| Type | Bus | Distance | 420m | Stop | Castleconnell | Route | 323 | Destination | Limerick Bus Station | Provider | Bus Éireann |
| Type | Bus | Distance | 420m | Stop | Castleconnell | Route | 332 | Destination | Limerick Bus Station | Provider | Bus Éireann |
| Type | Bus | Distance | 430m | Stop | Castleconnell | Route | 332 | Destination | Cappamore | Provider | Bus Éireann |
Type | Distance | Stop | Route | Destination | Provider | ||||||
|---|---|---|---|---|---|---|---|---|---|---|---|
| Type | Bus | Distance | 430m | Stop | Castleconnell | Route | 323 | Destination | Nenagh | Provider | Bus Éireann |
| Type | Bus | Distance | 430m | Stop | Castleconnell | Route | 332 | Destination | Cappamore | Provider | Bus Éireann |
| Type | Bus | Distance | 470m | Stop | Stradbally | Route | 332 | Destination | Cappamore | Provider | Bus Éireann |
| Type | Bus | Distance | 470m | Stop | Stradbally | Route | 323 | Destination | Nenagh | Provider | Bus Éireann |
| Type | Bus | Distance | 470m | Stop | Stradbally | Route | 332 | Destination | Cappamore | Provider | Bus Éireann |
| Type | Bus | Distance | 470m | Stop | Stradbally | Route | 323 | Destination | Nenagh | Provider | Bus Éireann |
| Type | Bus | Distance | 480m | Stop | Stradbally | Route | 323 | Destination | Limerick Bus Station | Provider | Bus Éireann |
Ad performance
- Date listed05/03/2026
- Views39
Daft ID: 56512826