M4 Business Park, Celbridge, Co. Kildare
€500,000
- Available From:Immediately
About this property
Description
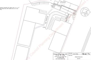
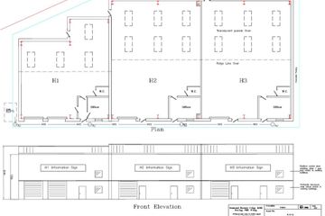
• Site with full planning permission for 3 warehouse units extending to a total area of approx. 752 sq.m (8,094 sq.ft) • 1 warehouse extending to approx. 200 sq.m and 2 warehouses each of approx. 276 sq.m as per planning reference 21/1809 • Available for sale as site with full planning permission • M4 Business Park is well-established just off the M4 motorway at Junction 6 Celbridge 1km, M50 motorway 11km, Dublin Airport 26km Type of Transaction Private Treaty Guide Price €500,000 (excl. of VAT) Zoning Under the latest Celbridge Local Area Plan, the site is zoned as Light Industrial and Warehousing, the objective of which is to 'To provide for light industry, distribution and warehousing.' Location The M4 Business Park is ideally located just off the M4 motorway at Junction 6 and has many long term tenants including Applegreen, Giraffe Childcare and Kildare Further Education and Training Centre. Maximising its pivotal location, the Park is a truly unique high quality environment that will have a broad appeal right across the business spectrum. A management company is in place to ensure the park is maintained to high quality standards. Telephone & broad band accessibility are available in the park, with ample visitor parking. Celbridge is a sought after commuter town adjacent to the towns of Lucan, Leixlip and Maynooth with Dublin city and surrounds within easy reach. The M4 motorway, regular bus services and Hazelhatch Train station provide excellent transport links to Dublin city centre. Directions: From Dublin take the M4 to Maynooth and exit at Junction 6. At the roundabout, take the 1st exit onto R449 to Celbridge (West). The entrance to M4 Business park is on you right hand side beside the Apple Green petrol station. Viewing: By prior appointment at any reasonable hour. Contact: Philip Byrne T: 01 628 6128 E: philipb Accommodation Note: Please note we have not tested any apparatus, fixtures, fittings, or services. Interested parties must undertake their own investigation into the working order of these items. All measurements are approximate and photographs provided for guidance only.
The local area
The local area
Local schools and transport

Learn more about what this area has to offer.
School Name | Distance | Pupils | |||
|---|---|---|---|---|---|
| School Name | Aghards National School | Distance | 1.1km | Pupils | 665 |
| School Name | Scoil Na Mainistreach | Distance | 2.1km | Pupils | 460 |
| School Name | Scoil Naomh Bríd | Distance | 2.1km | Pupils | 258 |
School Name | Distance | Pupils | |||
|---|---|---|---|---|---|
| School Name | St Raphaels School Celbridge | Distance | 2.3km | Pupils | 97 |
| School Name | Primrose Hill National School | Distance | 2.5km | Pupils | 113 |
| School Name | Leixlip Etns | Distance | 2.6km | Pupils | 179 |
| School Name | Maynooth Educate Together National School | Distance | 2.6km | Pupils | 412 |
| School Name | Gaelscoil Ruairí | Distance | 2.7km | Pupils | 145 |
| School Name | Gaelscoil Ui Fhiaich | Distance | 2.7km | Pupils | 458 |
| School Name | North Kildare Educate Together National School | Distance | 2.9km | Pupils | 435 |
School Name | Distance | Pupils | |||
|---|---|---|---|---|---|
| School Name | Celbridge Community School | Distance | 190m | Pupils | 714 |
| School Name | Salesian College | Distance | 310m | Pupils | 842 |
| School Name | St Wolstans Community School | Distance | 2.9km | Pupils | 820 |
School Name | Distance | Pupils | |||
|---|---|---|---|---|---|
| School Name | Coláiste Chiaráin | Distance | 3.2km | Pupils | 638 |
| School Name | Confey Community College | Distance | 3.6km | Pupils | 911 |
| School Name | Maynooth Community College | Distance | 4.3km | Pupils | 962 |
| School Name | Maynooth Post Primary School | Distance | 4.4km | Pupils | 1018 |
| School Name | Gaelcholáiste Mhaigh Nuad | Distance | 4.4km | Pupils | 129 |
| School Name | Adamstown Community College | Distance | 6.1km | Pupils | 980 |
| School Name | Lucan Community College | Distance | 6.6km | Pupils | 966 |
Type | Distance | Stop | Route | Destination | Provider | ||||||
|---|---|---|---|---|---|---|---|---|---|---|---|
| Type | Bus | Distance | 40m | Stop | M4 Business Park | Route | L59 | Destination | Hazelhatch Station | Provider | Dublin Bus |
| Type | Bus | Distance | 90m | Stop | M4 Business Park | Route | L59 | Destination | River Forest | Provider | Dublin Bus |
| Type | Bus | Distance | 290m | Stop | Salesian College | Route | C6 | Destination | Ringsend Road | Provider | Dublin Bus |
Type | Distance | Stop | Route | Destination | Provider | ||||||
|---|---|---|---|---|---|---|---|---|---|---|---|
| Type | Bus | Distance | 290m | Stop | Salesian College | Route | X28 | Destination | Ucd Belfield | Provider | Dublin Bus |
| Type | Bus | Distance | 290m | Stop | Salesian College | Route | W6 | Destination | The Square | Provider | Go-ahead Ireland |
| Type | Bus | Distance | 290m | Stop | Salesian College | Route | C4 | Destination | Ringsend Road | Provider | Dublin Bus |
| Type | Bus | Distance | 290m | Stop | Salesian College | Route | X27 | Destination | Ucd Belfield | Provider | Dublin Bus |
| Type | Bus | Distance | 320m | Stop | Salesian College | Route | C6 | Destination | Maynooth | Provider | Dublin Bus |
| Type | Bus | Distance | 320m | Stop | Salesian College | Route | W6 | Destination | Community College | Provider | Go-ahead Ireland |
| Type | Bus | Distance | 320m | Stop | Salesian College | Route | X28 | Destination | Salesian College | Provider | Dublin Bus |
Statistics
- 12/11/2025Entered
- 3,152Property Views
Daft ID: 521966774