Mossstown, Keenagh, Co. Longford
€295,000
- Selling Type:By Private Treaty
- Available From:Immediately
About this property
Description
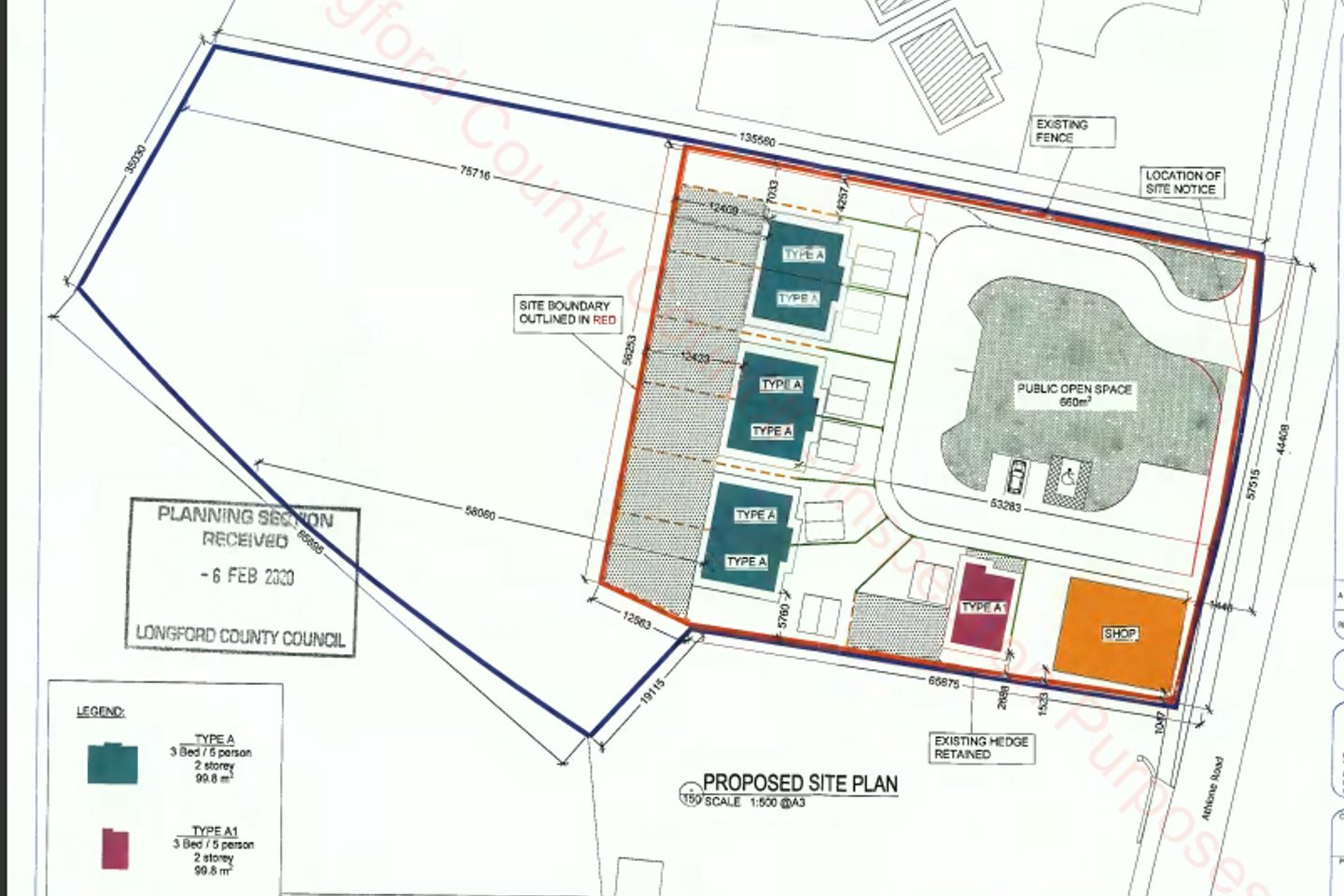
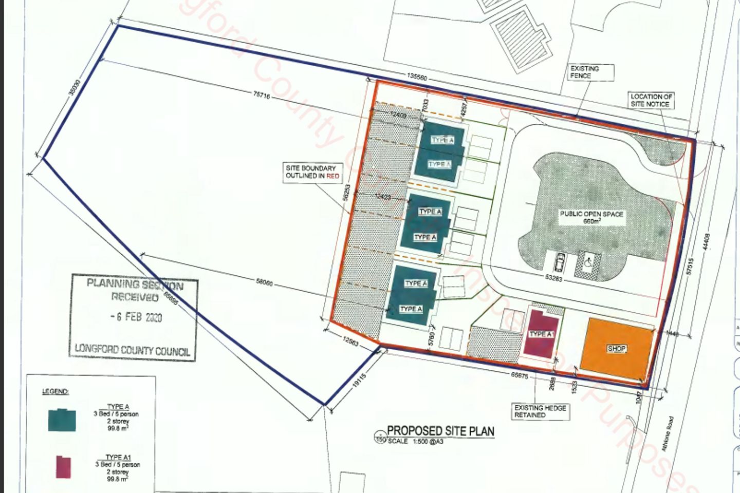
Marie J. McCormack Auctioneering in conjunction with BV Real Estate are delighted to present to the market a rare opportunity to acquire a prime development site with full planning permission for 8 units. (Folio No: LD14073F) This unique combination of residential and commercial development makes it an attractive investment for developers and investors alike. Residential Development: The approved plans include six semi-detached houses and one detached house, catering to the increasing demand for quality housing in the area. Each residence is designed for modern living, providing comfort and convenience for future residents. This residential aspect promises to enhance the community, offering a variety of housing options suitable for families, young professionals, and retirees. Commercial Opportunity: In addition to the residential units, the inclusion of a commercial property measuring 1,750 sq. ft. presents a unique opportunity to create a vibrant hub within Mosstown. This space can accommodate various businesses, such as retail shops, offices, or service-oriented establishments, contributing to local economic growth while providing essential services to residents. Location and Accessibility: The land is strategically located in Mosstown, benefiting from excellent transport links and proximity to local amenities. This prime location enhances the potential for high occupancy rates for the residential units and increased foot traffic for the commercial unit. Call our office on 090 6432129 to arrange a viewing. Viewing strictly by appointment. Notice: All information provided is to the best of our knowledge. The utmost care and attention has been placed on providing factual and correct information. In certain cases some information may have been provided by the Vendor to us. We do not hold any responsibility for mistakes, errors or any inaccuracies in our advertising and give each and every viewer the right to get a professional opinion on any concern they may have. All measurements are approximate and photographs provided for guidance only.
The local area
The local area
Local schools and transport

Learn more about what this area has to offer.
School Name | Distance | Pupils | |||
|---|---|---|---|---|---|
| School Name | Kenagh National School | Distance | 370m | Pupils | 119 |
| School Name | Kenagh National School | Distance | 370m | Pupils | 119 |
| School Name | Cloontagh National School | Distance | 5.1km | Pupils | 14 |
School Name | Distance | Pupils | |||
|---|---|---|---|---|---|
| School Name | Cloontagh National School | Distance | 5.1km | Pupils | 14 |
| School Name | Killashee National School | Distance | 6.9km | Pupils | 29 |
| School Name | Killashee National School | Distance | 6.9km | Pupils | 29 |
| School Name | Stonepark National School | Distance | 7.4km | Pupils | 239 |
| School Name | Stonepark National School | Distance | 7.4km | Pupils | 239 |
| School Name | St Matthews Mixed National School | Distance | 7.6km | Pupils | 372 |
| School Name | St Matthews Mixed National School | Distance | 7.6km | Pupils | 372 |
School Name | Distance | Pupils | |||
|---|---|---|---|---|---|
| School Name | Ballymahon Vocational School | Distance | 7.3km | Pupils | 420 |
| School Name | Ballymahon Vocational School | Distance | 7.3km | Pupils | 420 |
| School Name | Mercy Secondary School | Distance | 7.7km | Pupils | 760 |
School Name | Distance | Pupils | |||
|---|---|---|---|---|---|
| School Name | Mercy Secondary School | Distance | 7.7km | Pupils | 760 |
| School Name | Meán Scoil Mhuire | Distance | 10.9km | Pupils | 607 |
| School Name | Meán Scoil Mhuire | Distance | 10.9km | Pupils | 607 |
| School Name | St. Mel's College | Distance | 11.3km | Pupils | 603 |
| School Name | St. Mel's College | Distance | 11.3km | Pupils | 603 |
| School Name | Templemichael College | Distance | 11.7km | Pupils | 363 |
| School Name | Templemichael College | Distance | 11.7km | Pupils | 363 |
Type | Distance | Stop | Route | Destination | Provider | ||||||
|---|---|---|---|---|---|---|---|---|---|---|---|
| Type | Bus | Distance | 520m | Stop | Keenagh | Route | 466 | Destination | Cavan | Provider | Bus Éireann |
| Type | Bus | Distance | 520m | Stop | Keenagh | Route | 466 | Destination | Cavan | Provider | Bus Éireann |
| Type | Bus | Distance | 520m | Stop | Keenagh | Route | 466 | Destination | Athlone | Provider | Bus Éireann |
Type | Distance | Stop | Route | Destination | Provider | ||||||
|---|---|---|---|---|---|---|---|---|---|---|---|
| Type | Bus | Distance | 520m | Stop | Keenagh | Route | Lr24 | Destination | Ballymahon | Provider | Tfi Local Link Longford Westmeath Roscommon |
| Type | Bus | Distance | 660m | Stop | Keenagh | Route | Lr24 | Destination | Longford | Provider | Tfi Local Link Longford Westmeath Roscommon |
| Type | Bus | Distance | 660m | Stop | Keenagh | Route | Lr24 | Destination | Longford | Provider | Tfi Local Link Longford Westmeath Roscommon |
| Type | Bus | Distance | 660m | Stop | Keenagh | Route | Ai01 | Destination | Longford Centre | Provider | Farrelly's Coaches |
| Type | Bus | Distance | 670m | Stop | Keenagh | Route | Ai01 | Destination | Northgate Street | Provider | Farrelly's Coaches |
| Type | Bus | Distance | 670m | Stop | Keenagh | Route | Ai01 | Destination | Northgate Street | Provider | Farrelly's Coaches |
| Type | Bus | Distance | 7.2km | Stop | Killashee | Route | 426 | Destination | Roscommon | Provider | Tfi Local Link Longford Westmeath Roscommon |
BER Details
Ad performance
- Date listed25/03/2025
- Views1,929
Daft ID: 521040993
