Moycullen Village Centre Site, With Full Planning For 2 Houses (0.12 Acre), Killrainey, Moycullen, Co. Galway
€150,000
- Available From:Immediately
About this property
Description
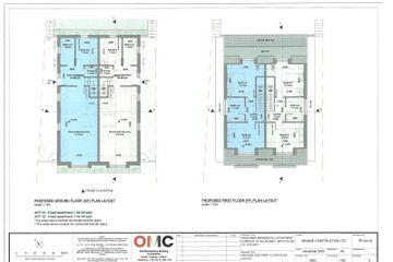
“Moycullen Village Centre Site with Full Planning for 2 Houses (0.12 Acre)” Shovel-Ready Village Centre Site with Full Planning A rare opportunity to acquire a fully permissioned residential site in the heart of Moycullen village. Planning permission was granted on 7th January 2026 (Planning Ref: 25/61064) for the construction of 2 no. three-bedroom residential units, together with car parking spaces and all associated site works and services, located in the townland of Cill Raine. This 0.12 acre site occupies a prominent position on the N59 Galway–Clifden Road, benefiting from excellent access, visibility and connectivity. All village amenities including shops, cafés, bars, restaurants and supermarkets are within walking distance. The planning permission is fully granted and clean, allowing an incoming purchaser to proceed directly to construction, making this site ideally suited to a small builder, developer or private purchaser. Moycullen is a highly sought-after and rapidly growing commuter village, located west of Galway City, with sustained demand for new residential accommodation. Opportunities to acquire shovel-ready village centre sites with full planning permission are increasingly rare. Early enquiries are advised - contact Jamie Costello 091 564 212. NOTE: These particulars are not to be considered a formal offer. They are for information only and give a general idea of the property. They are not to be taken as forming any part of a resulting contract, nor to be relied upon as statements or representations of fact. Whilst every care is taken in their preparation, neither O’Donnellan & Joyce Auctioneers nor the vendor accept any liability as to their accuracy. Intending purchasers must satisfy themselves by personal inspection or otherwise as to the correctness of these particulars. No person in the employment of O’Donnellan & Joyce Auctioneers has any authority to make or give any representation or warranty whatever in relation to this property. '
The local area
The local area
Local schools and transport

Learn more about what this area has to offer.
School Name | Distance | Pupils | |||
|---|---|---|---|---|---|
| School Name | Moycullen Central National School | Distance | 400m | Pupils | 402 |
| School Name | Moycullen Central National School | Distance | 400m | Pupils | 402 |
| School Name | Scoil Bhaile Nua | Distance | 2.9km | Pupils | 70 |
School Name | Distance | Pupils | |||
|---|---|---|---|---|---|
| School Name | Scoil Bhaile Nua | Distance | 2.9km | Pupils | 70 |
| School Name | Scoil Cholmáin Tuairíní | Distance | 4.0km | Pupils | 86 |
| School Name | Scoil Cholmáin Tuairíní | Distance | 4.0km | Pupils | 86 |
| School Name | Scoil Naomh Bríde | Distance | 5.0km | Pupils | 65 |
| School Name | Scoil Naomh Bríde | Distance | 5.0km | Pupils | 65 |
| School Name | St Annin's National School | Distance | 7.2km | Pupils | 253 |
| School Name | St Annin's National School | Distance | 7.2km | Pupils | 253 |
School Name | Distance | Pupils | |||
|---|---|---|---|---|---|
| School Name | Coláiste Na Coiribe | Distance | 8.6km | Pupils | 666 |
| School Name | Coláiste Na Coiribe | Distance | 8.6km | Pupils | 666 |
| School Name | Coláiste Éinde | Distance | 10.2km | Pupils | 806 |
School Name | Distance | Pupils | |||
|---|---|---|---|---|---|
| School Name | Coláiste Éinde | Distance | 10.2km | Pupils | 806 |
| School Name | Salerno Secondary School | Distance | 10.4km | Pupils | 666 |
| School Name | Salerno Secondary School | Distance | 10.4km | Pupils | 666 |
| School Name | Dominican College | Distance | 10.5km | Pupils | 601 |
| School Name | Dominican College | Distance | 10.5km | Pupils | 601 |
| School Name | St. Mary's College | Distance | 10.7km | Pupils | 415 |
| School Name | St. Mary's College | Distance | 10.7km | Pupils | 415 |
Type | Distance | Stop | Route | Destination | Provider | ||||||
|---|---|---|---|---|---|---|---|---|---|---|---|
| Type | Bus | Distance | 70m | Stop | Maigh Cuilinn | Route | 923 | Destination | Letterfrack | Provider | Citylink |
| Type | Bus | Distance | 70m | Stop | Maigh Cuilinn | Route | 923 | Destination | Cleggan | Provider | Citylink |
| Type | Bus | Distance | 70m | Stop | Maigh Cuilinn | Route | 419 | Destination | Clifden | Provider | Bus Éireann |
Type | Distance | Stop | Route | Destination | Provider | ||||||
|---|---|---|---|---|---|---|---|---|---|---|---|
| Type | Bus | Distance | 70m | Stop | Maigh Cuilinn | Route | 923 | Destination | Letterfrack | Provider | Citylink |
| Type | Bus | Distance | 70m | Stop | Maigh Cuilinn | Route | 923 | Destination | Clifden | Provider | Citylink |
| Type | Bus | Distance | 70m | Stop | Maigh Cuilinn | Route | 923 | Destination | Cleggan | Provider | Citylink |
| Type | Bus | Distance | 70m | Stop | Maigh Cuilinn | Route | 419 | Destination | Oughterard | Provider | Bus Éireann |
| Type | Bus | Distance | 90m | Stop | Maigh Cuilinn | Route | 419 | Destination | Eyre Square | Provider | Bus Éireann |
| Type | Bus | Distance | 90m | Stop | Maigh Cuilinn | Route | 419 | Destination | Galway | Provider | Bus Éireann |
| Type | Bus | Distance | 90m | Stop | Maigh Cuilinn | Route | 923 | Destination | Galway Coach Station | Provider | Citylink |
Ad performance
- Date listed05/02/2026
- Views643
Daft ID: 56490617