O`Curry Street, Kilkee, Co. Clare, V15C978
€350,000
- Available From:Immediately
About this property
Description
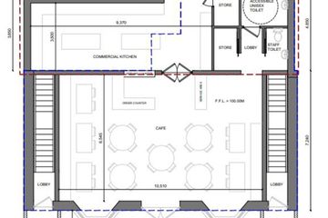
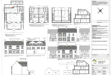
Situated in a prime location on the main street in the seaside town of Kilkee with all amenities on your doorstep, this is an ideal opportunity for a prospective buyer to work with a blank canvas to design and renovate the property to their own requirements. This property is coming to the market with full planning permission for a ground floor cafe (approx. 122 Sq. Mt.) and two townhouses upstairs spread over two floors (approx. 114 sq. mt each). The property is currently in shell and core condition. Kilkee is a popular seaside resort for generations of tourists and is popular for its horseshoe shaped beach, cliff walk, diving facilities, golfing, restaurants and bars to name a few of the many amenities that one can enjoy. Viewing is highly recommended and strictly by prior appointment with sole selling agents. PSL002295 Original Layout Below Currently shell and core condition, ready for renovations. Entrance 6.45m x 2.01m. Main Reception 6.04m x 3.75m. Dining Area 6.03m x 4.01m. Kitchen 4.83m x 4m. Bathroom 3m x 2.02m. Bedroom One 6.04m x 2.04. First Floor Original Layout Below Currently shell and core condition, ready for renovations. Shower Room 2.55m x 1.35m. Bedroom Two 4.85m x 4.03m. Bedroom Three 6.25m x 2.05m. Bedroom Four 3.06m x 2.05m. Bedroom Five 3.06m x 3.25m. Bedroom Six 6.04m x 3m. Stairway to Second Floor Storage 4.03 x 12.05.
The local area
The local area
Local schools and transport

Learn more about what this area has to offer.
School Name | Distance | Pupils | |||
|---|---|---|---|---|---|
| School Name | Scoil Réalt Na Mara | Distance | 120m | Pupils | 129 |
| School Name | Bansha National School | Distance | 4.5km | Pupils | 8 |
| School Name | Moveen National School | Distance | 4.6km | Pupils | 49 |
School Name | Distance | Pupils | |||
|---|---|---|---|---|---|
| School Name | Doonaha National School | Distance | 6.2km | Pupils | 20 |
| School Name | S N Ma Sheasta | Distance | 7.4km | Pupils | 40 |
| School Name | Carrigaholt Mixed National School | Distance | 9.4km | Pupils | 31 |
| School Name | Doonbeg National School | Distance | 10.0km | Pupils | 67 |
| School Name | Shragh National School | Distance | 10.8km | Pupils | 18 |
| School Name | Convent Of Mercy National School | Distance | 11.7km | Pupils | 337 |
| School Name | Gaelscoil Ui Choimin | Distance | 11.8km | Pupils | 63 |
School Name | Distance | Pupils | |||
|---|---|---|---|---|---|
| School Name | St. Joseph's Community College | Distance | 490m | Pupils | 171 |
| School Name | Kilrush Community School | Distance | 11.8km | Pupils | 341 |
| School Name | St. Joseph's Secondary School | Distance | 18.1km | Pupils | 360 |
School Name | Distance | Pupils | |||
|---|---|---|---|---|---|
| School Name | Tarbert Comprehensive School | Distance | 21.3km | Pupils | 543 |
| School Name | St Michael's Community College | Distance | 22.6km | Pupils | 291 |
| School Name | St. Joseph's Secondary School | Distance | 23.7km | Pupils | 452 |
| School Name | Presentation Secondary School | Distance | 27.8km | Pupils | 344 |
| School Name | Coláiste Na Ríochta | Distance | 28.1km | Pupils | 174 |
| School Name | St Michael's College | Distance | 28.2km | Pupils | 327 |
| School Name | Causeway Comprehensive School | Distance | 30.3km | Pupils | 626 |
Type | Distance | Stop | Route | Destination | Provider | ||||||
|---|---|---|---|---|---|---|---|---|---|---|---|
| Type | Bus | Distance | 230m | Stop | Kilkee | Route | 336 | Destination | Doonbeg | Provider | Bus Éireann |
| Type | Bus | Distance | 230m | Stop | Kilkee | Route | 336 | Destination | Kilkee | Provider | Bus Éireann |
| Type | Bus | Distance | 230m | Stop | Kilkee | Route | 335 | Destination | Kilrush | Provider | Tfi Local Link Limerick Clare |
Type | Distance | Stop | Route | Destination | Provider | ||||||
|---|---|---|---|---|---|---|---|---|---|---|---|
| Type | Bus | Distance | 230m | Stop | Kilkee | Route | 335 | Destination | Ennis | Provider | Tfi Local Link Limerick Clare |
| Type | Bus | Distance | 230m | Stop | Kilkee | Route | 339 | Destination | Kilrush | Provider | Tfi Local Link Limerick Clare |
| Type | Bus | Distance | 230m | Stop | Kilkee | Route | 336 | Destination | Ennis | Provider | Bus Éireann |
| Type | Bus | Distance | 230m | Stop | Kilkee | Route | 333 | Destination | Ennis | Provider | Bus Éireann |
| Type | Bus | Distance | 230m | Stop | Kilkee | Route | 333 | Destination | Kilkee | Provider | Bus Éireann |
| Type | Bus | Distance | 4.2km | Stop | Lisdeen | Route | 336 | Destination | Ennis | Provider | Bus Éireann |
| Type | Bus | Distance | 4.2km | Stop | Lisdeen | Route | 336 | Destination | Doonbeg | Provider | Bus Éireann |
A closer look
Statistics
- 11/12/2025Entered
- 62Property Views
Daft ID: 56453623
Contact Agent
