Ready To Go Site - FPP 6 Apartments, Main Street, Castlebellingham, Co. Louth
Price on Application
- Available From:Immediately
About this property
Description
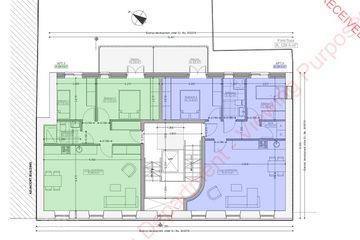
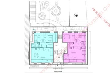
Description: Sherry FitzGerald Carroll present to the market, a unique opportunity to acquire an attractive development site with full planning permission for 6 no 2 bed apartments, in a prime residential location, on the main street in Castlebellingham. The existing property is a 2-storey structure with a pitched roof and sits on a regular shaped parcel, extending to approximately 0.08 acres with a 17 metre frontage onto the Main Street in Castlebellingham. The property adjoins retail uses to the north and south. The proposed development retains the original front façade, protecting the architectural character of the building. The planning includes alterations to the existing building, second floor extension to the rear and dormer windows to the front and provision for rear access. The site is located in the village of Castlebellingham, Co. Louth, approximately 13 kilometres south of Dundalk Town Centre and approximately 24 kilometres north of Drogheda Town Centre. The location is also convenient to M1 Motorway Junction 15 giving direct access to Dublin and Belfast and Airports. Planning The site is zoned B1 “Town and Village Centre” and are contained within the Louth County Development Plan 2021-2027. The objective of this zoning is “To support the development, improvement and expansion of the town or village centre activities.” Planning permission was granted (planning reference 2360443 & 2560587) for the construction of 6 no. 2 bed apartments, as below: Ground Floor – Apt. 1 – 60.0 sq.m. / 645 sq.ft Ground Floor - Apt. 2 – 56.4 sq.m. / 607 sq.ft 1st Floor - Apt. 3 – 60.0 sq.m. / 645 sq.ft 1st Floor - Apt. 4 – 58.4 sq.m. / 628 sq.ft 2nd Floor – Apt. 5 – 59.3 sq.m. / 638 sq.ft 2nd Floor – Apt. 6 – 57.0 sq.m. / 613 sq.ft Services We understand mains services are available to the site; however, we would recommend all interested parties to satisfy themselves as to the availability and adequacy of these services. Tenure Freehold - contained within Folio LH37125F and a Right of Way to the rear over an adjoining shared laneway. Full details upon request.
The local area
The local area
Local schools and transport

Learn more about what this area has to offer.
School Name | Distance | Pupils | |||
|---|---|---|---|---|---|
| School Name | Kilsaran National School | Distance | 1.2km | Pupils | 166 |
| School Name | St Peter's National School | Distance | 2.8km | Pupils | 229 |
| School Name | St. Finian's National School | Distance | 4.7km | Pupils | 96 |
School Name | Distance | Pupils | |||
|---|---|---|---|---|---|
| School Name | Tigh Banan National School | Distance | 4.8km | Pupils | 73 |
| School Name | Scoil Dairbhre | Distance | 5.6km | Pupils | 86 |
| School Name | Dromin National School | Distance | 6.9km | Pupils | 96 |
| School Name | Dunleer National School | Distance | 7.4km | Pupils | 208 |
| School Name | Saint Fursey's National School | Distance | 7.5km | Pupils | 231 |
| School Name | Scoil Naomh Cholmcille | Distance | 7.5km | Pupils | 159 |
| School Name | St Oliver Plunkett National School Blackrock | Distance | 7.5km | Pupils | 474 |
School Name | Distance | Pupils | |||
|---|---|---|---|---|---|
| School Name | Scoil Ui Mhuiri | Distance | 7.9km | Pupils | 656 |
| School Name | Ó Fiaich College | Distance | 9.9km | Pupils | 312 |
| School Name | Dundalk Grammar School | Distance | 11.2km | Pupils | 590 |
School Name | Distance | Pupils | |||
|---|---|---|---|---|---|
| School Name | Ardee Community School | Distance | 11.5km | Pupils | 1353 |
| School Name | St Vincent's Secondary School | Distance | 12.0km | Pupils | 927 |
| School Name | Coláiste Chú Chulainn | Distance | 12.1km | Pupils | 897 |
| School Name | Colaiste Rís | Distance | 12.2km | Pupils | 622 |
| School Name | St Mary's College | Distance | 12.4km | Pupils | 905 |
| School Name | De La Salle College | Distance | 13.5km | Pupils | 760 |
| School Name | St Louis Secondary School | Distance | 13.5km | Pupils | 498 |
Type | Distance | Stop | Route | Destination | Provider | ||||||
|---|---|---|---|---|---|---|---|---|---|---|---|
| Type | Bus | Distance | 10m | Stop | Castlebellingham | Route | 168 | Destination | Drogheda | Provider | Bus Éireann |
| Type | Bus | Distance | 20m | Stop | Castlebellingham | Route | 168 | Destination | Dundalk | Provider | Bus Éireann |
| Type | Bus | Distance | 1.0km | Stop | Saint Mary's Villas | Route | 100 | Destination | Dundalk | Provider | Bus Éireann |
Type | Distance | Stop | Route | Destination | Provider | ||||||
|---|---|---|---|---|---|---|---|---|---|---|---|
| Type | Bus | Distance | 2.7km | Stop | Dromiskin | Route | 168 | Destination | Drogheda | Provider | Bus Éireann |
| Type | Bus | Distance | 3.5km | Stop | Annagassan | Route | 168 | Destination | Drogheda | Provider | Bus Éireann |
| Type | Bus | Distance | 5.2km | Stop | Mooretown | Route | 168 | Destination | Dundalk | Provider | Bus Éireann |
| Type | Bus | Distance | 6.5km | Stop | Greengates | Route | 100 | Destination | Drogheda | Provider | Bus Éireann |
| Type | Bus | Distance | 6.5km | Stop | Greengates | Route | 100 | Destination | Monasterboice | Provider | Bus Éireann |
| Type | Bus | Distance | 6.6km | Stop | Cockle Hill | Route | 169 | Destination | Medical Centre | Provider | Halpenny Transport |
| Type | Bus | Distance | 6.6km | Stop | Cockle Hill | Route | 169 | Destination | Saint Patrick's Church | Provider | Halpenny Transport |
Ad performance
- Date listed19/02/2026
- Views238
Daft ID: 56501770