Suite 1 Saint Raphael's House, 81-84 Dorset Street Upper, Dublin
Price on Application
- Available From:Immediately
About Suite 1 Saint Raphael's House, 81-84 Dorset Street Upper
Description
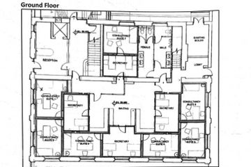
This property comprises a ground floor medical suite in the St. Raphael's Clinic. Suite 1 benefits from a shared secretarial service with one other Suite only. St. Raphael's Clinic is a self contained clinic providing 20 medical suites served by a shared reception area, waiting areas, secretarial areas, administration areas, canteen patient parking and toilet facilities. The suites also have the benefit of shared services such as lifts and comms rooms. The individual suites are fitted with WHB, recessed lights and perimeter trunking. St. Raphael’s House occupies a prominent position on Dorset Street, a key route linking Dublin’s north city centre with Drumcondra and the M1. It is within walking distance of O’Connell Street and close to the Mater Hospital and Temple Street Children’s Hospital. The area is well served by Dublin Bus, with Drumcondra Train Station and the LUAS Cross City line nearby. The surrounding neighbourhood offers a vibrant mix of commercial, educational and residential occupiers, ensuring strong footfall and excellent access to local amenities. Viewings by Appointment Only - Please contact Quinn Agnew Tenancy Tenant: A Significant Medical Organisation 20 year Lease from 1st July 2013 for overall complex. CPI Rent Review on 1st July 2026 No Break Clauses Current Rental Income for Suite 1: €21,426 Anticipated Rental Income July 2026: €25,766 (Indexed to CPI - January 2026)
The local area of Suite 1 Saint Raphael's House, 81-84 Dorset Street Upper
Local schools and transport

Learn more about what this area has to offer.
School Name | Distance | Pupils | |||
|---|---|---|---|---|---|
| School Name | Temple Street Hospital School | Distance | 140m | Pupils | 69 |
| School Name | Paradise Place Etns | Distance | 280m | Pupils | 237 |
| School Name | Gaelscoil Cholásite Mhuire | Distance | 400m | Pupils | 161 |
School Name | Distance | Pupils | |||
|---|---|---|---|---|---|
| School Name | Gardiner Street Primary School | Distance | 420m | Pupils | 313 |
| School Name | Henrietta Street School | Distance | 570m | Pupils | 20 |
| School Name | Scoil Chaoimhín | Distance | 780m | Pupils | 63 |
| School Name | Central Model Senior School | Distance | 840m | Pupils | 242 |
| School Name | An Taonad Reamhscoil | Distance | 850m | Pupils | 93 |
| School Name | Central Model Infants' School | Distance | 860m | Pupils | 148 |
| School Name | Rutland National School | Distance | 860m | Pupils | 153 |
School Name | Distance | Pupils | |||
|---|---|---|---|---|---|
| School Name | Belvedere College S.j | Distance | 230m | Pupils | 1004 |
| School Name | Mount Carmel Secondary School | Distance | 580m | Pupils | 398 |
| School Name | Larkin Community College | Distance | 690m | Pupils | 414 |
School Name | Distance | Pupils | |||
|---|---|---|---|---|---|
| School Name | O'Connell School | Distance | 940m | Pupils | 215 |
| School Name | The Brunner | Distance | 1.0km | Pupils | 219 |
| School Name | St Josephs Secondary School | Distance | 1.2km | Pupils | 238 |
| School Name | St Vincents Secondary School | Distance | 1.4km | Pupils | 409 |
| School Name | C.b.s. Westland Row | Distance | 1.9km | Pupils | 202 |
| School Name | Scoil Chaitríona | Distance | 2.0km | Pupils | 523 |
| School Name | St Patricks Cathedral Grammar School | Distance | 2.0km | Pupils | 302 |
Type | Distance | Stop | Route | Destination | Provider | ||||||
|---|---|---|---|---|---|---|---|---|---|---|---|
| Type | Bus | Distance | 10m | Stop | St Joseph's Parade | Route | 40d | Destination | Tyrrelstown | Provider | Dublin Bus |
| Type | Bus | Distance | 30m | Stop | Dorset Street Upper | Route | 40d | Destination | Parnell St | Provider | Dublin Bus |
| Type | Bus | Distance | 30m | Stop | Dorset Street Upper | Route | 19 | Destination | Merrion Square | Provider | Dublin Bus |
Type | Distance | Stop | Route | Destination | Provider | ||||||
|---|---|---|---|---|---|---|---|---|---|---|---|
| Type | Bus | Distance | 30m | Stop | Dorset Street Upper | Route | 33 | Destination | Abbey St | Provider | Dublin Bus |
| Type | Bus | Distance | 30m | Stop | Dorset Street Upper | Route | 41 | Destination | Abbey St | Provider | Dublin Bus |
| Type | Bus | Distance | 30m | Stop | Dorset Street Upper | Route | 16d | Destination | Ballinteer | Provider | Dublin Bus |
| Type | Bus | Distance | 30m | Stop | Dorset Street Upper | Route | 41b | Destination | Abbey St | Provider | Dublin Bus |
| Type | Bus | Distance | 30m | Stop | Dorset Street Upper | Route | 41d | Destination | Abbey St | Provider | Dublin Bus |
| Type | Bus | Distance | 30m | Stop | Dorset Street Upper | Route | 41c | Destination | Abbey St | Provider | Dublin Bus |
| Type | Bus | Distance | 30m | Stop | Dorset Street Upper | Route | 44 | Destination | Enniskerry | Provider | Dublin Bus |
BER Details
Ad performance
- Date listed24/02/2026
- Views1,999
Daft ID: 56505251