Westview, The Hill, Malahide, Co. Dublin, K36K680
€350,000
- Selling Type:By Private Treaty
- Available From:Immediately
About this property
Description
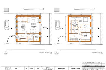
For sale by Kelly Bradshaw Dalton via the iamsold Bidding Platform Please note this property will be offered by online auction (unless sold prior). For auction date and time please visit iamsold.ie. Vendors may decide to accept pre-auction bids so please register your interest with us to avoid disappointment. We are delighted to present an exceptional opportunity to acquire a prime residential site in one of North Dublin€TM most sought-after locations. This ready-to-go site is offered with the benefit of full planning permission for the construction of a detached 3-bedroom home, thoughtfully designed for modern family living. Nestled within the mature and highly desirable setting of West View, The Hill, Malahide, this property enjoys a peaceful residential atmosphere while being only moments from the vibrant village centre, the coast, and all local amenities. The approved design features: A stylish, detached two-storey residence Generous internal layout including; Open-plan kitchen/dining/living area Three spacious bedrooms, including a master suite with ensuite Separate utility, pantry, and cloakroom Private garden space Shared driveway access with ample provision for off-street parking The proposed house is an impressive 241sqm and the site area allows for well-balanced indoor and outdoor living, combining privacy with a strong community setting. Full planning permission was granted under reference 2333_240618, ensuring a seamless transition to the construction phase. Nestled in the heart of one of North Dublin€TM most sought-after coastal communities, this home enjoys a superb location within Malahide village. This vibrant community is served by five local schools (four primary and one secondary), including Pope John Paul II National School, St. Oliver Plunkett Primary School and Malahide Community School only minutes away. Malahide boasts an impressive array of amenities, with over 30 restaurants, cafés, and bars creating a buzzing dining and social scene. The acclaimed Avoca café and food market, set within the stunning grounds of Malahide Castle, is only a five-minute stroll away. The castle itself offers 260 acres of parkland, woodlands, and walking trails making it a perfect escape for weekend strolls or outdoor adventures. Daily convenience is covered with a variety of boutique shops, salons, florists, and a small shopping centre all within easy reach. Transport links are excellent, with the DART station and a main bus stop just two minutes away, providing swift access to the city centre. Dublin Airport, the M1, and M50 are also close by, making travel and commuting a breeze. There are many sports and recreational options - whether it€TM golf, tennis, rugby, GAA, cricket, or sailing, you€TMl find active clubs and top-class facilities right on your doorstep. TO VIEW OR MAKE A BID Contact Kelly Bradshaw Dalton or iamsold, www.iamsoold.ie Auctioneers Comments: This property is offered for sale by unconditional auction. The successful bidder is required to pay a 10% deposit and contracts are signed immediately on acceptance of a bid. Please note this property is subject to an undisclosed reserve price. Terms and conditions apply to this sale.
The local area
The local area
Local schools and transport
Learn more about what this area has to offer.
School Name | Distance | Pupils | |||
---|---|---|---|---|---|
School Name | St Oliver Plunkett National School | Distance | 310m | Pupils | 869 |
School Name | St Andrew's National School Malahide | Distance | 590m | Pupils | 207 |
School Name | St Sylvester's Infant School | Distance | 1.0km | Pupils | 376 |
School Name | Distance | Pupils | |||
---|---|---|---|---|---|
School Name | St Helens Senior National School | Distance | 1.1km | Pupils | 371 |
School Name | Martello National School | Distance | 1.2km | Pupils | 330 |
School Name | Pope John Paul Ii National School | Distance | 1.6km | Pupils | 677 |
School Name | St Marnock's National School | Distance | 2.6km | Pupils | 623 |
School Name | Malahide / Portmarnock Educate Together National School | Distance | 2.8km | Pupils | 390 |
School Name | Kinsealy National School | Distance | 3.0km | Pupils | 190 |
School Name | Gaelscoil An Duinninigh | Distance | 3.2km | Pupils | 385 |
School Name | Distance | Pupils | |||
---|---|---|---|---|---|
School Name | Malahide Community School | Distance | 610m | Pupils | 1246 |
School Name | Portmarnock Community School | Distance | 1.6km | Pupils | 960 |
School Name | Malahide & Portmarnock Secondary School | Distance | 3.3km | Pupils | 607 |
School Name | Distance | Pupils | |||
---|---|---|---|---|---|
School Name | Fingal Community College | Distance | 4.7km | Pupils | 866 |
School Name | Grange Community College | Distance | 4.8km | Pupils | 526 |
School Name | Belmayne Educate Together Secondary School | Distance | 4.8km | Pupils | 530 |
School Name | Gaelcholáiste Reachrann | Distance | 4.8km | Pupils | 494 |
School Name | Coláiste Choilm | Distance | 5.0km | Pupils | 425 |
School Name | Donabate Community College | Distance | 5.2km | Pupils | 813 |
School Name | St. Finian's Community College | Distance | 5.4km | Pupils | 661 |
Type | Distance | Stop | Route | Destination | Provider | ||||||
---|---|---|---|---|---|---|---|---|---|---|---|
Type | Bus | Distance | 70m | Stop | The Hill Malahide | Route | 42d | Destination | Strand Road | Provider | Dublin Bus |
Type | Bus | Distance | 70m | Stop | The Hill Malahide | Route | 42 | Destination | Portmarnock | Provider | Dublin Bus |
Type | Bus | Distance | 70m | Stop | The Hill Malahide | Route | 142 | Destination | Coast Road | Provider | Dublin Bus |
Type | Distance | Stop | Route | Destination | Provider | ||||||
---|---|---|---|---|---|---|---|---|---|---|---|
Type | Bus | Distance | 100m | Stop | Hill Drive | Route | 42 | Destination | Talbot Street | Provider | Dublin Bus |
Type | Bus | Distance | 100m | Stop | Hill Drive | Route | 42d | Destination | Dcu | Provider | Dublin Bus |
Type | Bus | Distance | 100m | Stop | Hill Drive | Route | 142 | Destination | Ucd | Provider | Dublin Bus |
Type | Bus | Distance | 190m | Stop | Seamount Road | Route | 142 | Destination | Ucd | Provider | Dublin Bus |
Type | Bus | Distance | 190m | Stop | Seamount Road | Route | 42d | Destination | Dcu | Provider | Dublin Bus |
Type | Bus | Distance | 190m | Stop | Seamount Road | Route | 42 | Destination | Talbot Street | Provider | Dublin Bus |
Type | Bus | Distance | 200m | Stop | Seamount Road | Route | 42 | Destination | Portmarnock | Provider | Dublin Bus |
BER Details
Statistics
- 30/09/2025Entered
- 695Property Views
Daft ID: 522527350
Contact Agent