0.17 Acre Site With FPP, Site At 75 Cluain Dubh, Fr Russell Road
€175,000
- Price per m²:€871
- Estimated Stamp Duty:€1,750
- Selling Type:By Private Treaty
About this property
Description
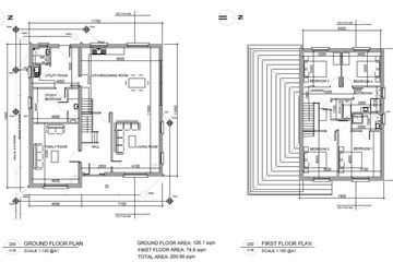
Sherry Fitzgerald are pleased to bring to the market this exceptional 0.17 acre site with full planning permission for a 5 bed, 4 bath detached property at 75 Cluain Dubh, Fr Russell Road, Raheen, Limerick. A unique opportunity to acquire a prime corner site in such a convenient location with full planning permission (Granted October 2024) to construct a stunning 201 sqm (2,164 sqft) detached property within walking distance of an abundance of local amenities. Situated in the heart of Raheen, this site offers a once in a lifetime chance to build your dream A-rated home in this vibrant and thriving community. Cluain Dubh is a cosy development with numerous green areas, mature trees and a wide range of local amenities on its doorstep. The property is close to award-winning shops, restaurants and pubs and is served by excellent primary and secondary schools, including St. Nessan s N.S., St. Paul s N.S, Limerick Educate Together, Mungret Community College Secondary School and Crescent College Comprehensive Secondary School. Raheen Business Park, University Hospital Limerick, Mungret Park and the Crescent Shopping Centre are all within walking distance, while the M7 motorway offers easy access to Castletroy, Shannon Airport, and beyond. The approved plans for this family home feature a thoughtfully designed layout to meet the needs of modern living. The accommodation will comprise of: Ground Floor: A spacious entrance hallway, an open-plan kitchen/diner/living room with dual-aspect windows and a south facing 4m wide sliding door flooding the space with natural light, a second family reception room, a utility room off the kitchen with access to a guest WC and a versatile ground floor study/bedroom 5 with ensuite. First Floor: Four generously sized double bedrooms including a master bedroom with an ensuite, a main family bathroom off the landing and a spacious hot press for additional storage. The site itself is expansive at 0.17 acres, featuring off-street parking for multiple cars and a large south-facing garden perfect for outdoor living and entertaining. Significant groundworks have already been completed including foundations and connections to the mains water, foul and surface water sewers which have been brought to within the site curtilage. All Limerick City & County Council financial contributions have also been paid in full. 50% of Irish Water connections fees paid. Both Limerick City & County Council and Irish Water have approved connections from the mains services to the proposed property. Plans are available to review upon request. Key Features: Full planning permission for a 201 sqm, 5 bed, 4 bath, A Rated detached family home on almost a fifth of an acre. Corner site in the highly sought after Cluain Dubh which is a quiet cul de sac development with no passing through traffic. Spacious, contemporary design with 5 double bedrooms, 2 ensuites and multiple living spaces. Foundations laid, all mains water and mains sewerage services connected. Limerick Council financial contributions paid in full and over 50% of Irish Water connections fees paid. Irish Water approval to connect to the public mains water and sewerage services previously granted. Public areas within the Cluain Dubh development including all roads, green areas, public lighting etc have been taken in charge by Limerick Council. Large, private, south-facing garden with no overlooking and ample off-street parking. Prime location in Raheen, close to schools, shops, and transport links. In the Limerick City and County Development Plan the site is located in an area zoned existing residential which means that no local planning permission restrictions apply, ie: anyone can buy the site to build their dream home on as you don t need to be from the local area. A family or builder/developer could also buy the site and reapply for new planning permission to build something else. This is a rare opportunity to create a bespoke family home tailored to your needs in one of Limerick s most desirable locations. Don t miss out on making your dream home a reality! Accommodation on current plans: Ent Hall, Family Room, Open plan Kitchen/Diner/Living Room, Guest WC, Study/Bed 5 with Ensuite, Utility, 4 First Floor Double Bedrooms, one with Ensuite, Main Bath, Hot-Press. Buyers should note that No 75 will be the final property to be constructed in Cluain Dubh and so offers a rare opportunity to acquire a new-build home within a fully completed development.
The local area
The local area
Sold properties in this area
Stay informed with market trends
Local schools and transport

Learn more about what this area has to offer.
School Name | Distance | Pupils | |||
|---|---|---|---|---|---|
| School Name | Red Hill School | Distance | 280m | Pupils | 62 |
| School Name | St Nessan's National School | Distance | 500m | Pupils | 665 |
| School Name | The Children's Ark School | Distance | 890m | Pupils | 34 |
School Name | Distance | Pupils | |||
|---|---|---|---|---|---|
| School Name | St. Paul's School | Distance | 1.0km | Pupils | 579 |
| School Name | St Gabriel's Special School | Distance | 1.1km | Pupils | 65 |
| School Name | Limerick City East Educate Together National School | Distance | 1.1km | Pupils | 382 |
| School Name | Limerick Community Special School | Distance | 1.1km | Pupils | 30 |
| School Name | Gaelscoil An Ráithín | Distance | 1.4km | Pupils | 394 |
| School Name | Catherine Mcauley School | Distance | 2.4km | Pupils | 270 |
| School Name | Scoil Mháthair Dé | Distance | 2.7km | Pupils | 414 |
School Name | Distance | Pupils | |||
|---|---|---|---|---|---|
| School Name | Mungret Community College | Distance | 1.1km | Pupils | 940 |
| School Name | Crescent College Comprehensive Sj | Distance | 1.7km | Pupils | 922 |
| School Name | Laurel Hill Secondary School Fcj | Distance | 2.9km | Pupils | 725 |
School Name | Distance | Pupils | |||
|---|---|---|---|---|---|
| School Name | Laurel Hill Coláiste Fcj | Distance | 2.9km | Pupils | 343 |
| School Name | St Clements College | Distance | 3.0km | Pupils | 411 |
| School Name | Villiers Secondary School | Distance | 3.0km | Pupils | 526 |
| School Name | Limerick City East Secondary School | Distance | 3.7km | Pupils | 714 |
| School Name | Ardscoil Ris | Distance | 3.8km | Pupils | 747 |
| School Name | Colaiste Mhichil | Distance | 4.0km | Pupils | 346 |
| School Name | Coláiste Nano Nagle | Distance | 4.1km | Pupils | 356 |
Type | Distance | Stop | Route | Destination | Provider | ||||||
|---|---|---|---|---|---|---|---|---|---|---|---|
| Type | Bus | Distance | 140m | Stop | Racefield Centre | Route | 301 | Destination | Westbury | Provider | Bus Éireann |
| Type | Bus | Distance | 140m | Stop | Racefield Centre | Route | 301 | Destination | City Centre | Provider | Bus Éireann |
| Type | Bus | Distance | 150m | Stop | Racefield Centre | Route | 301 | Destination | Father Russell Road | Provider | Bus Éireann |
Type | Distance | Stop | Route | Destination | Provider | ||||||
|---|---|---|---|---|---|---|---|---|---|---|---|
| Type | Bus | Distance | 390m | Stop | Saint Nessan's School | Route | 304a | Destination | Mungret Park | Provider | Bus Éireann |
| Type | Bus | Distance | 390m | Stop | Saint Nessan's School | Route | 301 | Destination | Father Russell Road | Provider | Bus Éireann |
| Type | Bus | Distance | 430m | Stop | Saint Nessan's School | Route | 301 | Destination | Westbury | Provider | Bus Éireann |
| Type | Bus | Distance | 430m | Stop | Saint Nessan's School | Route | 301 | Destination | City Centre | Provider | Bus Éireann |
| Type | Bus | Distance | 430m | Stop | Saint Nessan's School | Route | 304a | Destination | City Centre | Provider | Bus Éireann |
| Type | Bus | Distance | 430m | Stop | Saint Nessan's School | Route | 304a | Destination | University | Provider | Bus Éireann |
| Type | Bus | Distance | 470m | Stop | Mungret Gate | Route | 304a | Destination | Mungret Park | Provider | Bus Éireann |
Your Mortgage and Insurance Tools
Check off the steps to purchase your new home
Use our Buying Checklist to guide you through the whole home-buying journey.
Budget calculator
Calculate how much you can borrow and what you'll need to save
Ad performance
- Date listed02/12/2024
- Views5,202
- Potential views if upgraded to an Advantage Ad8,479
Similar properties
€390,000
47 Courtfields, Raheen, Raheen, Co. Limerick, V94PAA85 Bed · 3 Bath · Semi-D€399,000
16 Oakfield, Father Russell Road, Raheen, Co. Limerick, V94PYN45 Bed · 5 Bath · Semi-D€420,000
Rosahane, Dooradoyle Road, Dooradoyle, Limerick, V94RRK65 Bed · 1 Bath · Detached€495,000
The Waterways, Loughanleigh, Mungret, Co. Limerick, V94RWD85 Bed · 2 Bath · Bungalow
Daft ID: 120428726