2 Hawthorn Place, Laharn, Killorglin, Co. Kerry, V93X2FH
€460,000
- Price per m²:€2,738
- Estimated Stamp Duty:€4,600
- Selling Type:By Private Treaty
About this property
Description
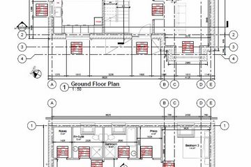
*****NEWLY BUILT HOME***** We are delighted to offer 2 Hawthorn Place to the market, which comprises of a newly built 4 bed spacious detached private residence. The accommodation therein comprises of: Ground floor: Sitting room 4.25m X 3.94m Kitchen/dining area 6.74m X 3.8m Utility 2.72m X 2.1m Toilet 2.4m X 2.3m Bedroom One 3.65m X 3.5m First floor: Bedroom two 4.26m X 3.8m Ensuite 2.42m X 2.3m Walk in wardrobe 2.42m X 1.4m Bathroom 2.5m X 2.42m Bedroom three 3.8m X 3.63m Bedroom four 3.95m X 3.8m Main Features Include A2 Energy rated with cavity block construction including pumped insulation Air to water heating system Triple glazed windows Brick feature footpaths Driveway finished and kerbed Good electrical specification including wiring for alarm and car charging point 10 Year HomeBond Guarantee External Features * High quality render finish with a unique stone façade to front elevation of homes. * 400mm blockwork cavity wall construction with 200mm fully insulated cavity. * High quality black PVC downpipes, fascia and soffit. External lighting to front, side and rear doors. * Outdoor tap provided to rear of house. * Private rear gardens with separating walls, grass seeded with precast concrete post and panel fencing separating each house. * Triple glazed external windows. Windows and Doors * High quality and energy efficient triple glazed Alu clad windows and doors. * Munster Joinery doors with secure locking system. Internal Features * Walls and ceiling smooth finished plaster. * First floor timber joists. * High quality internal doors and ironmongery. * High quality timber feature stairs. Electrical & Heating * Generous electrical specification throughout. *TV data points in living room. * Wired for fibre optic broadband. * Smoke and heat detectors installed. * External power provided to the rear of the house for a shed. * Modern Air to water central heating system with stats provided on each floor for temperature control. * Pressurised hot and cold-water supply. * Underfloor heating to ground floor with radiators on first and second floor. * Ventilation heat recovery system provided throughout to ensure the homes are provided with ambient ventilation. Energy Efficiency * Minimum A2 BER for energy efficient homes with 200mm thick insulated walls and highest performance for air tightness. Guarantee *Comes with a 10-year Structural Defects Guarantee. Hawthorn Place is within easy walking distance of town centre and very central to commuting towns of Killarney and Tralee. QUALIFIES FOR HELP TO BUY SCHEME MINUTES WALK TO TOWN CENTRE SMALL EXCLUSIVE ESTATE OF JUST 9 HOMES IN TOTAL TARMACADAM DRIVEWAY COMPLETED TO A BUILDERS FINISH For more info or an appointment to view call Adrian on 087 1303206.
The local area
The local area
Sold properties in this area
Stay informed with market trends
Local schools and transport

Learn more about what this area has to offer.
School Name | Distance | Pupils | |||
|---|---|---|---|---|---|
| School Name | Scoil Mhuire | Distance | 1.1km | Pupils | 362 |
| School Name | Douglas National School | Distance | 2.6km | Pupils | 32 |
| School Name | Glounaguillagh National School | Distance | 4.0km | Pupils | 145 |
School Name | Distance | Pupils | |||
|---|---|---|---|---|---|
| School Name | Cromane National School | Distance | 5.4km | Pupils | 137 |
| School Name | Kilgobnet National School | Distance | 6.5km | Pupils | 85 |
| School Name | Fibough National School | Distance | 7.1km | Pupils | 30 |
| School Name | St Francis Special School | Distance | 7.2km | Pupils | 73 |
| School Name | Nagle-rice Primaryschool | Distance | 7.5km | Pupils | 358 |
| School Name | Castledrum National School | Distance | 8.2km | Pupils | 110 |
| School Name | Curraheen National School | Distance | 8.5km | Pupils | 43 |
School Name | Distance | Pupils | |||
|---|---|---|---|---|---|
| School Name | The Intermediate School | Distance | 640m | Pupils | 623 |
| School Name | Killorglin Community College | Distance | 1.3km | Pupils | 288 |
| School Name | Presentation Secondary School | Distance | 7.6km | Pupils | 683 |
School Name | Distance | Pupils | |||
|---|---|---|---|---|---|
| School Name | Cbs The Green | Distance | 19.1km | Pupils | 799 |
| School Name | Gaelcholáiste Chiarraí | Distance | 19.5km | Pupils | 329 |
| School Name | Killarney Community College | Distance | 19.9km | Pupils | 476 |
| School Name | St Brendan's College | Distance | 20.1km | Pupils | 873 |
| School Name | St. Brigid's Presentation Secondary School | Distance | 20.1km | Pupils | 770 |
| School Name | Coláiste Gleann Lí Post Primary School | Distance | 20.4km | Pupils | 308 |
| School Name | Mercy Secondary School Mounthawk | Distance | 20.7km | Pupils | 1326 |
Type | Distance | Stop | Route | Destination | Provider | ||||||
|---|---|---|---|---|---|---|---|---|---|---|---|
| Type | Bus | Distance | 1.0km | Stop | Killorglin | Route | 279 | Destination | Killarney Via Killorglin | Provider | Bus Éireann |
| Type | Bus | Distance | 1.0km | Stop | Killorglin | Route | 280 | Destination | Waterville | Provider | Tfi Local Link Kerry |
| Type | Bus | Distance | 1.0km | Stop | Killorglin | Route | 280 | Destination | Killarney | Provider | Tfi Local Link Kerry |
Type | Distance | Stop | Route | Destination | Provider | ||||||
|---|---|---|---|---|---|---|---|---|---|---|---|
| Type | Bus | Distance | 1.0km | Stop | Killorglin | Route | 279 | Destination | Tralee Via Killorglin | Provider | Bus Éireann |
| Type | Bus | Distance | 1.0km | Stop | Killorglin | Route | 280 | Destination | Killorglin | Provider | Tfi Local Link Kerry |
| Type | Bus | Distance | 1.0km | Stop | Killorglin | Route | 279a | Destination | Cahersiveenviakillorglin | Provider | Bus Éireann |
| Type | Bus | Distance | 1.0km | Stop | Killorglin | Route | 279a | Destination | Tralee Via Killorglin | Provider | Bus Éireann |
| Type | Bus | Distance | 6.4km | Stop | Kerry Bog Village | Route | 280 | Destination | Killarney | Provider | Tfi Local Link Kerry |
| Type | Bus | Distance | 6.4km | Stop | Kerry Bog Village | Route | 280 | Destination | Killorglin | Provider | Tfi Local Link Kerry |
| Type | Bus | Distance | 6.4km | Stop | Kerry Bog Village | Route | 280 | Destination | Waterville | Provider | Tfi Local Link Kerry |
Your Mortgage and Insurance Tools
Check off the steps to purchase your new home
Use our Buying Checklist to guide you through the whole home-buying journey.
Budget calculator
Calculate how much you can borrow and what you'll need to save
BER Details
Statistics
- 20/12/2025Entered
- 112Property Views
- 183
Potential views if upgraded to a Daft Advantage Ad
Learn How
Similar properties
€450,000
Laharn, Killorglin, Killorglin, Co. Kerry, V93R2604 Bed · 2 Bath · Bungalow€450,000
1 Hawthorn Place, Laharn, Killorglin, Co. Kerry4 Bed · 3 Bath · Detached€450,000
Hillgrove House, Laharn, Killorglin, Co. Kerry, V93R2604 Bed · 2 Bath · Detached€450,000
1 Hawthorn Place, Laharn, Killorglin, Co. Kerry, V93X2FH4 Bed · 3 Bath · Detached
€465,000
2 Hawthorn Place, Laharn, Killorglin, Co. Kerry4 Bed · 3 Bath · Detached€475,000
4 Carrig Dun, Killorglin, Co. Kerry5 Bed · 3 Bath · Detached€475,000
4 Carraig Dun, Ballymacprior, Killorglin, Co. Kerry, V93T6585 Bed · 3 Bath · Detached€475,000
9 Hawthorn Place, Laharn, Killorglin, Co. Kerry, V93X2FH5 Bed · 3 Bath · Detached€499,950
Ocean Wave, Curraheen, Glenbeigh, Co. Kerry, V93AVX410 Bed · 11 Bath · Detached€525,000
Lower Bridge Street, Killorglin, Co. Kerry4 Bed · 3 Bath · Townhouse€565,000
DETACHED HOUSE , Bruach Na Cluana, Bruach Na Cluana , Killorglin, Co. Kerry4 Bed · 4 Bath · Detached€565,000
House Type B, Bruach Na Cluana, Bruach Na Cluana, Killorglin, Co. Kerry4 Bed · 4 Bath ·
Daft ID: 16458715
