Crannaghtown, Navan, Co. Meath, C15AT02
Price on Application
- Selling Type:By Private Treaty
About Navan Crannaghtown
Description
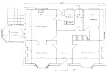
- Substantial shell residence with well apportioned rooms on 0.6 acre site. - For Sale Subject to Planning Permission. - A unique opportunity to finish a home to your own specification. - Located only 7.5km from Kells, 7.5km from Athboy & 20km from Navan. Description Two storey residence extending to approximately 3,473 squared feet internal floor area. Building commenced in 2000 and finished to shell condition. Accommodation consists of entrance hall, sitting room, living room, kitchen cum dining room, sun room, utility room, guest wc and downstairs bedroom/family room. Upstairs, there are four bedrooms (master and second bedroom with en-suite), main bathroom and good sized hot press. The property offers somebody the opportunity to make a fabulous home in an excellent location. Services Sewerage system to be installed and water mains to be connected Location Located only 7.5km from Kells, 7.5km from Athboy & 20km from Navan. Situated off the R164 regional road connecting Kells and Athboy, this property enjoys countryside living in an area that's easily connected to Dublin and surrounding regions via M3 Motorway. The nearby heritage town of Kells provides an array of amenities including schools (primary and secondary), health facilities, shopping, hotels, restaurants and pubs, together with a variety of sporting and leisure facilities that include Headfort Golf Club - an award winning Champion¬ship Golf Course and Girley Eco Walk - a national waymarked route through a tranquil Coilte forest. Directions EIR Code C15 AT02 Viewing strictly by appointment only. All viewings by sole selling agents Smith Harrington Chartered Surveyors. Tel: 046 9021113 8/9 Bridge Street, Navan, Co Meath C15 F386. Please note we have not tested any apparatus, fixtures, fittings or services. Interested parties must undertake their own investigation into the working order of these items. All measurements are approximate and photographs/floors provided for guidance only.
The local area of Navan Crannaghtown
Sold properties in this area
Stay informed with market trends
Local schools and transport

Learn more about what this area has to offer.
School Name | Distance | Pupils | |||
|---|---|---|---|---|---|
| School Name | Cortown National School | Distance | 2.1km | Pupils | 106 |
| School Name | Rathmore National School | Distance | 3.8km | Pupils | 41 |
| School Name | St Colmcille's Sns | Distance | 5.2km | Pupils | 355 |
School Name | Distance | Pupils | |||
|---|---|---|---|---|---|
| School Name | Our Lady Of Mercy Junior School | Distance | 5.3km | Pupils | 326 |
| School Name | Kells Parochial National School | Distance | 5.3km | Pupils | 60 |
| School Name | Drumbaragh National School | Distance | 6.5km | Pupils | 85 |
| School Name | St Ultans National School Bohermeen | Distance | 6.8km | Pupils | 240 |
| School Name | O'Growney National School | Distance | 6.9km | Pupils | 379 |
| School Name | Bunscoil Ráth Chairn | Distance | 7.2km | Pupils | 179 |
| School Name | Kilskyre National School | Distance | 7.5km | Pupils | 88 |
School Name | Distance | Pupils | |||
|---|---|---|---|---|---|
| School Name | St Ciarán's Community School | Distance | 5.2km | Pupils | 597 |
| School Name | Eureka Secondary School | Distance | 5.3km | Pupils | 759 |
| School Name | Athboy Community School | Distance | 6.2km | Pupils | 653 |
School Name | Distance | Pupils | |||
|---|---|---|---|---|---|
| School Name | Coláiste Pobail Rath Cairn | Distance | 6.6km | Pupils | 138 |
| School Name | St. Patrick's Classical School | Distance | 12.7km | Pupils | 938 |
| School Name | St. Joseph's Secondary School, Navan, | Distance | 13.3km | Pupils | 712 |
| School Name | Beaufort College | Distance | 13.8km | Pupils | 917 |
| School Name | Loreto Secondary School | Distance | 14.0km | Pupils | 909 |
| School Name | Scoil Mhuire Trim | Distance | 15.3km | Pupils | 820 |
| School Name | Boyne Community School | Distance | 15.6km | Pupils | 998 |
Type | Distance | Stop | Route | Destination | Provider | ||||||
|---|---|---|---|---|---|---|---|---|---|---|---|
| Type | Bus | Distance | 3.8km | Stop | Rathmore | Route | 188 | Destination | Athboy | Provider | Tfi Local Link Louth Meath Fingal |
| Type | Bus | Distance | 5.4km | Stop | Kells Primary Care Centre | Route | 177 | Destination | Kells | Provider | Tfi Local Link Louth Meath Fingal |
| Type | Bus | Distance | 5.5km | Stop | Kells | Route | 109a | Destination | Kells | Provider | Bus Éireann |
Type | Distance | Stop | Route | Destination | Provider | ||||||
|---|---|---|---|---|---|---|---|---|---|---|---|
| Type | Bus | Distance | 5.5km | Stop | Kells | Route | 107 | Destination | Navan | Provider | Bus Éireann |
| Type | Bus | Distance | 5.5km | Stop | Kells | Route | Dy01 | Destination | Kells | Provider | Mccaffrey Coaches |
| Type | Bus | Distance | 5.5km | Stop | Kells | Route | 109 | Destination | Kells | Provider | Bus Éireann |
| Type | Bus | Distance | 5.5km | Stop | Kells | Route | 177 | Destination | Ardee | Provider | Tfi Local Link Louth Meath Fingal |
| Type | Bus | Distance | 5.5km | Stop | Kells | Route | Um05 | Destination | Kells | Provider | Streamline Coaches |
| Type | Bus | Distance | 5.5km | Stop | Kells | Route | Ek1 | Destination | Virginia | Provider | Bus Éireann |
| Type | Bus | Distance | 5.5km | Stop | Kells | Route | 178 | Destination | Cootehill | Provider | Tfi Local Link Cavan Monaghan |
Your Mortgage and Insurance Tools
Check off the steps to purchase your new home
Use our Buying Checklist to guide you through the whole home-buying journey.
Budget calculator
Calculate how much you can borrow and what you'll need to save
BER Details
Ad performance
- Date listed01/09/2025
- Views8,075
- Potential views if upgraded to an Advantage Ad13,162
Properties similar to Navan Crannaghtown
€350,000
35 Oakleigh, Swan Lane, Balreask Old, Navan, Co. Meath, C15KF9Y5 Bed · 3 Bath · Semi-D€425,000
61 Bailis Manor, Navan, Athlumney, Co. Meath, C15A9Y45 Bed · 3 Bath · Semi-D€580,000
15 Boyne View, Johnstown, Navan, Co. Meath, C15PFR15 Bed · 4 Bath · Detached€625,000
195 Canterbrook, Navan, Navan, Co. Meath, C15EWH36 Bed · 5 Bath · Detached
€675,000
4 The Drive, Glenveigh, Boyne Road, Navan, Co. Meath, C15F68N5 Bed · 4 Bath · Detached€695,000
Woodboyne, Boyne Road, Navan, Co. Meath, C15W8X65 Bed · 3 Bath · Detached€750,000
Alexanderaide, Navan, Athlumney, Co. Meath, C15C2H37 Bed · 5 Bath · Detached€785,000
21 Springfield Glen, Navan, Co. Meath, C15N5F65 Bed · 4 Bath · Detached€795,000
4 Boynehill, Navan, Kilcarn, Co. Meath, C15F3P06 Bed · 3 Bath · Bungalow
Daft ID: 123066786