No. 60 Lavey Manor, Charlestown, Co. Mayo
€450,000
- Price per m²:€2,761
- Estimated Stamp Duty:€4,500
- Selling Type:By Private Treaty
About this property
Highlights
- Excellent Location
- 5 Bedroom New Build A Rated Home
- Master Bedroom En-suite
- Walking distance to all local amenities, Schools, Shops etc
- Parking to the Front
Description
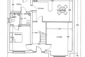
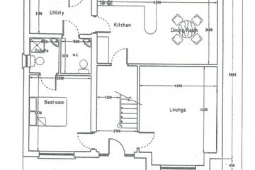
Located just on the edge of Charlestown this 5-Bedroom A Rated Home will be Built Upon Purchase. The Home will consist of 5 Bedrooms with the Master Suite and 2 double Bedrooms being en-suite , a large Kitchen-Diner, Utility, downstairs Water Closet, Living room and Family Bathroom. Internal Specification 5-Bedroom, A2 Rated Home with a floor plan of 1,750Sq. Ft. (63m2) White doors, door frames, architrave, skirting board, wood painted white. Air to Water under floor heating on the Ground Floor with radiators on the 1st Floor. Ground Floor will be sand and liquid cement screed. 1st Floor will be OSB Board or similar. Mellody Sanitary ware for bathroom's (2) and en-suite's (3) fitted white as standard. House will be fully painted inside and outside. External Specification Double glazed PVC windows Composite Front Door, PVC Patio Door and Back Door. White Aluminium Facia, Soffit, Downpipes and Eve Gutters. Tarmacadam driveway. Concrete paths around House. Garden raked and seeded. Allowances Laminate Flooring on the 1st Floor. Some alterations are possible and must be known to the contractor / architect in advance of signing contracts. Ref: N001 To view all our other properties visit connaughtproperty.ie
The local area
The local area
Sold properties in this area
Stay informed with market trends
Local schools and transport

Learn more about what this area has to offer.
School Name | Distance | Pupils | |||
|---|---|---|---|---|---|
| School Name | St.attracta's National School Charlestown | Distance | 780m | Pupils | 254 |
| School Name | St.attracta's National School Charlestown | Distance | 780m | Pupils | 254 |
| School Name | Curry National School | Distance | 4.7km | Pupils | 86 |
School Name | Distance | Pupils | |||
|---|---|---|---|---|---|
| School Name | Curry National School | Distance | 4.7km | Pupils | 86 |
| School Name | Cloonlyon National School | Distance | 4.9km | Pupils | 36 |
| School Name | Cloonlyon National School | Distance | 4.9km | Pupils | 36 |
| School Name | Tavneena National School | Distance | 5.2km | Pupils | 12 |
| School Name | Tavneena National School | Distance | 5.2km | Pupils | 12 |
| School Name | Carracastle Central National School | Distance | 5.6km | Pupils | 81 |
| School Name | Carracastle Central National School | Distance | 5.6km | Pupils | 81 |
School Name | Distance | Pupils | |||
|---|---|---|---|---|---|
| School Name | St Joseph's Community College | Distance | 940m | Pupils | 201 |
| School Name | St Joseph's Community College | Distance | 940m | Pupils | 201 |
| School Name | St Attracta's Community School | Distance | 10.1km | Pupils | 710 |
School Name | Distance | Pupils | |||
|---|---|---|---|---|---|
| School Name | St Attracta's Community School | Distance | 10.1km | Pupils | 710 |
| School Name | Scoil Muire Agus Padraig | Distance | 11.0km | Pupils | 410 |
| School Name | Scoil Muire Agus Padraig | Distance | 11.0km | Pupils | 410 |
| School Name | St Nathy's College | Distance | 15.2km | Pupils | 658 |
| School Name | St Nathy's College | Distance | 15.2km | Pupils | 658 |
| School Name | St Louis Community School | Distance | 19.0km | Pupils | 690 |
| School Name | St Louis Community School | Distance | 19.0km | Pupils | 690 |
Type | Distance | Stop | Route | Destination | Provider | ||||||
|---|---|---|---|---|---|---|---|---|---|---|---|
| Type | Bus | Distance | 430m | Stop | Charlestown | Route | 64 | Destination | Newcastle | Provider | Bus Éireann |
| Type | Bus | Distance | 430m | Stop | Charlestown | Route | 451 | Destination | Longford | Provider | Bus Éireann |
| Type | Bus | Distance | 430m | Stop | Charlestown | Route | 964 | Destination | Galway Cathedral | Provider | Bus Feda Teoranta |
Type | Distance | Stop | Route | Destination | Provider | ||||||
|---|---|---|---|---|---|---|---|---|---|---|---|
| Type | Bus | Distance | 430m | Stop | Charlestown | Route | 451 | Destination | Longford | Provider | Bus Éireann |
| Type | Bus | Distance | 430m | Stop | Charlestown | Route | 440 | Destination | Athlone | Provider | Bus Éireann |
| Type | Bus | Distance | 430m | Stop | Charlestown | Route | 22 | Destination | Dublin Airport | Provider | Bus Éireann |
| Type | Bus | Distance | 430m | Stop | Charlestown | Route | 451 | Destination | Ballina | Provider | Bus Éireann |
| Type | Bus | Distance | 430m | Stop | Charlestown | Route | 964 | Destination | Atu Galway | Provider | Bus Feda Teoranta |
| Type | Bus | Distance | 430m | Stop | Charlestown | Route | 22 | Destination | Dublin | Provider | Bus Éireann |
| Type | Bus | Distance | 430m | Stop | Charlestown | Route | 64 | Destination | Newcastle | Provider | Bus Éireann |
Your Mortgage and Insurance Tools
Check off the steps to purchase your new home
Use our Buying Checklist to guide you through the whole home-buying journey.
Budget calculator
Calculate how much you can borrow and what you'll need to save
BER Details
Ad performance
- Date listed31/01/2025
- Views10,709
- Potential views if upgraded to an Advantage Ad17,456
Daft ID: 120753318
