C. 0.23 Acre Site,, Crescent Road, Rush,, Co. Dublin
€245,000
- Selling Type:By Private Treaty
About this property
Highlights
- The new owner will need to qualify under the RU zoning and apply for new PP in their names. Please note: RU zoning and PP obtained with conditions - s
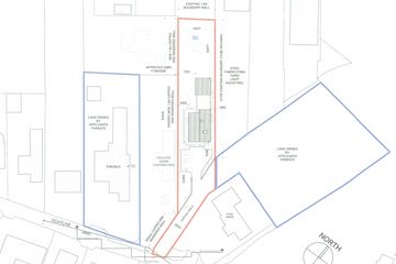
- Site of c.0.23 Acres
- Full Planning Permission - F21A/0545
- Planning for detached bugalow style residence
- Private entrance via a right of way off Crescent road
Description
The property comprises an area of ground measuring c. 0.23 acre situated adjacent one off housing along Crescent Road in Rush. The location, whilst designated rural and with rural characteristics has a distinctly urban feel with the proliferation of one-off and cluster built housing nearby. The property is walking distance to South Beach, Rush sailing Club, Rogerstown Estuary and Rush Golf Club. The property would make an ideal site subject to obtaining planning permission – Local Needs will apply. The new owner will need to qualify under the RU zoning and apply for new PP in their names. Please note: RU zoning and PP obtained with conditions - special condition no.3 states that the use of the structure when completed is for the sole use of the applicant and or member of immediate family for a minimum period of 7 years. Ideally positioned for those who love the charm of coastal living while still enjoying excellent connectivity. A short stroll takes you to Rush town centre, where you’ll find a fantastic selection of cafés, restaurants, shops, and local amenities. For commuters, bus stops on the main street offer regular services, while the Rush/Lusk train station is just a short drive away, providing easy access to Dublin city and beyond. This is a rare opportunity to own a truly exceptional home in one of North County Dublin’s most sought-after seaside towns. All planning documentation including drawings and elevations can be viewed on the Fingal County Council website. The planning reference is F21A/0545. Price Guide €245,000 Site of c.0.23 acre Full Planning Permission with local need conditions Planning for detached bugalow style residence Private entrance via a right of way off Crescent road Walking distance to Beach and Harbour Short walk to town centre, schools, park, shops and a host of sporting amenities AREA We estimate the site area to be 0.23 acre intending purchasers must satisfy themselves as to the correct acreage. TITLE We are advised of a freehold title - please refer to solicitor details below. VIEWING Inspections can be facilitated through the selling agents. ZONING RU Rural “Protect and promote in a balanced way, the development of agriculture and rural-related enterprise, biodiversity, the rural landscape, and the built and cultural heritage“. ACCURACY The maps, photos & measurements in this brochure are for information purposes only to facilitate identification and are not to be relied on.
The local area
The local area
Sold properties in this area
Stay informed with market trends
Local schools and transport

Learn more about what this area has to offer.
School Name | Distance | Pupils | |||
|---|---|---|---|---|---|
| School Name | Rush National School | Distance | 630m | Pupils | 708 |
| School Name | Rush National School | Distance | 630m | Pupils | 708 |
| School Name | Gaelscoil Ros Eo | Distance | 1.6km | Pupils | 159 |
School Name | Distance | Pupils | |||
|---|---|---|---|---|---|
| School Name | Gaelscoil Ros Eo | Distance | 1.6km | Pupils | 159 |
| School Name | St Catherine's National School | Distance | 2.1km | Pupils | 278 |
| School Name | St Catherine's National School | Distance | 2.1km | Pupils | 278 |
| School Name | Crannóg Nua Special School | Distance | 2.8km | Pupils | 6 |
| School Name | Crannóg Nua Special School | Distance | 2.8km | Pupils | 6 |
| School Name | Rush And Lusk Educate Together | Distance | 3.2km | Pupils | 410 |
| School Name | Rush And Lusk Educate Together | Distance | 3.2km | Pupils | 410 |
School Name | Distance | Pupils | |||
|---|---|---|---|---|---|
| School Name | St Joseph's Secondary School | Distance | 1.4km | Pupils | 928 |
| School Name | St Joseph's Secondary School | Distance | 1.4km | Pupils | 928 |
| School Name | Lusk Community College | Distance | 3.2km | Pupils | 1081 |
School Name | Distance | Pupils | |||
|---|---|---|---|---|---|
| School Name | Lusk Community College | Distance | 3.2km | Pupils | 1081 |
| School Name | Donabate Community College | Distance | 3.7km | Pupils | 813 |
| School Name | Donabate Community College | Distance | 3.7km | Pupils | 813 |
| School Name | Skerries Community College | Distance | 6.8km | Pupils | 1029 |
| School Name | Skerries Community College | Distance | 6.8km | Pupils | 1029 |
| School Name | Malahide Community School | Distance | 9.2km | Pupils | 1246 |
| School Name | Malahide Community School | Distance | 9.2km | Pupils | 1246 |
Type | Distance | Stop | Route | Destination | Provider | ||||||
|---|---|---|---|---|---|---|---|---|---|---|---|
| Type | Bus | Distance | 270m | Stop | Healy's Lane | Route | 33 | Destination | Abbey St | Provider | Dublin Bus |
| Type | Bus | Distance | 270m | Stop | Healy's Lane | Route | 33x | Destination | Merrion Square W | Provider | Dublin Bus |
| Type | Bus | Distance | 270m | Stop | Healy's Lane | Route | 33a | Destination | Carlton Court | Provider | Go-ahead Ireland |
Type | Distance | Stop | Route | Destination | Provider | ||||||
|---|---|---|---|---|---|---|---|---|---|---|---|
| Type | Bus | Distance | 270m | Stop | Healy's Lane | Route | 33a | Destination | Dublin Airport | Provider | Go-ahead Ireland |
| Type | Bus | Distance | 270m | Stop | Healy's Lane | Route | 33a | Destination | Station Road | Provider | Go-ahead Ireland |
| Type | Bus | Distance | 270m | Stop | Healy's Lane | Route | 33x | Destination | Merrion Square W | Provider | Dublin Bus |
| Type | Bus | Distance | 270m | Stop | Healy's Lane | Route | 33 | Destination | Abbey St | Provider | Dublin Bus |
| Type | Bus | Distance | 270m | Stop | Healy's Lane | Route | 33a | Destination | Carlton Court | Provider | Go-ahead Ireland |
| Type | Bus | Distance | 270m | Stop | Healy's Lane | Route | 33a | Destination | Skerries | Provider | Go-ahead Ireland |
| Type | Bus | Distance | 270m | Stop | Healy's Lane | Route | 33a | Destination | Balbriggan | Provider | Go-ahead Ireland |
Your Mortgage and Insurance Tools
Check off the steps to purchase your new home
Use our Buying Checklist to guide you through the whole home-buying journey.
Budget calculator
Calculate how much you can borrow and what you'll need to save
Ad performance
- Date listed30/08/2025
- Views1,980
- Potential views if upgraded to an Advantage Ad3,227
Similar properties
€259,000
4 Bayside Villas, Sandy Road, Rush, Rush, Co. Dublin, K56YA212 Bed · 1 Bath · Apartment€275,000
19 Synod Place, Lusk Village, Lusk, Co. Dublin, K45K2262 Bed · 2 Bath · Apartment€295,000
82 Thorn Chase, Palmer Road, Rush, Co. Dublin, K56X0032 Bed · 1 Bath · Terrace€295,000
36 Thorn Chase, Rush, Co. Dublin, K56NX772 Bed · 2 Bath · Terrace
€300,000
Land At Man O War, Courtlough, Lusk, Co. DubinSite€310,000
14 Woodland Court, Lower Main Street, Rush, Co. Dublin, K56AY202 Bed · 1 Bath · Apartment€325,000
20 Abbeylands, Lusk, Co. Dublin, K45F6742 Bed · 1 Bath · House€325,000
17 Scholars Walk, Lusk Village, Lusk, Co. Dublin, K45A3103 Bed · 2 Bath · House€345,000
4 The Grove, Saint Catherine'S Estate, Rush, Co. Dublin, K56CX433 Bed · 1 Bath · Terrace€349,000
61 Páirc Na Blathanna, Hayestown, Rush, Co. Dublin2 Bed · 2 Bath · Semi-D€350,000
21 Whitethorn Walk, Lusk Village, Lusk, Lusk, Co. Dublin, K45N5782 Bed · 2 Bath · Terrace€353,800
Priory Fields, Golf Links Road, Skerries, Co. Dublin, K34D9202 Bed · 2 Bath · Duplex
Daft ID: 16270176