Carra, Bullaun, Alloon Lower, Co. Galway, H62YP38
€60,000
- Selling Type:By Private Treaty
About this property
Highlights
- Full Planning Permission
- Accessible Location
- Single Story Dwelling
Description
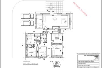
FOR SALE – c. 0.5 Acre Site with Full Planning Permission Carra, Bullaun, Loughrea, Co. Galway Guide Price: €60,000 Catherine Cooney of HPS Real Estate is delighted to bring to the market a superb site with full planning permission, located in the picturesque rural setting of Carra, Bullaun. The area offers peaceful countryside living while remaining close to essential local amenities. The site is conveniently positioned near the villages of Bullaun and New Inn, with easy access to a range of services including schools (both primary and secondary), a church, GAA facilities, scenic walkways, and the popular Turoe Pet Farm. For commuters, the property is ideally located just 10 minutes from Loughrea Town and the M6 Motorway, offering quick connectivity to Galway City and surrounding areas. Site Description This attractive site extends to approximately 0.5 acres and benefits from full planning permission for: A single-storey dwelling Domestic garage New sewage treatment system and percolation area Planning Details Main Dwelling Gross Floor Area: 196 sq.m Garage Gross Floor Area: 60 sq.m The approved design features two interlinked buildings with the following measurements: Building 1: 5,900mm x 13,200mm Building 2: 14,290mm x 9,300mm Key Internal Layout (GIA): Open Plan Kitchen/Dining/Living Area: 12,500mm x 5,200mm Entrance Hallway & Coat Press: 3,300mm x 1,650mm Utility Room: 2,600mm x 2,500mm Main Bathroom: 3,200mm x 2,500mm Master Bedroom: 3,700mm x 3,090mm Walk-in Wardrobe: 2,100mm x 2,400mm Ensuite: 2,700mm x 1,400mm Bedroom 2: 3,600mm x 3,700mm Bedroom 3: 3,600mm x 3,700mm Bedroom 4 / Playroom: 3,900mm x 4,000mm Sitting Room: 3,900mm x 4,500mm Viewing & Enquiries
The local area
The local area
Sold properties in this area
Stay informed with market trends
Local schools and transport

Learn more about what this area has to offer.
School Name | Distance | Pupils | |||
|---|---|---|---|---|---|
| School Name | Bullaun National School | Distance | 3.9km | Pupils | 219 |
| School Name | S N An Cnoc Bhreac | Distance | 4.2km | Pupils | 107 |
| School Name | S N Cill Richill | Distance | 5.0km | Pupils | 61 |
School Name | Distance | Pupils | |||
|---|---|---|---|---|---|
| School Name | Brackloon National School | Distance | 6.0km | Pupils | 31 |
| School Name | Cappataggle National School | Distance | 6.1km | Pupils | 108 |
| School Name | Kilcooley National School | Distance | 7.6km | Pupils | 110 |
| School Name | St Ita's Loughrea | Distance | 8.5km | Pupils | 304 |
| School Name | St Brendan's Boys National School | Distance | 8.7km | Pupils | 226 |
| School Name | Kiltullagh National School | Distance | 9.1km | Pupils | 196 |
| School Name | Mullagh National School | Distance | 9.2km | Pupils | 90 |
School Name | Distance | Pupils | |||
|---|---|---|---|---|---|
| School Name | Coláiste Chilleáin Naofa St. Killian's College | Distance | 4.2km | Pupils | 173 |
| School Name | St. Raphael's College | Distance | 8.4km | Pupils | 741 |
| School Name | St. Brigid's College | Distance | 8.5km | Pupils | 754 |
School Name | Distance | Pupils | |||
|---|---|---|---|---|---|
| School Name | Clarin College | Distance | 16.8km | Pupils | 1102 |
| School Name | Presentation College | Distance | 16.9km | Pupils | 1081 |
| School Name | Coláiste An Eachréidh | Distance | 17.0km | Pupils | 238 |
| School Name | Garbally College | Distance | 18.0km | Pupils | 460 |
| School Name | Ardscoil Mhuire | Distance | 18.1km | Pupils | 481 |
| School Name | St. Cuan's College | Distance | 18.4km | Pupils | 410 |
| School Name | Coláiste An Chreagáin | Distance | 21.9km | Pupils | 103 |
Type | Distance | Stop | Route | Destination | Provider | ||||||
|---|---|---|---|---|---|---|---|---|---|---|---|
| Type | Bus | Distance | 3.2km | Stop | Ballyfa | Route | 548 | Destination | Loughrea | Provider | Tfi Local Link Galway |
| Type | Bus | Distance | 3.2km | Stop | Ballyfa | Route | 548 | Destination | Athlone | Provider | Tfi Local Link Galway |
| Type | Bus | Distance | 4.0km | Stop | Bullaun | Route | 548 | Destination | Loughrea | Provider | Tfi Local Link Galway |
Type | Distance | Stop | Route | Destination | Provider | ||||||
|---|---|---|---|---|---|---|---|---|---|---|---|
| Type | Bus | Distance | 4.0km | Stop | Bullaun | Route | 548 | Destination | Athlone | Provider | Tfi Local Link Galway |
| Type | Bus | Distance | 4.1km | Stop | New Inn | Route | 548 | Destination | Athlone | Provider | Tfi Local Link Galway |
| Type | Bus | Distance | 4.2km | Stop | New Inn | Route | 548 | Destination | Loughrea | Provider | Tfi Local Link Galway |
| Type | Bus | Distance | 6.1km | Stop | Cappataggle | Route | 548 | Destination | Loughrea | Provider | Tfi Local Link Galway |
| Type | Bus | Distance | 6.2km | Stop | Cappataggle | Route | 548 | Destination | Athlone | Provider | Tfi Local Link Galway |
| Type | Bus | Distance | 7.6km | Stop | Saint Brendan's Park | Route | 920 | Destination | Dublin Road | Provider | Healy Bus |
| Type | Bus | Distance | 7.6km | Stop | Saint Brendan's Park | Route | 920 | Destination | Uni Of Galway | Provider | Healy Bus |
Your Mortgage and Insurance Tools
Check off the steps to purchase your new home
Use our Buying Checklist to guide you through the whole home-buying journey.
Budget calculator
Calculate how much you can borrow and what you'll need to save
Statistics
- 07/07/2025Entered
- 3,601Property Views
- 5,870
Potential views if upgraded to a Daft Advantage Ad
Learn How
Similar properties
€280,000
Caraun More, New Inn, New Inn, Co. Galway, H53R2983 Bed · 3 Bath · Detached€485,000
Rathglass,New Inn, New Inn, Co. Galway5 Bed · 3 Bath · Detached€495,000
Rathglass, New Inn, Ballinasloe, Co. Galway5 Bed · 3 Bath · Detached€525,000
Knocknadaula, Kiltullagh, Athenry, Co. Galway, H65X0125 Bed · 3 Bath · Detached
Daft ID: 16207659