Cruach Na Cille, Gortlee, Letterkenny, Co. Donegal
€399,500
- Price per m²:€3,026
- Estimated Stamp Duty:€3,995
- Selling Type:By Private Treaty
About this property
Highlights
- Turnkey Finish
- Proposed A2 Energy Rated Houses
- Air to water heating system with HRV (Heat Recovery Ventilation)
- Triple glazed grey upvc windows
- 100% Energy Efficient Lighting
Description
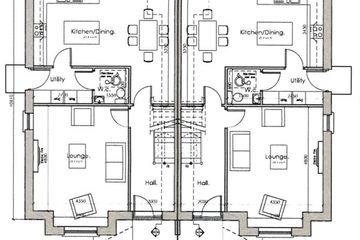
Sherry FitzGerald Paul Reynolds are delighted to confirm a further release of newly constructed Semi Detached Dwellings at ‘Cruach Na Cille’ Gortlee, Letterkenny, Co. Donegal ‘Cruach Na Cille’ is the ideal choice for first-time buyers, and commuters who want to put down roots in an attractive area With all town amenities at their door step. This thoughtfully designed and well-laid-out development offers A rated homes measuring 133 sq m Qualifies for Government backed “Help To Buy” Scheme ‘Cruach Na Cille’ is conveniently located in Gortlee within walking distance of Letterkenny Town Centre, offering ease of access to all local & town amenities These very carefully designed and spacious houses offer a floor area of 133 sq m (1431 sq ft) Entrance Hall 2.0 x 1.0. Staircase leading to first floor Living Room 4.8 x 4.3 Kitchen/Dining area 6.4 x 5.2 Utility Room 2.7 x 1.6. Door leading to rear of property WC 1.6 x 1.5. Comprising w.c and wash hand basin. Landing Hot press Bedroom 1 3.9 x 3.1 Ensuite 2.8 x 1.0. Comprising w.c wash hand basin and shower Bedroom 2 3.7 x 3.1 Bedroom 3 3.7 x 3.1 Bedroom 4 2.9 x 2.4 Bathroom 2.4 x 2.0. Comprising wc. wash hand basin and bath
The local area
The local area
Sold properties in this area
Stay informed with market trends
Local schools and transport

Learn more about what this area has to offer.
School Name | Distance | Pupils | |||
|---|---|---|---|---|---|
| School Name | Letterkenny Educate Together National School | Distance | 560m | Pupils | 421 |
| School Name | Ballyraine National School | Distance | 600m | Pupils | 222 |
| School Name | Little Angels School | Distance | 1.3km | Pupils | 133 |
School Name | Distance | Pupils | |||
|---|---|---|---|---|---|
| School Name | Letterkenny National School | Distance | 1.9km | Pupils | 479 |
| School Name | Letterkenny National School | Distance | 2.1km | Pupils | 661 |
| School Name | St Bernadette's Special School | Distance | 2.4km | Pupils | 115 |
| School Name | Gaelscoil Adhamhnáin | Distance | 2.4km | Pupils | 406 |
| School Name | Lurgybrack National School | Distance | 2.9km | Pupils | 426 |
| School Name | Woodland National School | Distance | 3.3km | Pupils | 476 |
| School Name | Illistrin National School | Distance | 4.5km | Pupils | 514 |
School Name | Distance | Pupils | |||
|---|---|---|---|---|---|
| School Name | Coláiste Ailigh | Distance | 1.4km | Pupils | 321 |
| School Name | Errigal College | Distance | 1.5km | Pupils | 547 |
| School Name | Loreto Secondary School, Letterkenny | Distance | 2.0km | Pupils | 944 |
School Name | Distance | Pupils | |||
|---|---|---|---|---|---|
| School Name | St Eunan's College | Distance | 2.2km | Pupils | 1014 |
| School Name | Deele College | Distance | 11.6km | Pupils | 831 |
| School Name | The Royal And Prior School | Distance | 11.9km | Pupils | 611 |
| School Name | Loreto Community School | Distance | 14.7km | Pupils | 807 |
| School Name | Mulroy College | Distance | 15.1km | Pupils | 628 |
| School Name | St Columbas College | Distance | 17.4km | Pupils | 949 |
| School Name | Finn Valley College | Distance | 17.7km | Pupils | 424 |
Type | Distance | Stop | Route | Destination | Provider | ||||||
|---|---|---|---|---|---|---|---|---|---|---|---|
| Type | Bus | Distance | 260m | Stop | Gortlee Road | Route | 963 | Destination | Gortlee | Provider | Doherty's Coach Travel |
| Type | Bus | Distance | 320m | Stop | Ballyraine Park | Route | 963 | Destination | Mountain Top | Provider | Doherty's Coach Travel |
| Type | Bus | Distance | 320m | Stop | Ballyraine Park | Route | 963 | Destination | Gortlee | Provider | Doherty's Coach Travel |
Type | Distance | Stop | Route | Destination | Provider | ||||||
|---|---|---|---|---|---|---|---|---|---|---|---|
| Type | Bus | Distance | 570m | Stop | Ballyraine School | Route | 963 | Destination | Gortlee | Provider | Doherty's Coach Travel |
| Type | Bus | Distance | 570m | Stop | Ballyraine School | Route | 989 | Destination | Letterkenny | Provider | Tfi Local Link Donegal Sligo Leitrim |
| Type | Bus | Distance | 570m | Stop | Ballyraine School | Route | 989 | Destination | Carrigans | Provider | Tfi Local Link Donegal Sligo Leitrim |
| Type | Bus | Distance | 690m | Stop | Atu Ballyraine | Route | 989 | Destination | Carrigans | Provider | Tfi Local Link Donegal Sligo Leitrim |
| Type | Bus | Distance | 690m | Stop | Atu Ballyraine | Route | 989 | Destination | Letterkenny | Provider | Tfi Local Link Donegal Sligo Leitrim |
| Type | Bus | Distance | 690m | Stop | Beinn Aoibhinn | Route | 963 | Destination | Gortlee | Provider | Doherty's Coach Travel |
| Type | Bus | Distance | 830m | Stop | Ida Business Park | Route | 963 | Destination | Gortlee | Provider | Doherty's Coach Travel |
Your Mortgage and Insurance Tools
Check off the steps to purchase your new home
Use our Buying Checklist to guide you through the whole home-buying journey.
Budget calculator
Calculate how much you can borrow and what you'll need to save
BER Details
Statistics
- 21/11/2025Entered
- 10,114Property Views
- 16,486
Potential views if upgraded to a Daft Advantage Ad
Learn How
Similar properties
€375,000
51 The Maples, Lismonaghan, Letterkenny, Co. Donegal, F92P5KF4 Bed · 3 Bath · Detached€389,500
9 Lios an Chnoic, Carnamuggagh, Letterkenny, Co. Donegal4 Bed · 3 Bath · Semi-D€400,000
59 Lower Main Street, Letterkenny, Letterkenny, Co. Donegal, F92A58P4 Bed · 1 Bath · Townhouse€450,000
Thornberry , Letterkenny, Co. Donegal4 Bed · 3 Bath · Detached
€450,000
1 Pine Point, Glebe, Letterkenny, Co. Donegal, F92XWA27 Bed · 4 Bath · Detached€460,000
1 Pine Point, Glebe, Letterkenny, Co. Donegal, F92XWA26 Bed · 3 Bath · Detached€465,000
Crievesmith, Letterkenny, Co. Donegal, F92N9PR4 Bed · 3 Bath · Detached€475,000
Kirkstown, Letterkenny, Co. Donegal4 Bed · 3 Bath · Detached€475,000
Kirkstown, Letterkenny, Co. Donegal4 Bed · 3 Bath · Detached€495,000
Kilmagner, Upper Ballymacool, Letterkenny, Co. Donegal, F92A7319 Bed · 3 Bath · Detached€520,000
Dromore Lower, Letterkenny, Co. Donegal, F92T9YN5 Bed · 5 Bath · Detached€550,000
2 Woodvale Court, Letterkenny, Co. Donegal, F92DA2N5 Bed · Detached
Daft ID: 120273690