0.97 Acre Site Forgney, Ballymahon, Co. Longford
€80,000
- Selling Type:By Private Treaty
About this property
Description
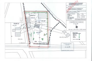
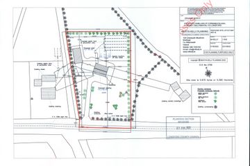
An excellent opportunity to acquire a 0.97 acre (approx.) site with full planning permission for a spacious four-bedroom detached home, ideally located just minutes from Ballymahon. This private and secluded site offers the perfect setting to build a home in a peaceful yet well-connected area of the Midlands. The proposed plans feature a layout that includes an entrance hall, a generous living room open to the kitchen and dining area, a utility room, and a guest WC on the ground floor. Upstairs, the design offers a landing leading to four bedrooms—two with front aspect and two overlooking the rear. The primary bedroom includes an en-suite, with a main family bathroom completing the accommodation. Located just minutes from Ballymahon and within easy reach of Edgeworthstown, Mullingar, Longford, and Athlone, this site offers the benefits of rural living with access to a full range of amenities. It is also close to the scenic and historic Lough Ree, as well as the popular Center Parcs resort at Longford Forest, enhancing both lifestyle appeal and long-term value. This is a unique opportunity to create a family home in a family-friendly area. The combination of generous site size, planning permission, and excellent location makes this aan ideal choice for self-builders or investors seeking a prime residential project. Viewing is highly recommended to fully appreciate the setting and potential this site has to offer. Special Features & Services - 0.97 acres approx. - Full planning permission for a 4 bed detached house - Secluded site - Unique opportunity - Close to Athlone - Close to Mullingar - Close to Edgeworthstown - Five minutes from Ballymahon - Close to Longford - Close to Centre Parks Ballymahon - Prime location - Family area - Private site Directions Situated beside N91YC64
The local area
The local area
Sold properties in this area
Stay informed with market trends
Local schools and transport

Learn more about what this area has to offer.
School Name | Distance | Pupils | |||
|---|---|---|---|---|---|
| School Name | Forgney National School | Distance | 1.4km | Pupils | 22 |
| School Name | Moyvore National School | Distance | 3.5km | Pupils | 30 |
| School Name | Tashinny National School | Distance | 5.5km | Pupils | 23 |
School Name | Distance | Pupils | |||
|---|---|---|---|---|---|
| School Name | St Sinneach's National School | Distance | 5.9km | Pupils | 103 |
| School Name | Eoin Naofa National School | Distance | 6.0km | Pupils | 104 |
| School Name | St Matthews Mixed National School | Distance | 6.5km | Pupils | 372 |
| School Name | Tang National School | Distance | 7.8km | Pupils | 130 |
| School Name | Milltown National School | Distance | 8.7km | Pupils | 88 |
| School Name | Drumraney National School | Distance | 8.9km | Pupils | 25 |
| School Name | Lenamore National School | Distance | 9.1km | Pupils | 70 |
School Name | Distance | Pupils | |||
|---|---|---|---|---|---|
| School Name | Mercy Secondary School | Distance | 6.4km | Pupils | 760 |
| School Name | Ballymahon Vocational School | Distance | 6.8km | Pupils | 420 |
| School Name | Moate Community School | Distance | 16.8km | Pupils | 910 |
School Name | Distance | Pupils | |||
|---|---|---|---|---|---|
| School Name | Wilson's Hospital School | Distance | 18.7km | Pupils | 430 |
| School Name | Athlone Community College | Distance | 20.9km | Pupils | 1161 |
| School Name | Our Lady's Bower | Distance | 21.1km | Pupils | 638 |
| School Name | Marist College | Distance | 21.2km | Pupils | 608 |
| School Name | St. Finian's College | Distance | 21.3km | Pupils | 877 |
| School Name | Meán Scoil Mhuire | Distance | 21.6km | Pupils | 607 |
| School Name | Colaiste Mhuire, | Distance | 21.9km | Pupils | 835 |
Type | Distance | Stop | Route | Destination | Provider | ||||||
|---|---|---|---|---|---|---|---|---|---|---|---|
| Type | Bus | Distance | 3.2km | Stop | Moyvore | Route | 448 | Destination | Mullingar | Provider | Bus Éireann |
| Type | Bus | Distance | 3.2km | Stop | Moyvore | Route | 448 | Destination | Mullingar | Provider | Bus Éireann |
| Type | Bus | Distance | 3.9km | Stop | Ballincurra | Route | 448 | Destination | Mullingar | Provider | Bus Éireann |
Type | Distance | Stop | Route | Destination | Provider | ||||||
|---|---|---|---|---|---|---|---|---|---|---|---|
| Type | Bus | Distance | 3.9km | Stop | Ballincurra | Route | 448 | Destination | Mullingar | Provider | Bus Éireann |
| Type | Bus | Distance | 5.9km | Stop | Ballymore East | Route | 819 | Destination | Belvedere House | Provider | Tfi Local Link Longford Westmeath Roscommon |
| Type | Bus | Distance | 5.9km | Stop | Ballymore East | Route | 819 | Destination | Mullingar | Provider | Tfi Local Link Longford Westmeath Roscommon |
| Type | Bus | Distance | 6.0km | Stop | Ballymore West | Route | Mb01 | Destination | Moate Business School | Provider | Allen's Bus Hire |
| Type | Bus | Distance | 6.0km | Stop | Ballymore West | Route | 70 | Destination | Mullingar | Provider | Bus Éireann |
| Type | Bus | Distance | 6.0km | Stop | Ballymore West | Route | 819 | Destination | Mullingar | Provider | Tfi Local Link Longford Westmeath Roscommon |
| Type | Bus | Distance | 6.0km | Stop | Ballymore West | Route | 819 | Destination | Belvedere House | Provider | Tfi Local Link Longford Westmeath Roscommon |
Your Mortgage and Insurance Tools
Check off the steps to purchase your new home
Use our Buying Checklist to guide you through the whole home-buying journey.
Budget calculator
Calculate how much you can borrow and what you'll need to save
Ad performance
- Date listed31/07/2025
- Views2,721
- Potential views if upgraded to an Advantage Ad4,435
Similar properties
€75,000
Creevaghbeg, Ballymahon, Co. LongfordSite€75,000
The Island, Keenagh, Co. Longford2 Bed · Detached€80,000
Lurgan, Glasson, Co. WestmeathSite€80,000
Beech Cottage, Mosstown, Keenagh, Co. Longford, N39E0661 Bed · 1 Bath · Detached
€120,000
Creagh, Keenagh, Barry, Co. Longford, N39XV302 Bed · 1 Bath · Detached€120,000
Mornin, Moydow, Co. Longford3 Bed · 1 Bath · Detached€145,000
The Old Mill, Forgney, Ballymahon, Co. LongfordSite€169,000
15 Thomond Lodge, Ballymahon, Ballymahon, Co. Longford, N39X2942 Bed · 1 Bath · Bungalow€179,950
19 Thomond Lodge, Ballymahon, Ballymahon, Co. Longford, N39WY402 Bed · 1 Bath · Bungalow€180,000
34 Thomond Court, Ballymahon, Ballymahon, Co. Longford, N39H0062 Bed · 2 Bath · Apartment€280,000
Tashinny, Colehill, Co. Longford, N39N6P14 Bed · 2 Bath · Detached€305,000
21 Auburn Way, Cluain Rí, Ballymahon, Co. Longford, N39AD924 Bed · 3 Bath · Semi-D
Daft ID: 122578620