37a McKee Park, Off Blackhorse Ave, Dublin 7, Co. Dublin
€195,000
- Selling Type:By Private Treaty
About this property
Highlights
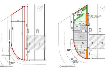
- Full planning permission Ref: 4961/22 for 4-bedroom detached dwelling
- All services just outside the site
- Superb location
- Ready to go site
Description
ATTENTION BUILDERS AND HOUSE PURCHASERS.... OPPORTUNITY NOT TO BE MISSED Fantastic Opportunity to BUILD your own house for less than the cost of similar pre-built house. Well appointed side garden site with full planning permission Ref: 4961/22 for 4-bedroom detached dwelling - 129 m2, including attic bedroom with front and rear gardens. Car Parking Space allowed in Front Garden Rear Garden with Pedestrian Access Gate. Ample Off Street Parking as side of house for further vehicles. See plans attached for dimensions. Would ideally suit Builder or person wishing to return to their local area where they could build an Eco Friendly House for a very attractive price thereby cutting down dramatically on the future costs of heating. Close to Phoenix Park, City Centre, Heuston Train Station. Walking distance to New DIT Campus, LUAS, Mater Hospital, Temple Street Hospital & St Mary's Hospital. Ideal family home in this well settled area off Blackhorse Avenue. PROPERTY VISION gives notice that these particulars are set out as a general outline only for the guidance of intending Purchasers or Lessees and do not constitute any part of an offer or contract. Details are given without any responsibility and any intending Purchasers, Lessees or Third Party should not rely on them as statements or representations of fact but must satisfy themselves by inspection or otherwise as to the correctness of each of them. No person in the employment of PROPRTY VISION has any authority to make any representation or warranty whatsoever in relation to this property.
The local area
Sold properties in this area
Stay informed with market trends
Local schools and transport

Learn more about what this area has to offer.
School Name | Distance | Pupils | |||
|---|---|---|---|---|---|
| School Name | North Dublin Muslim National School | Distance | 600m | Pupils | 406 |
| School Name | St Gabriels National School | Distance | 770m | Pupils | 176 |
| School Name | Gaelscoil Bharra | Distance | 970m | Pupils | 214 |
School Name | Distance | Pupils | |||
|---|---|---|---|---|---|
| School Name | Dublin 7 Educate Together | Distance | 990m | Pupils | 513 |
| School Name | Christ The King Junior Girls School | Distance | 1.0km | Pupils | 40 |
| School Name | Christ The King Senior School | Distance | 1.1km | Pupils | 77 |
| School Name | Christ The King Boys National School | Distance | 1.1km | Pupils | 101 |
| School Name | St. Finbarr's Boys National School | Distance | 1.2km | Pupils | 110 |
| School Name | Stanhope Street Primary School | Distance | 1.4km | Pupils | 400 |
| School Name | St. Catherine's Senior Girls School | Distance | 1.4km | Pupils | 149 |
School Name | Distance | Pupils | |||
|---|---|---|---|---|---|
| School Name | Coláiste Mhuire | Distance | 660m | Pupils | 256 |
| School Name | St Declan's College | Distance | 970m | Pupils | 653 |
| School Name | Cabra Community College | Distance | 1.2km | Pupils | 260 |
School Name | Distance | Pupils | |||
|---|---|---|---|---|---|
| School Name | St Josephs Secondary School | Distance | 1.3km | Pupils | 238 |
| School Name | St. Dominic's College | Distance | 1.5km | Pupils | 778 |
| School Name | The Brunner | Distance | 1.8km | Pupils | 219 |
| School Name | St Vincents Secondary School | Distance | 2.0km | Pupils | 409 |
| School Name | James' Street Cbs | Distance | 2.1km | Pupils | 220 |
| School Name | Mount Carmel Secondary School | Distance | 2.2km | Pupils | 398 |
| School Name | Belvedere College S.j | Distance | 2.5km | Pupils | 1004 |
Type | Distance | Stop | Route | Destination | Provider | ||||||
|---|---|---|---|---|---|---|---|---|---|---|---|
| Type | Bus | Distance | 120m | Stop | Mckee Park | Route | 37 | Destination | Blanchardstown Sc | Provider | Dublin Bus |
| Type | Bus | Distance | 120m | Stop | Mckee Park | Route | N2 | Destination | Clontarf Station | Provider | Go-ahead Ireland |
| Type | Bus | Distance | 120m | Stop | Mc Kee Park | Route | N2 | Destination | Heuston Station | Provider | Go-ahead Ireland |
Type | Distance | Stop | Route | Destination | Provider | ||||||
|---|---|---|---|---|---|---|---|---|---|---|---|
| Type | Bus | Distance | 200m | Stop | Dunard Walk | Route | N2 | Destination | Heuston Station | Provider | Go-ahead Ireland |
| Type | Bus | Distance | 200m | Stop | Dunard Walk | Route | 37 | Destination | Bachelor's Walk | Provider | Dublin Bus |
| Type | Bus | Distance | 230m | Stop | Glenbeigh Avenue | Route | N2 | Destination | Heuston Station | Provider | Go-ahead Ireland |
| Type | Bus | Distance | 230m | Stop | Glenbeigh Avenue | Route | 37 | Destination | Bachelor's Walk | Provider | Dublin Bus |
| Type | Bus | Distance | 250m | Stop | Blackhorse Avenue | Route | N2 | Destination | Clontarf Station | Provider | Go-ahead Ireland |
| Type | Bus | Distance | 340m | Stop | Dunard | Route | 39 | Destination | Ongar | Provider | Dublin Bus |
| Type | Bus | Distance | 340m | Stop | Dunard | Route | 70 | Destination | Dunboyne | Provider | Dublin Bus |
Your Mortgage and Insurance Tools
Check off the steps to purchase your new home
Use our Buying Checklist to guide you through the whole home-buying journey.
Budget calculator
Calculate how much you can borrow and what you'll need to save
Ad performance
- Date listed11/10/2024
- Views20,749
- Potential views if upgraded to an Advantage Ad33,821
Properties similar to this property
€195,000
Site To Rear 234 Clonliffe Road, Drumcondra, Dublin 3Site€210,000
Apartment 527, Talbot Hall, Dublin 1, D01AV241 Bed · 1 Bath · Apartment€225,000
50 Stapleton House, Mountjoy Square, Dublin 11 Bed · 1 Bath · Apartment€225,000
Apartment 140 Block B, The Maltings, Dublin 8, D08NX561 Bed · 1 Bath · Apartment
€225,000
Apartment 7, 11 Nelson Street, Phibsborough, Dublin 7, D07TRW61 Bed · 1 Bath · Apartment€225,000
Apartment 151, Clifden Court, Smithfield, Co. Dublin, D07KN801 Bed · 1 Bath · Apartment€225,000
Apartment 44, Gloucester Square, Railway Street, Dublin 1, D01WF621 Bed · 1 Bath · Apartment€225,000
Apartment 24, 55 Mountjoy Square West, Dublin 1, Co. Dublin, D01XD921 Bed · 1 Bath · Apartment€239,000
21 Sackville Court, Blessington Street, Dublin 7, D07K1931 Bed · 1 Bath · Apartment€240,000
4 Gandon Hall, Gardiner Street Lower, Dublin 1, D01Y3621 Bed · 1 Bath · Apartment€240,000
Apartment 70, Finnegan House, Viking Harbour Apartments, Dublin 8, Co. Dublin, D08A2181 Bed · 1 Bath · Apartment€245,000
15 Berryfield Crescent, Finglas, Dublin 113 Bed · 1 Bath · End of Terrace
Daft ID: 120184683
