4 Sites Along, Kilhedge Lane, Corduff, Lusk, Co. Dublin
€160,000
- Selling Type:By Private Treaty
About this property
Highlights
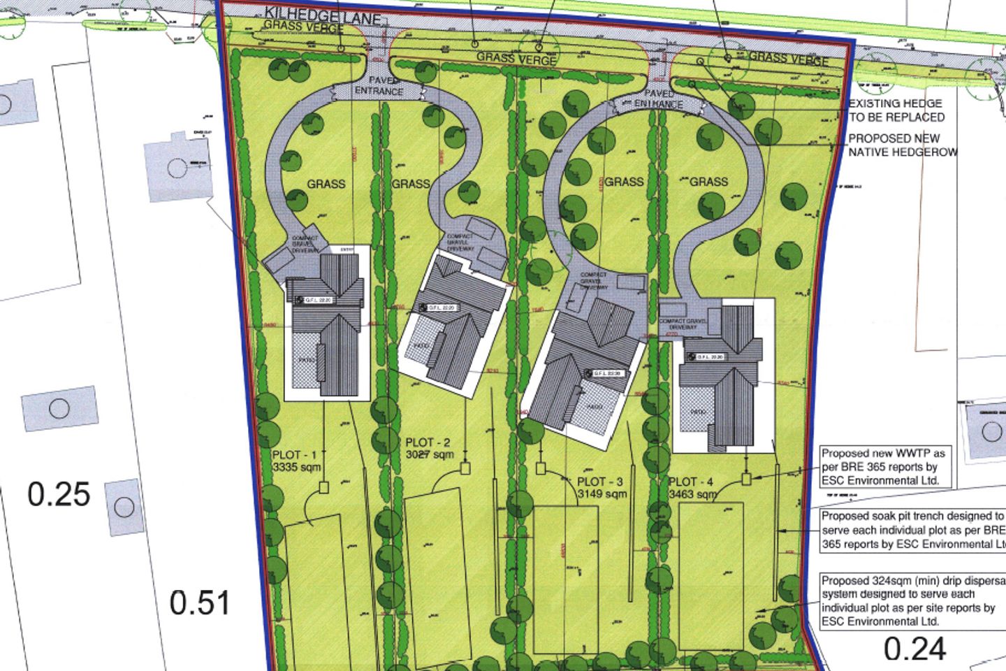
- Plot 1 0.815 Acre 0.33 Ha
- Plot 2 0.741 Acre 0.30 Ha
- Plot 3 0.837 Acre 0.31 Ha
- Plot 4 0.865 Acre 0.35 Ha
- Intending purchasers must independently satisfy themselves as to the correct acreage as the above information is provided as a guideline only
Description
Residential sites situated close to Lusk Plot 1 0.815 Acre 0.33 Ha - €160,000 Plot 2 0.741 Acre 0.30 Ha - €160,000 Plot 3 0.837 Acre 0.31 Ha - €160,000 - SOLD Plot 4 0.865 Acre 0.35 Ha - €160,000 - SOLD Location The property is situated with frontage onto Kilhedge Lane linking the the R132 (former Dublin-Belfast Road) at Corduff to Lusk town approximately 1 Km distant. Blakes Cross & Blakes Cross Industrial Estate are further south along the R132 (approx. 1Km) The property is also within 2.5 km of Turvey industrial Park and very convenient to the M1 motorway, Dublin Airport, the M50 road network, Dublin Port tunnel and Dublin City centre. Property Description The property comprises four individual sites with Outline Planning Permission for houses and can be purchased as single sites or as two or more together. The sites are available to parties who qualify under FCC rural Housing Policy as set out in their 2023 - 2029 Development plan: Housing in Rural Fingal - Rural Clusters Rural Clusters largely comprise areas with limited essential infrastructure and services, generally benefitting from one or more existing community or other local facilities. Development within Rural Clusters will be limited to incremental local growth appropriate to their size and character. For the most part, Rural Clusters provide an opportunity for family members of existing households within the cluster to build a new home, or reuse and adapt an existing structure by sub-dividing large sites. They also provide the rural community with an opportunity to choose more rural-style housing than that which is provided within the Rural Villages. Future development will be considered having regard to the role and form of the cluster within the wider rural area, taking particular care that clusters do not compete with villages in the services they provide or the role and function they play within the rural area. Settlement within the Rural Clusters is open to members of the Fingal rural community who demonstrate a rural-generated housing need. For the purposes of the Rural Settlement Strategy for Rural Clusters, rural generated housing need is defined below as: 1. Persons currently living and who have lived continuously for the past ten years or have previously lived for a minimum of ten continuous years, or 2. Persons working continuously for the past ten years, within areas of the County currently zoned rural. These areas are zoned Rural Village (RV), Rural Cluster (RC), Rural (RU), Greenbelt (GB), or High Amenity (HA). Ref: Fingal Development Plan 2023-2029 Town Planning The property benefits from a Zoning Objective “RC” Rural Cluster – “Provide for small scale infill development serving local needs while maintaining the rural nature of the cluster”. The property benefits from Outline Planning Permission for the construction of one-off dwelling. Plot 1 0.815 Acre 0.33 Ha @ €160,000 Plot 2 2 0.741 Acre 0.30 Ha @ €160,000 Plot 3 0.837 Acre 0.31 Ha @ €160,000 - SOLD Plot 4 0.865 Acre 0.35 Ha @ €160,000 - SOLD
The local area
The local area
Sold properties in this area
Stay informed with market trends
Local schools and transport

Learn more about what this area has to offer.
School Name | Distance | Pupils | |||
|---|---|---|---|---|---|
| School Name | Corduff National School | Distance | 400m | Pupils | 90 |
| School Name | Lusk S.n.s. St. Maccullins | Distance | 1.6km | Pupils | 416 |
| School Name | Lusk Junior National School St Maccullins | Distance | 1.7km | Pupils | 382 |
School Name | Distance | Pupils | |||
|---|---|---|---|---|---|
| School Name | Rush And Lusk Educate Together | Distance | 2.2km | Pupils | 410 |
| School Name | Hedgestown National School | Distance | 3.9km | Pupils | 67 |
| School Name | St Mary's Special School Drumcar | Distance | 4.0km | Pupils | 98 |
| School Name | Donabate/portrane Educate Together National School | Distance | 4.0km | Pupils | 419 |
| School Name | Gaelscoil Na Mara | Distance | 4.2km | Pupils | 105 |
| School Name | St Patricks Boys National School | Distance | 4.3km | Pupils | 371 |
| School Name | Scoil Phádraic Cailíní | Distance | 4.4km | Pupils | 384 |
School Name | Distance | Pupils | |||
|---|---|---|---|---|---|
| School Name | Lusk Community College | Distance | 2.3km | Pupils | 1081 |
| School Name | Donabate Community College | Distance | 4.2km | Pupils | 813 |
| School Name | St Joseph's Secondary School | Distance | 6.3km | Pupils | 928 |
School Name | Distance | Pupils | |||
|---|---|---|---|---|---|
| School Name | Swords Community College | Distance | 6.5km | Pupils | 930 |
| School Name | St. Finian's Community College | Distance | 6.5km | Pupils | 661 |
| School Name | Fingal Community College | Distance | 6.8km | Pupils | 866 |
| School Name | Coláiste Choilm | Distance | 7.8km | Pupils | 425 |
| School Name | Malahide & Portmarnock Secondary School | Distance | 7.9km | Pupils | 607 |
| School Name | Skerries Community College | Distance | 8.2km | Pupils | 1029 |
| School Name | Loreto College Swords | Distance | 8.2km | Pupils | 632 |
Type | Distance | Stop | Route | Destination | Provider | ||||||
|---|---|---|---|---|---|---|---|---|---|---|---|
| Type | Bus | Distance | 410m | Stop | Corduff | Route | 101 | Destination | Drogheda | Provider | Bus Éireann |
| Type | Bus | Distance | 410m | Stop | Corduff | Route | Gd01 | Destination | Monaghan Shopping Centre | Provider | Mcconnon Travel |
| Type | Bus | Distance | 640m | Stop | Corduff | Route | 101 | Destination | Drop Off | Provider | Bus Éireann |
Type | Distance | Stop | Route | Destination | Provider | ||||||
|---|---|---|---|---|---|---|---|---|---|---|---|
| Type | Bus | Distance | 640m | Stop | Corduff | Route | 101 | Destination | Dublin | Provider | Bus Éireann |
| Type | Bus | Distance | 740m | Stop | Regles | Route | 101 | Destination | Dublin | Provider | Bus Éireann |
| Type | Bus | Distance | 740m | Stop | Regles | Route | 101 | Destination | Drop Off | Provider | Bus Éireann |
| Type | Bus | Distance | 860m | Stop | Regles | Route | 101 | Destination | Drogheda | Provider | Bus Éireann |
| Type | Bus | Distance | 900m | Stop | Lusk Road | Route | 33n | Destination | Mourne View | Provider | Nitelink, Dublin Bus |
| Type | Bus | Distance | 900m | Stop | Lusk Road | Route | 33e | Destination | Skerries | Provider | Dublin Bus |
| Type | Bus | Distance | 900m | Stop | Lusk Road | Route | 33 | Destination | Skerries | Provider | Dublin Bus |
Your Mortgage and Insurance Tools
Check off the steps to purchase your new home
Use our Buying Checklist to guide you through the whole home-buying journey.
Budget calculator
Calculate how much you can borrow and what you'll need to save
Ad performance
- Ad levelAdvantageBRONZE
- Views23,702
Similar properties
€150,000
Land At Racecourse Commons, Lusk, Co. DublinSite€150,000
Site To Rear, C. 0.064Ha, St. Anthony's, Channel Road, Rush, Co. Dublin, K56KW68Site€150,000
C. 0.5 Acre Site, Schoolhouse Lane, Corduff, Lusk, Co. Dublin, K45VW73Site€265,000
Cottage On Skerries Road, Greatcommon, Lusk, Co. Dublin, K45T1022 Bed · 1 Bath · House
€295,000
47 Chapel Farm Road, Lusk, Co. Dublin, K45YT212 Bed · 3 Bath · End of Terrace€300,000
Land At Man O War, Courtlough, Lusk, Co. DubinSite€325,000
20 Abbeylands, Lusk, Co. Dublin, K45F6742 Bed · 1 Bath · Terrace€325,000
27 Chapel Farm Drive, Lusk, Lusk, Co. Dublin, K45DD523 Bed · 3 Bath · Terrace€350,000
21 Whitethorn Walk, Lusk Village, Lusk, Lusk, Co. Dublin, K45N5782 Bed · 2 Bath · Terrace€385,000
3 Forge Lane, Lusk Village, Lusk, Co. Dublin, K45VA483 Bed · 2 Bath · Terrace€400,000
6 Beaverstown Orchard, Donabate, Donabate, Co. Dublin, K36V2183 Bed · 1 Bath · Bungalow€400,000
2 Bedroom Ground Floor Apartment, Regles, 2 Bedroom Ground Floor Apartment, Regles, Ministers Road, Lusk, Co. Dublin2 Bed · 1 Bath · Apartment
Daft ID: 120196075