91 Raheny Rd, Raheny, Dublin 5
€650,000
- Selling Type:By Private Treaty
About this property
Description
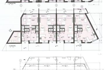
JB Kelly presents 91 Raheny Road, a unique residential development opportunity in a highly sought after location. LOCATION The property is situated just 350 metres from Raheny DART station, offering convenient commuter access. It lies within easy walking distance of the full range of amenities in Raheny Village, including local shops, cafés, the library and supermarkets. The village provides a genuine village-feel yet remains within close reach of the city centre. Raheny benefits from excellent green-space and coastal amenities, with access to St Anne's Park and Bull Island within minutes of the village. OPPORTUNITY Full planning permission has been granted for the demolition of the existing single-storey dwelling and the construction of a two-storey block comprising four terraced townhouses along the eastern boundary of the site. Permission includes four on-site car parking spaces plus eight covered bicycle spaces. Each unit will have its own front door access, private garden, first-floor balcony and a private roof terrace. This scheme presents strong appeal for downsizers seeking manageable space in a premium location, or for young couples looking for a high-quality home close to transport and amenities. DESIGN SCHEDULE House 1: Ground floor: 40sqm First floor: 40sqm Garden: 13sqm Balcony: 6sqm Roof terrace: 20sqm House 2: Ground floor: 39sqm First floor: 39sqm Garden: 18sqm Balcony: 7sqm Roof terrace: 20sqm House 3: Ground floor: 39sqm First floor: 39sqm Garden: 18sqm Balcony: 7sqm Roof terrace: 20sqm House 2: Ground floor: 41sqm First floor: 41sqm Garden: 11sqm Balcony: 5sqm Roof terrace: 17sqm FLOOR PLANS PLANNING REFERENCE Full details of the planning permission are available via the Dublin City Council website under planning reference 2803/21 for 91 Raheny Road, Dublin 5. https://webapps.dublincity.ie/PublicAccess_Live/SearchResult/RunThirdPartySearch?FileSystemId=PL&Folder1_Ref=2803/21# . SUMMARY 91 Raheny Road offers a prime site in a strong village setting, approved for a carefully designed set of townhouse homes. Location, amenity, planning status and market trade all align to make this an excellent proposition for developers, investors or owner-occupiers. Early inspection and engagement is advised. PRICE €650,000 VIEWING Strictly by appointment only with JB Kelly 01-8393400 BER Subject to developers specification
The local area
The local area
Sold properties in this area
Stay informed with market trends
Local schools and transport

Learn more about what this area has to offer.
School Name | Distance | Pupils | |||
|---|---|---|---|---|---|
| School Name | St Michael's House Special National School Foxfield | Distance | 250m | Pupils | 54 |
| School Name | Springdale National School | Distance | 360m | Pupils | 207 |
| School Name | St Malachy's Boys National School | Distance | 510m | Pupils | 123 |
School Name | Distance | Pupils | |||
|---|---|---|---|---|---|
| School Name | St Monica's Infant Girls' School | Distance | 620m | Pupils | 45 |
| School Name | St Eithnes Senior Girls National School | Distance | 640m | Pupils | 97 |
| School Name | Scoil Assaim Boys Seniors | Distance | 690m | Pupils | 313 |
| School Name | Scoil Aine Convent Senior | Distance | 710m | Pupils | 307 |
| School Name | Naíscoil Íde Raheny | Distance | 770m | Pupils | 307 |
| School Name | St Benedicts And St Marys National School | Distance | 860m | Pupils | 165 |
| School Name | Abacas Kilbarrack | Distance | 1.3km | Pupils | 54 |
School Name | Distance | Pupils | |||
|---|---|---|---|---|---|
| School Name | Ardscoil La Salle | Distance | 630m | Pupils | 296 |
| School Name | Manor House School | Distance | 700m | Pupils | 669 |
| School Name | Donahies Community School | Distance | 960m | Pupils | 494 |
School Name | Distance | Pupils | |||
|---|---|---|---|---|---|
| School Name | Mercy College Coolock | Distance | 1.5km | Pupils | 420 |
| School Name | St Paul's College | Distance | 1.7km | Pupils | 637 |
| School Name | St. Mary's Secondary School | Distance | 1.9km | Pupils | 319 |
| School Name | Chanel College | Distance | 1.9km | Pupils | 466 |
| School Name | Belmayne Educate Together Secondary School | Distance | 2.1km | Pupils | 530 |
| School Name | Gaelcholáiste Reachrann | Distance | 2.1km | Pupils | 494 |
| School Name | Grange Community College | Distance | 2.1km | Pupils | 526 |
Type | Distance | Stop | Route | Destination | Provider | ||||||
|---|---|---|---|---|---|---|---|---|---|---|---|
| Type | Bus | Distance | 50m | Stop | Raheny Road | Route | H1 | Destination | Baldoyle | Provider | Dublin Bus |
| Type | Bus | Distance | 50m | Stop | Raheny Road | Route | 29n | Destination | Red Arches Rd | Provider | Nitelink, Dublin Bus |
| Type | Bus | Distance | 70m | Stop | Belmont Park | Route | H1 | Destination | Abbey St Lower | Provider | Dublin Bus |
Type | Distance | Stop | Route | Destination | Provider | ||||||
|---|---|---|---|---|---|---|---|---|---|---|---|
| Type | Bus | Distance | 270m | Stop | Grange Park Road | Route | H1 | Destination | Baldoyle | Provider | Dublin Bus |
| Type | Bus | Distance | 270m | Stop | Grange Park Road | Route | 29n | Destination | Red Arches Rd | Provider | Nitelink, Dublin Bus |
| Type | Rail | Distance | 350m | Stop | Raheny | Route | Dart | Destination | Bray (daly) | Provider | Irish Rail |
| Type | Rail | Distance | 350m | Stop | Raheny | Route | Dart | Destination | Howth | Provider | Irish Rail |
| Type | Rail | Distance | 350m | Stop | Raheny | Route | Dart | Destination | Dublin Connolly | Provider | Irish Rail |
| Type | Rail | Distance | 350m | Stop | Raheny | Route | Dart | Destination | Greystones | Provider | Irish Rail |
| Type | Rail | Distance | 350m | Stop | Raheny | Route | Dart | Destination | Dun Laoghaire (mallin) | Provider | Irish Rail |
Your Mortgage and Insurance Tools
Check off the steps to purchase your new home
Use our Buying Checklist to guide you through the whole home-buying journey.
Budget calculator
Calculate how much you can borrow and what you'll need to save
Statistics
- 03/11/2025Entered
- 390Property Views
- 636
Potential views if upgraded to a Daft Advantage Ad
Learn How
Similar properties
€585,000
70 St. Assams Road West, Raheny, Dublin 5, D05FT893 Bed · 2 Bath · Terrace€595,000
34 Ashcroft, Dublin 5, Raheny, Dublin 5, D05R5854 Bed · 2 Bath · End of Terrace€595,000
58 Brookwood Road, Artane, Dublin 5, D05V2H53 Bed · 1 Bath · Terrace€595,000
7 Rosemount Avenue, Artane, Co. Dublin, D05VK533 Bed · 1 Bath · Terrace
€599,999
13A Grangemore Drive, Donaghmede, Dublin 13, Co. Dublin, D13H9TX5 Bed · 6 Bath · Semi-D€625,000
43 Malahide Road, Artane, Dublin 5, D05KR254 Bed · 2 Bath · Semi-D€645,000
Slievenamon, 446 Howth Road, Raheny, Dublin 5, D05TR663 Bed · 2 Bath · Semi-D€650,000
37 Clontarf Park, Clontarf, Dublin 3, D03T2833 Bed · 1 Bath · Terrace€650,000
51 Foxfield Park, Raheny, Dublin 5, D05V2V33 Bed · 2 Bath · Semi-D€650,000
41 Middle Third, Killester, Dublin 5, D05TD514 Bed · 2 Bath · Bungalow€650,000
81 Seapark Drive, Clontarf, Dublin 3, D03D3753 Bed · 2 Bath · End of Terrace
Daft ID: 123984165