Ballyhaunis - Airport Road, Charlestown, Co. Mayo
€115,000
- Selling Type:By Private Treaty
About this property
Highlights
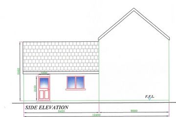
- Full Planning Permission
- Town Plot
- Plans for a 4-Bedroom Home
- 2 Storey Property
- Off Street Parking
Description
Town Site with Full Planning Permission This Site is located in the heart of Charlestown just off Market Square along the Ballyhaunis - Airport Road. Full planning permission for a 4 Bedroom detached 2 storey Home with a floor area of 160.7m2 (1727Sq Ft.) Two of the Bedrooms are en-suite. The Site has frontage of 30.4m and is approx. 18.3m deep. The Site offers off street parking and a private garden area. Planning Permission was granted in March 2023. This is a chance to build a lovely family home in the heart of Charlestown close to all local amenities and active community. Part of Folio: MY9404 Ref: B017 To view all our other properties visit connaughtproperty.ie
The local area
The local area
Sold properties in this area
Stay informed with market trends
Local schools and transport

Learn more about what this area has to offer.
School Name | Distance | Pupils | |||
|---|---|---|---|---|---|
| School Name | St.attracta's National School Charlestown | Distance | 440m | Pupils | 254 |
| School Name | Cloonlyon National School | Distance | 4.6km | Pupils | 36 |
| School Name | Curry National School | Distance | 4.8km | Pupils | 86 |
School Name | Distance | Pupils | |||
|---|---|---|---|---|---|
| School Name | Tavneena National School | Distance | 5.2km | Pupils | 12 |
| School Name | Carracastle Central National School | Distance | 6.0km | Pupils | 81 |
| School Name | Culmore National School | Distance | 6.5km | Pupils | 32 |
| School Name | Barnacogue National School | Distance | 6.9km | Pupils | 21 |
| School Name | Our Lady's National School | Distance | 8.8km | Pupils | 48 |
| School Name | Moylough National School | Distance | 9.2km | Pupils | 102 |
| School Name | Tavrane Central National School | Distance | 9.6km | Pupils | 12 |
School Name | Distance | Pupils | |||
|---|---|---|---|---|---|
| School Name | St Joseph's Community College | Distance | 600m | Pupils | 201 |
| School Name | St Attracta's Community School | Distance | 10.2km | Pupils | 710 |
| School Name | Scoil Muire Agus Padraig | Distance | 10.7km | Pupils | 410 |
School Name | Distance | Pupils | |||
|---|---|---|---|---|---|
| School Name | St Nathy's College | Distance | 15.5km | Pupils | 658 |
| School Name | St Louis Community School | Distance | 18.7km | Pupils | 690 |
| School Name | St Joseph's Secondary School | Distance | 20.9km | Pupils | 464 |
| School Name | Ballyhaunis Community School, Knock Road, Ballyhaunis, Mayo | Distance | 22.0km | Pupils | 750 |
| School Name | Corran College | Distance | 23.1km | Pupils | 134 |
| School Name | Coláiste Muire | Distance | 23.4km | Pupils | 331 |
| School Name | Coláiste Cholmáin | Distance | 28.1km | Pupils | 378 |
Type | Distance | Stop | Route | Destination | Provider | ||||||
|---|---|---|---|---|---|---|---|---|---|---|---|
| Type | Bus | Distance | 80m | Stop | Charlestown | Route | 64 | Destination | Newcastle | Provider | Bus Éireann |
| Type | Bus | Distance | 80m | Stop | Charlestown | Route | 451 | Destination | Longford | Provider | Bus Éireann |
| Type | Bus | Distance | 80m | Stop | Charlestown | Route | 64 | Destination | Sligo | Provider | Bus Éireann |
Type | Distance | Stop | Route | Destination | Provider | ||||||
|---|---|---|---|---|---|---|---|---|---|---|---|
| Type | Bus | Distance | 80m | Stop | Charlestown | Route | 440 | Destination | Westport | Provider | Bus Éireann |
| Type | Bus | Distance | 190m | Stop | Charlestown | Route | 964 | Destination | Croithlí | Provider | Bus Feda Teoranta |
| Type | Bus | Distance | 5.5km | Stop | Ireland West Airport | Route | 440 | Destination | Athlone | Provider | Bus Éireann |
| Type | Bus | Distance | 5.6km | Stop | Cloonfinish | Route | 451 | Destination | Ballina | Provider | Bus Éireann |
| Type | Bus | Distance | 5.6km | Stop | Ireland West Airport | Route | 64 | Destination | Derry | Provider | Bus Éireann |
| Type | Bus | Distance | 5.6km | Stop | Ireland West Airport | Route | 440 | Destination | Knock Airport | Provider | Bus Éireann |
| Type | Bus | Distance | 5.6km | Stop | Ireland West Airport | Route | 64 | Destination | Newcastle | Provider | Bus Éireann |
Your Mortgage and Insurance Tools
Check off the steps to purchase your new home
Use our Buying Checklist to guide you through the whole home-buying journey.
Budget calculator
Calculate how much you can borrow and what you'll need to save
Ad performance
- Date listed06/01/2026
- Views749
- Potential views if upgraded to an Advantage Ad1,221
Similar properties
€109,000
Main Street, Charlestown, Co. Mayo, F12C8N84 Bed · 2 Bath · Townhouse€109,000
Main St, Charlestown, Mayo, Charlestown, Co. Mayo, F12C8N84 Bed · 2 Bath · Townhouse€110,000
Drumshinnagh, Cuilmore, Swinford, Co. Mayo, F12T8611 Bed · 1 Bath · Detached€110,000
Cuilmore, Swinford, Co Mayo, F12T8611 Bed · 1 Bath · Bungalow
€145,000
Market Square, Charlestown, Co. Mayo, F12X4F810 Bed · 5 Bath · Semi-D€149,000
Ardkill, Ballaghaderreen, Co. Roscommon, F45PH333 Bed · 1 Bath · Detached€149,000
Ardcul, Ballaghaderreen, Roscommon, Ballaghaderreen, Co. Roscommon, F45PH333 Bed · 1 Bath · Detached€150,000
Cloonaweema, Charlestown, Co. Mayo, F12XF302 Bed · 1 Bath · Bungalow€180,000
Bellaghy, Bellaghy, Co. Sligo3 Bed · 1 Bath · Semi-D€185,000
Cois Abhainn, Bellaghy, Co. SligoSite€200,000
14 Pine Grove, Charlestown, Co. Mayo, F12N2842 Bed · 1 Bath · Semi-D€220,000
Market Square, Charlestown, Co. Mayo, F12EH703 Bed · 2 Bath · Townhouse
Daft ID: 16465062
