BALLYLOSKEY UPPER, CARNDONAGH, Co. Donegal, Carndonagh, Co. Donegal
€49,500
- Selling Type:By Private Treaty
About this property
Highlights
- elevatd site at edge of town
- 0.9 acres sloping site
- planning lapsed
- overgrown at present
Description
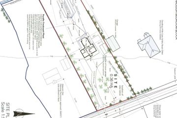
This sloping 0.9 acre plot at Ballyloskey outside Carndonagh has distant elevated views of the Trawbreaga Bay, the surrounding hills and countryside. The site (which is overgrown at present) had full planning permission now expired for a 1800 sq ft storey and half house (04/4789) and in this central location at the heart of Inishowen. Accommodation Note: Please note we have not tested any apparatus, fixtures, fittings, or services. Interested parties must undertake their own investigation into the working order of these items. All measurements are approximate and photographs provided for guidance only. Property Reference :MCCA139 DIRECTIONS: Drive out main Derry Road take first left, just after Millbrae Heights development drive 0.5 mile veering right at first fork, drive 0.5 miles site on right hand side just past existing two storey house
The local area
The local area
Sold properties in this area
Stay informed with market trends
Local schools and transport

Learn more about what this area has to offer.
School Name | Distance | Pupils | |||
|---|---|---|---|---|---|
| School Name | Glentogher National School | Distance | 1.5km | Pupils | 13 |
| School Name | St. Patrick's Girls' National School | Distance | 1.6km | Pupils | 136 |
| School Name | Craigtown National School | Distance | 1.7km | Pupils | 169 |
School Name | Distance | Pupils | |||
|---|---|---|---|---|---|
| School Name | Donagh National School | Distance | 1.8km | Pupils | 32 |
| School Name | Carndonagh Boys National School | Distance | 2.0km | Pupils | 149 |
| School Name | Glenmakee National School | Distance | 5.5km | Pupils | 93 |
| School Name | Malin National School | Distance | 7.3km | Pupils | 120 |
| School Name | St Boden's National School | Distance | 8.0km | Pupils | 101 |
| School Name | Rashenny National School | Distance | 8.0km | Pupils | 129 |
| School Name | Cloontagh National School | Distance | 8.5km | Pupils | 98 |
School Name | Distance | Pupils | |||
|---|---|---|---|---|---|
| School Name | Carndonagh Community School | Distance | 2.1km | Pupils | 1142 |
| School Name | Moville Community College | Distance | 13.8km | Pupils | 612 |
| School Name | Coláiste Chineál Eoghain | Distance | 16.1km | Pupils | 17 |
School Name | Distance | Pupils | |||
|---|---|---|---|---|---|
| School Name | Crana College | Distance | 16.9km | Pupils | 604 |
| School Name | Scoil Mhuire Secondary School | Distance | 17.2km | Pupils | 875 |
| School Name | Mulroy College | Distance | 32.6km | Pupils | 628 |
| School Name | Loreto Community School | Distance | 33.1km | Pupils | 807 |
| School Name | Errigal College | Distance | 42.8km | Pupils | 547 |
| School Name | Coláiste Ailigh | Distance | 43.5km | Pupils | 321 |
| School Name | Loreto Secondary School, Letterkenny | Distance | 44.2km | Pupils | 944 |
Type | Distance | Stop | Route | Destination | Provider | ||||||
|---|---|---|---|---|---|---|---|---|---|---|---|
| Type | Bus | Distance | 2.1km | Stop | Carndonagh | Route | 951 | Destination | Letterkenny Bus Station | Provider | Mcgonagle Bus And Coach Hire |
| Type | Bus | Distance | 2.1km | Stop | Carndonagh | Route | 933a | Destination | Parnell Square East | Provider | Mc Ginley Coach Travel |
| Type | Bus | Distance | 2.1km | Stop | Carndonagh | Route | 959 | Destination | Letterkenny | Provider | Tfi Local Link Donegal Sligo Leitrim |
Type | Distance | Stop | Route | Destination | Provider | ||||||
|---|---|---|---|---|---|---|---|---|---|---|---|
| Type | Bus | Distance | 2.1km | Stop | Carndonagh | Route | 959 | Destination | Buncrana | Provider | Tfi Local Link Donegal Sligo Leitrim |
| Type | Bus | Distance | 2.1km | Stop | Carndonagh | Route | 952 | Destination | Derry Patrick Street | Provider | Tfi Local Link Donegal Sligo Leitrim |
| Type | Bus | Distance | 2.1km | Stop | Carndonagh | Route | 954 | Destination | Carndonagh | Provider | Tfi Local Link Donegal Sligo Leitrim |
| Type | Bus | Distance | 2.1km | Stop | Carndonagh | Route | 952 | Destination | Culdaff | Provider | Tfi Local Link Donegal Sligo Leitrim |
| Type | Bus | Distance | 2.1km | Stop | Carndonagh | Route | 959 | Destination | Carndonagh | Provider | Tfi Local Link Donegal Sligo Leitrim |
| Type | Bus | Distance | 2.1km | Stop | Carndonagh | Route | 951 | Destination | Carndonagh | Provider | Mcgonagle Bus And Coach Hire |
| Type | Bus | Distance | 2.1km | Stop | Carndonagh | Route | 959 | Destination | Greencastle | Provider | Tfi Local Link Donegal Sligo Leitrim |
Your Mortgage and Insurance Tools
Check off the steps to purchase your new home
Use our Buying Checklist to guide you through the whole home-buying journey.
Budget calculator
Calculate how much you can borrow and what you'll need to save
A closer look
Statistics
- 21/10/2025Entered
- 843Property Views
- 1,374
Potential views if upgraded to a Daft Advantage Ad
Learn How
Similar properties
€45,000
Corvish, Carndonagh, Co. DonegalSite€45,000
CORVISH, CARNDONAGH, Co. DonegalSite€80,000
GLEBE, CARNDONAGH, Co. DonegalSite€90,000
GORTNACOOL, CARNDONAGH, Co. DonegalSite
€110,000
Investment yield 15, Commercial Building (plus Potential Overhead Apt), The Diamond, Carndonagh, Co. Donegal, F93ET951 Bed · 1 Bath · Townhouse€110,000
CARRICKAFODEN, CARNDONAGH, Co. DonegalSite€130,000
BALLYLOSKEY, CARNDONAGH, Co. Donegal, Carndonagh, Co. DonegalSite€160,000
Gortyarn, Carndonagh, Gleneely, Co. Donegal, F93PW843 Bed · 2 Bath · Bungalow€195,000
GLASSAGH, CARNDONAGH, Co. DonegalSite€220,000
BALLYLOSKEY, CARNDONAGH, Co. DonegalSite€250,000
Craigtown, Carndonagh, Co. Donegal, F93K0653 Bed · 1 Bath · Bungalow€270,000
MILLTOWN, CARNDONAGH, Co. DonegalSite
Daft ID: 122044888
