Beagh Beg, Caherlistrane, Caherlistrane, Co. Galway, H91TDK2
€43,000
- Selling Type:By Private Treaty
About this property
Highlights
- FULL PLANNING PERMISSION FOR A 248m² detached dwelling with a garage
- Very disirable neighbourhood
- Close to all civic amenities
Description
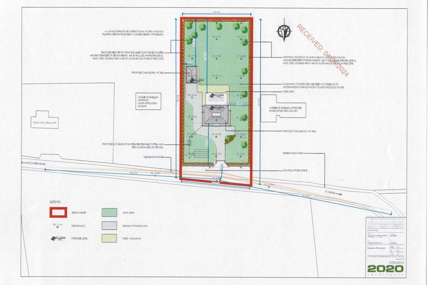
Approx 0.64 /acres identified as site B near to eir code H91 TDK2. FULL PLANNING PERMISSION GRANTED on 27/05/2024 Planning reference number 23/61124 For a two storey 248m² dwelling with a detached garage. See plans attached including site layout. 1 minute to Caherlistrane National school, 1.2km to the village of Caherlistrane, 14.4km via R333 to Tuam, and 28.9km via N84 to Galway city. Caherlistrane is a village and townland in north Co Galway close to the Mayo border. The 527 bus provides access to both Corofin and Tuam with onward links possible here. Local amenities include a GAA club, community hall, primary school, shop, and church. Caherlistrane's most prominent landmark, Knock ma, is the highest hill in the plains of North Galway and South Mayo.
The local area
The local area
Sold properties in this area
Stay informed with market trends
Local schools and transport

Learn more about what this area has to offer.
School Name | Distance | Pupils | |||
|---|---|---|---|---|---|
| School Name | Donaghpatrick National School | Distance | 760m | Pupils | 95 |
| School Name | Scoil Naomh Pádraig | Distance | 4.0km | Pupils | 64 |
| School Name | Shrule National School | Distance | 4.9km | Pupils | 102 |
School Name | Distance | Pupils | |||
|---|---|---|---|---|---|
| School Name | Belclare National School | Distance | 5.9km | Pupils | 208 |
| School Name | Sylane National School | Distance | 6.2km | Pupils | 87 |
| School Name | Castlehackett National School | Distance | 6.6km | Pupils | 52 |
| School Name | Ballycushion National School | Distance | 6.7km | Pupils | 11 |
| School Name | Headford Primary School | Distance | 6.8km | Pupils | 138 |
| School Name | Kilcoona National School | Distance | 6.9km | Pupils | 217 |
| School Name | Cloughanower National School | Distance | 7.9km | Pupils | 72 |
School Name | Distance | Pupils | |||
|---|---|---|---|---|---|
| School Name | Presentation College | Distance | 6.8km | Pupils | 845 |
| School Name | High Cross College | Distance | 11.7km | Pupils | 827 |
| School Name | Presentation College | Distance | 11.8km | Pupils | 499 |
School Name | Distance | Pupils | |||
|---|---|---|---|---|---|
| School Name | St. Brigid's School | Distance | 11.8km | Pupils | 391 |
| School Name | Archbishop Mchale College | Distance | 12.0km | Pupils | 471 |
| School Name | St. Jarlath's College | Distance | 12.0km | Pupils | 706 |
| School Name | Ballinrobe Community School | Distance | 18.1km | Pupils | 840 |
| School Name | Coláiste Bhaile Chláir | Distance | 19.7km | Pupils | 1315 |
| School Name | St Pauls | Distance | 21.6km | Pupils | 479 |
| School Name | Dunmore Community School | Distance | 22.7km | Pupils | 353 |
Type | Distance | Stop | Route | Destination | Provider | ||||||
|---|---|---|---|---|---|---|---|---|---|---|---|
| Type | Bus | Distance | 1.4km | Stop | Caherlistrane | Route | 438 | Destination | Tuam | Provider | Tfi Local Link Galway |
| Type | Bus | Distance | 1.4km | Stop | Caherlistrane | Route | 438 | Destination | Galway Cathedral | Provider | Tfi Local Link Galway |
| Type | Bus | Distance | 3.8km | Stop | Joyce's Park | Route | 435 | Destination | Eyre Square | Provider | Burkesbus |
Type | Distance | Stop | Route | Destination | Provider | ||||||
|---|---|---|---|---|---|---|---|---|---|---|---|
| Type | Bus | Distance | 3.8km | Stop | Joyce's Park | Route | 435 | Destination | Nuig Main Gate, Stop 523031 | Provider | Burkesbus |
| Type | Bus | Distance | 3.8km | Stop | Joyce's Park | Route | 435 | Destination | Cornmarket | Provider | Burkesbus |
| Type | Bus | Distance | 4.4km | Stop | Shrule | Route | 435 | Destination | Nuig Main Gate, Stop 523031 | Provider | Burkesbus |
| Type | Bus | Distance | 4.4km | Stop | Shrule | Route | 435 | Destination | Eyre Square | Provider | Burkesbus |
| Type | Bus | Distance | 4.4km | Stop | Shrule | Route | 456 | Destination | Galway | Provider | Bus Éireann |
| Type | Bus | Distance | 4.4km | Stop | Shrule | Route | 435 | Destination | Cornmarket | Provider | Burkesbus |
| Type | Bus | Distance | 4.5km | Stop | Shrule | Route | 456 | Destination | Castlebar | Provider | Bus Éireann |
Your Mortgage and Insurance Tools
Check off the steps to purchase your new home
Use our Buying Checklist to guide you through the whole home-buying journey.
Budget calculator
Calculate how much you can borrow and what you'll need to save
Ad performance
- 23/04/2025Entered
- 3,742Property Views
- 6,099
Potential views if upgraded to a Daft Advantage Ad
Learn How
Similar properties
€45,000
Manusflynn, Headford, Co. Galway, H54RY28Site€50,000
Manusflynn, Belclare, Headford, Co. Galway, H54RY28Site€60,000
Ballybaun, Headford, Co. GalwaySite€90,000
Emone, Belclare, Tuam, Co. Galway, H54KX473 Bed · 1 Bath · Detached
€90,000
Ballintleva, Belclare, Co. GalwaySite€150,000
Rosslodge, Headford, Co. Galway, H91H0F84 Bed · 1 Bath · Detached€160,000
Apartment 6, Main Street, Shrule, Co. Mayo, H91N7632 Bed · 1 Bath · Apartment€230,000
Dalgan, Shrule, Co. Mayo, H91X6YD3 Bed · 2 Bath · Detached€240,000
Aivling, Ballybaun, Caherlistrane, Co. Galway, H91NPK53 Bed · 1 Bath · Bungalow€275,000
Cloonascragh, Belclare, Caherlistrane, Co. Galway, H54RK384 Bed · 1 Bath · Detached€300,000
Five Acre Farm, Cloonaglasha, Tuam, Co. Galway, H54XC654 Bed · 1 Bath · Bungalow€360,000
Ballintleva, Belclare, Co. Galway, H54WV304 Bed · 2 Bath · Detached
Daft ID: 16106900