Derelict Property with OPP, Clogrennane, Ballinabranagh, Co. Carlow
€150,000
- Selling Type:By Private Treaty
About this property
Highlights
- c. 1.01 acre site
- Derelict building
- Outline planning permission for a bungalow and a garage
- Located overlooking Carlow town
- Located close to Ballinabrannagh & Killeshin
Description
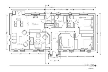
O'Farrell Property are delighted to present this derelict property on c. 1.01 acre site with outline planning permission for a 3 bedroom detached bungalow and a garage. Perched above Carlow town and with panoramic views across the Barrow Valley yet within close proximity to the amenities of Ballinabrannagh and Killeshin villages. Once built the bungalow will measure c. 140m2 and consist of hallway, open plan kitchen / living / dining room, utility, sitting room, 3 bedrooms, en-suite and main bathroom. There is a detached garage of c. 51m2. Planning Reference: 2460424 Directions: From Ballinabrannagh take the L7134 (up towards Killeshin) and follow this road for a few minutes. The site will be located on your right hand side. There's boards erected at the site.
The local area
The local area
Sold properties in this area
Stay informed with market trends
Local schools and transport

Learn more about what this area has to offer.
School Name | Distance | Pupils | |||
|---|---|---|---|---|---|
| School Name | Ballinabranna Mxd National School | Distance | 2.6km | Pupils | 181 |
| School Name | Ballinabranna Mxd National School | Distance | 2.6km | Pupils | 181 |
| School Name | Ardough National School | Distance | 3.6km | Pupils | 12 |
School Name | Distance | Pupils | |||
|---|---|---|---|---|---|
| School Name | Ardough National School | Distance | 3.6km | Pupils | 12 |
| School Name | Killeshin National School | Distance | 4.6km | Pupils | 387 |
| School Name | Killeshin National School | Distance | 4.6km | Pupils | 387 |
| School Name | Carlow Educate Together National School | Distance | 4.7km | Pupils | 406 |
| School Name | Carlow Educate Together National School | Distance | 4.7km | Pupils | 406 |
| School Name | Saplings Carlow Special School | Distance | 4.7km | Pupils | 30 |
| School Name | Saplings Carlow Special School | Distance | 4.7km | Pupils | 30 |
School Name | Distance | Pupils | |||
|---|---|---|---|---|---|
| School Name | Tyndall College | Distance | 4.7km | Pupils | 1002 |
| School Name | Tyndall College | Distance | 4.7km | Pupils | 1002 |
| School Name | St. Leo's College | Distance | 5.8km | Pupils | 885 |
School Name | Distance | Pupils | |||
|---|---|---|---|---|---|
| School Name | St. Leo's College | Distance | 5.8km | Pupils | 885 |
| School Name | Carlow Cbs | Distance | 6.1km | Pupils | 406 |
| School Name | Carlow Cbs | Distance | 6.1km | Pupils | 406 |
| School Name | Gaelcholáiste Cheatharlach | Distance | 6.6km | Pupils | 359 |
| School Name | Gaelcholáiste Cheatharlach | Distance | 6.6km | Pupils | 359 |
| School Name | Presentation College, Askea, Carlow | Distance | 6.7km | Pupils | 804 |
| School Name | Presentation College, Askea, Carlow | Distance | 6.7km | Pupils | 804 |
Type | Distance | Stop | Route | Destination | Provider | ||||||
|---|---|---|---|---|---|---|---|---|---|---|---|
| Type | Bus | Distance | 3.7km | Stop | Carlow Institute | Route | Gd02 | Destination | Naas Odeon Cinema | Provider | J.j Kavanagh & Sons |
| Type | Bus | Distance | 3.7km | Stop | Carlow Institute | Route | Gd02 | Destination | Naas | Provider | J.j Kavanagh & Sons |
| Type | Bus | Distance | 3.7km | Stop | Carlow Institute | Route | Gd02 | Destination | 3arena | Provider | J.j Kavanagh & Sons |
Type | Distance | Stop | Route | Destination | Provider | ||||||
|---|---|---|---|---|---|---|---|---|---|---|---|
| Type | Bus | Distance | 3.7km | Stop | Carlow Institute | Route | Gd02 | Destination | Naas Odeon Cinema | Provider | J.j Kavanagh & Sons |
| Type | Bus | Distance | 3.7km | Stop | Carlow Institute | Route | Gd02 | Destination | Naas | Provider | J.j Kavanagh & Sons |
| Type | Bus | Distance | 3.7km | Stop | Carlow Institute | Route | Gd02 | Destination | 3arena | Provider | J.j Kavanagh & Sons |
| Type | Bus | Distance | 3.7km | Stop | Carlow Institute | Route | Cw1 | Destination | Msd | Provider | Bus Éireann |
| Type | Bus | Distance | 3.7km | Stop | Carlow Institute | Route | 887 | Destination | New Ross | Provider | Tfi Local Link Carlow Kilkenny Wicklow |
| Type | Bus | Distance | 3.7km | Stop | Carlow Institute | Route | 376 | Destination | Tyndall College | Provider | Wexford Bus |
| Type | Bus | Distance | 3.7km | Stop | Carlow Institute | Route | 874 | Destination | Hanover Bus Park | Provider | J.j Kavanagh & Sons |
Your Mortgage and Insurance Tools
Check off the steps to purchase your new home
Use our Buying Checklist to guide you through the whole home-buying journey.
Budget calculator
Calculate how much you can borrow and what you'll need to save
Ad performance
- Date listed24/10/2025
- Views7,855
- Potential views if upgraded to an Advantage Ad12,804
Daft ID: 123913450
