+1
Drummin South, Crossboyne, Claremorris, Co. Mayo
€60,000
0.69 acSite
- Selling Type:By Private Treaty
About this property
Highlights
- Excellent quality building ground
- Superb location
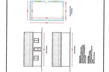
- Being sold with full planning permission for a two storey four bedroom detached residence of circa 2,400 sq.ft
- Located close to Crossboyne Village, Claremorris & Ballindine
- Superb circa 0.69 acre site in a good location
Description
Opportunity to acquire a c.0.69 acre site located at Drummin South, Crossboyne, Claremorris, Co. Mayo. The site is located close to the village of Crossboyne and has full planning permission for a two storey four bedroom detached residence extending to c.2,400 sq.ft Full plans and particulars from Sole Selling Agents
The local area
The local area
Sold properties in this area
Stay informed with market trends
Local schools and transport

Learn more about what this area has to offer.
School Name | Distance | Pupils | |||
|---|---|---|---|---|---|
| School Name | Ballindine National School | Distance | 3.0km | Pupils | 137 |
| School Name | Meelickmore National School | Distance | 4.3km | Pupils | 86 |
| School Name | Claremorris National School | Distance | 5.4km | Pupils | 358 |
School Name | Distance | Pupils | |||
|---|---|---|---|---|---|
| School Name | Lehinch National School | Distance | 5.5km | Pupils | 7 |
| School Name | S N Teach Caoin | Distance | 5.6km | Pupils | 41 |
| School Name | Gortskehy National School | Distance | 5.9km | Pupils | 75 |
| School Name | Irishtown National School | Distance | 7.6km | Pupils | 64 |
| School Name | Roundfort National School | Distance | 8.4km | Pupils | 78 |
| School Name | Uileog De Burca | Distance | 8.5km | Pupils | 111 |
| School Name | Belmont National School | Distance | 8.6km | Pupils | 36 |
School Name | Distance | Pupils | |||
|---|---|---|---|---|---|
| School Name | Mount St Michael | Distance | 5.7km | Pupils | 404 |
| School Name | Coláiste Cholmáin | Distance | 6.2km | Pupils | 378 |
| School Name | Ballinrobe Community School | Distance | 15.4km | Pupils | 840 |
School Name | Distance | Pupils | |||
|---|---|---|---|---|---|
| School Name | Balla Secondary School | Distance | 16.6km | Pupils | 475 |
| School Name | Ballyhaunis Community School | Distance | 17.3km | Pupils | 750 |
| School Name | St Louis Community School | Distance | 18.6km | Pupils | 690 |
| School Name | Dunmore Community School | Distance | 18.7km | Pupils | 353 |
| School Name | High Cross College | Distance | 20.7km | Pupils | 827 |
| School Name | St. Jarlath's College | Distance | 21.1km | Pupils | 706 |
| School Name | Presentation College | Distance | 21.2km | Pupils | 499 |
Type | Distance | Stop | Route | Destination | Provider | ||||||
|---|---|---|---|---|---|---|---|---|---|---|---|
| Type | Bus | Distance | 2.7km | Stop | Castlemagarret | Route | 64 | Destination | Sligo | Provider | Bus Éireann |
| Type | Bus | Distance | 2.7km | Stop | Castlemagarret | Route | 64 | Destination | Derry | Provider | Bus Éireann |
| Type | Bus | Distance | 2.7km | Stop | Castlemagarret | Route | 64 | Destination | Galway | Provider | Bus Éireann |
Type | Distance | Stop | Route | Destination | Provider | ||||||
|---|---|---|---|---|---|---|---|---|---|---|---|
| Type | Bus | Distance | 3.1km | Stop | Ballindine | Route | 430 | Destination | Circular Road | Provider | Citylink |
| Type | Bus | Distance | 3.1km | Stop | Ballindine | Route | 64 | Destination | Sligo | Provider | Bus Éireann |
| Type | Bus | Distance | 3.1km | Stop | Ballindine | Route | 52 | Destination | Ballina | Provider | Bus Éireann |
| Type | Bus | Distance | 3.1km | Stop | Ballindine | Route | 64 | Destination | Derry | Provider | Bus Éireann |
| Type | Bus | Distance | 3.1km | Stop | Ballindine | Route | 430 | Destination | Galway Cathedral | Provider | Citylink |
| Type | Bus | Distance | 3.1km | Stop | Ballindine | Route | 52 | Destination | Galway | Provider | Bus Éireann |
| Type | Bus | Distance | 3.1km | Stop | Ballindine | Route | 64 | Destination | Galway | Provider | Bus Éireann |
Your Mortgage and Insurance Tools
Check off the steps to purchase your new home
Use our Buying Checklist to guide you through the whole home-buying journey.
Budget calculator
Calculate how much you can borrow and what you'll need to save
Ad performance
- 13,012Property Views
- 21,210
Potential views if upgraded to a Daft Advantage Ad
Learn How
Similar properties
€55,000
Ballinphuill, Claremorris, Co. MayoSite€60,000
Mayfield, Claremorris, Co. MayoSite€60,000
Mayfield, Claremorris, Co. MayoSite€60,000
Castlegar, Claremorris, Co. MayoSite
€65,000
Ballinphuill, Claremorris, Co. MayoSite€70,000
Ballyhowley, Knock, Co. MayoSite€100,000
Taugheen, Claremorris, Co. MayoSite€125,000
James Street, Claremorris, Claremorris, Co. Mayo, F12F9T73 Bed · 1 Bath · Terrace€135,000
Mount st, Claremorris, Co. Mayo, F12H7A4Site€160,000
Mount Street, Claremorris, Claremorris, Co. Mayo, F12E7R0Site€165,000
Apartment 14, Chapel Court, Chapel Lane, Claremorris, Co. Mayo, F12XN841 Bed · 1 Bath · Apartment€170,000
Knockagraffy, Tagheen, Claremorris, Co. Mayo, F12NW083 Bed · 1 Bath · Detached
Daft ID: 11317360
