Lower Kilbree, Westport, Co. Mayo
€150,000
- Selling Type:By Private Treaty
About this property
Highlights
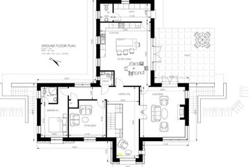
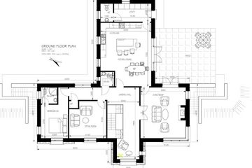
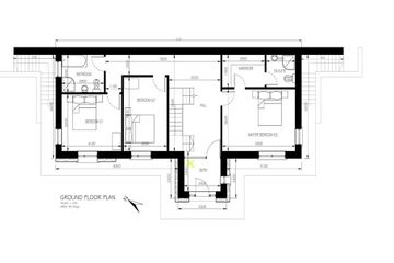
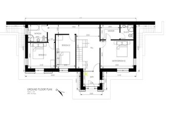
- 2 x Residential Sites for sale with Full Planning Permission
- Spectacular views of surrounding countryside and Croagh Patrick
- Conveniently located within c.4.8km of Westport & c.11km to Castlebar
- 2 x Active Planning for four-bedroom house of c.235.1sqm (c.2,529 sq.ft)
- Buyer must comply with local, economic link to the area
Description
A rare and exceptional opportunity to acquire two residential sites (can be sold individually or together), each with full planning permission granted for a substantial and elegantly designed four-bedroom detached residence, superbly positioned just five minute’s drive from the vibrant heritage town of Westport. Set on an elevated c.0.647ha (c.1.58-acre site), these future homes have been designed to make the most of their remarkable surroundings capturing sweeping countryside vistas and magnificent views towards Croagh Patrick. The setting combines rural tranquillity with unbeatable convenience, offering the ideal blend of privacy, scenery, and accessibility. Each planned home offers an impressive c.235.1 sq m (c.2,531 sq ft) of thoughtfully contemporary designed living space, with an emphasis on comfort, flow, and modern family living. Accommodation includes: • Welcoming entrance hall • Spacious kitchen/dining room • Utility room • Formal living room • Casual/family living room • Four double bedrooms (two en-suite; master with walk-in wardrobe) • Main family bathroom • Additional WCs Every detail of the design makes the most of light, space, and the elevated outlook. Location: Lower Kilbree is ideally located approximately 4.8km from Westport town, offering exceptional convenience to: Primary & secondary schools A wide range of shops & supermarkets Sports clubs & leisure facilities Restaurants, cafés & traditional pubs Westport Greenway, beaches & outdoor pursuits Allergan/AbbVie facilities nearby Whether for family life, remote working, or a peaceful retreat, this location delivers an enviable balance of calm countryside living with quick access to all amenities. Lower Kilbree is ideally positioned approximately 4.8km from Westport town, with its excellent schools, shops, cafés, restaurants, sports clubs and leisure amenities. This is an outstanding location for families, remote workers, and anyone seeking a strong community atmosphere. Equally appealing is the convenience to Castlebar, located just a short drive away via the Westport–Castlebar Road. Castlebar is the administrative and commercial heart of Co. Mayo and home to several major employers, including: Mayo University Hospital Baxter Healthcare Hollister Mayo College of Further Education & Training Numerous public service employers, retail centres, and educational institutions For professionals planning to work in these sectors, especially healthcare, pharmaceuticals, manufacturing, education, and public services, this location offers the ideal balance of rural living with quick access to large employment hubs. Planning permission may be transferred to a new owner; however, Mayo County Council’s residency/local need requirements apply. Interested parties are strongly advised to satisfy themselves in relation to this clause. These residences are ideally suited to buyers who can demonstrate a social or economic link to the area, such as medical professionals, Gardaí, teachers, or others planning to live, work, and actively contribute to the local community. With full planning permission already in place, spectacular views, and an exceptional location at the gateway to Westport, these sites offer the chance to create a stunning long-term home in one of Mayo’s most sought-after areas.
The local area
The local area
Sold properties in this area
Stay informed with market trends
Local schools and transport

Learn more about what this area has to offer.
School Name | Distance | Pupils | |||
|---|---|---|---|---|---|
| School Name | Coggale National School | Distance | 2.3km | Pupils | 33 |
| School Name | St Paul's National School | Distance | 2.9km | Pupils | 87 |
| School Name | Knockrooskey National School | Distance | 3.3km | Pupils | 207 |
School Name | Distance | Pupils | |||
|---|---|---|---|---|---|
| School Name | Gaelscoil Na Cruaiche | Distance | 5.1km | Pupils | 197 |
| School Name | Scoil Phádraig | Distance | 5.9km | Pupils | 331 |
| School Name | Fahy National School | Distance | 6.1km | Pupils | 129 |
| School Name | Holy Trinity National School | Distance | 6.2km | Pupils | 46 |
| School Name | Derrywash National School | Distance | 6.2km | Pupils | 113 |
| School Name | Cornanool National School | Distance | 6.6km | Pupils | 65 |
| School Name | Westport Educate Together National School | Distance | 6.8km | Pupils | 48 |
School Name | Distance | Pupils | |||
|---|---|---|---|---|---|
| School Name | Rice College | Distance | 5.7km | Pupils | 557 |
| School Name | Sacred Heart School | Distance | 5.9km | Pupils | 605 |
| School Name | St. Geralds College | Distance | 9.4km | Pupils | 665 |
School Name | Distance | Pupils | |||
|---|---|---|---|---|---|
| School Name | St Joseph's Secondary School | Distance | 10.3km | Pupils | 539 |
| School Name | Davitt College | Distance | 10.4km | Pupils | 880 |
| School Name | Balla Secondary School | Distance | 19.1km | Pupils | 475 |
| School Name | Ballinrobe Community School | Distance | 25.2km | Pupils | 840 |
| School Name | Sancta Maria College | Distance | 25.3km | Pupils | 572 |
| School Name | St Joseph's Secondary School | Distance | 28.2km | Pupils | 464 |
| School Name | St Louis Community School | Distance | 28.3km | Pupils | 690 |
Type | Distance | Stop | Route | Destination | Provider | ||||||
|---|---|---|---|---|---|---|---|---|---|---|---|
| Type | Bus | Distance | 760m | Stop | Keeloges | Route | 440 | Destination | Castlebar | Provider | Bus Éireann |
| Type | Bus | Distance | 760m | Stop | Keeloges | Route | 440 | Destination | Athlone | Provider | Bus Éireann |
| Type | Bus | Distance | 760m | Stop | Keeloges | Route | 440 | Destination | Knock Airport | Provider | Bus Éireann |
Type | Distance | Stop | Route | Destination | Provider | ||||||
|---|---|---|---|---|---|---|---|---|---|---|---|
| Type | Bus | Distance | 760m | Stop | Keeloges | Route | 456 | Destination | Castlebar | Provider | Bus Éireann |
| Type | Bus | Distance | 780m | Stop | Keeloges | Route | 456 | Destination | Galway | Provider | Bus Éireann |
| Type | Bus | Distance | 780m | Stop | Keeloges | Route | 440 | Destination | Westport | Provider | Bus Éireann |
| Type | Bus | Distance | 2.4km | Stop | Claggarnagh West | Route | 456 | Destination | Castlebar | Provider | Bus Éireann |
| Type | Bus | Distance | 2.4km | Stop | Claggarnagh West | Route | 440 | Destination | Knock Airport | Provider | Bus Éireann |
| Type | Bus | Distance | 2.4km | Stop | Claggarnagh West | Route | 440 | Destination | Athlone | Provider | Bus Éireann |
| Type | Bus | Distance | 2.4km | Stop | Claggarnagh West | Route | 440 | Destination | Castlebar | Provider | Bus Éireann |
Your Mortgage and Insurance Tools
Check off the steps to purchase your new home
Use our Buying Checklist to guide you through the whole home-buying journey.
Budget calculator
Calculate how much you can borrow and what you'll need to save
Ad performance
- Views2,672
- Potential views if upgraded to an Advantage Ad4,355
Similar properties
€169,000
Apartment 21, Lime Kiln Apartments, James Street, Westport, Co. Mayo, F28R6C11 Bed · 1 Bath · Apartment€235,000
Apt 2 Barracks Yard, James Street, Westport, Co Mayo, F28RR672 Bed · 1 Bath · Apartment€250,000
Apartment 11, Old Mill Apartments, James Street, Westport, Co. Mayo, F28KH292 Bed · 1 Bath · Apartment€250,000
7.09 Acres Of Land, Carrowbaun, Westport, Co MayoSite
€259,000
Quay Street, Westport, Co Mayo, F28FT963 Bed · Terrace€295,000
13 Quay Village, Westport, Westport Quay, Co. Mayo, F28E8Y12 Bed · 2 Bath · Duplex€320,000
No. 19 Ashwood Grove, Ballinrobe Road, Westport, Co. Mayo2 Bed · 2 Bath · Apartment€320,000
19 Ashwood Grove, Westport, Westport, Co. Mayo, F28R5W92 Bed · 2 Bath · Apartment€329,000
27 Carrowbeg Estate, Westport, Westport, Co. Mayo, F28KD293 Bed · 1 Bath · Semi-D€329,000
Fairview Cottage, Corratowick, Westport, Co Mayo, F28YW732 Bed · 2 Bath · Bungalow€329,000
Fairview Cottage, Corratowick, Westport, Co Mayo, F28YW732 Bed · 2 Bath · Bungalow€350,000
8 Mill Street, Westport, Co. Mayo, F28XW143 Bed · 3 Bath · Apartment
Daft ID: 16456087
