Main Street , Clonee, Dublin 15
€1,400,000
- Selling Type:By Private Treaty
About this property
Description
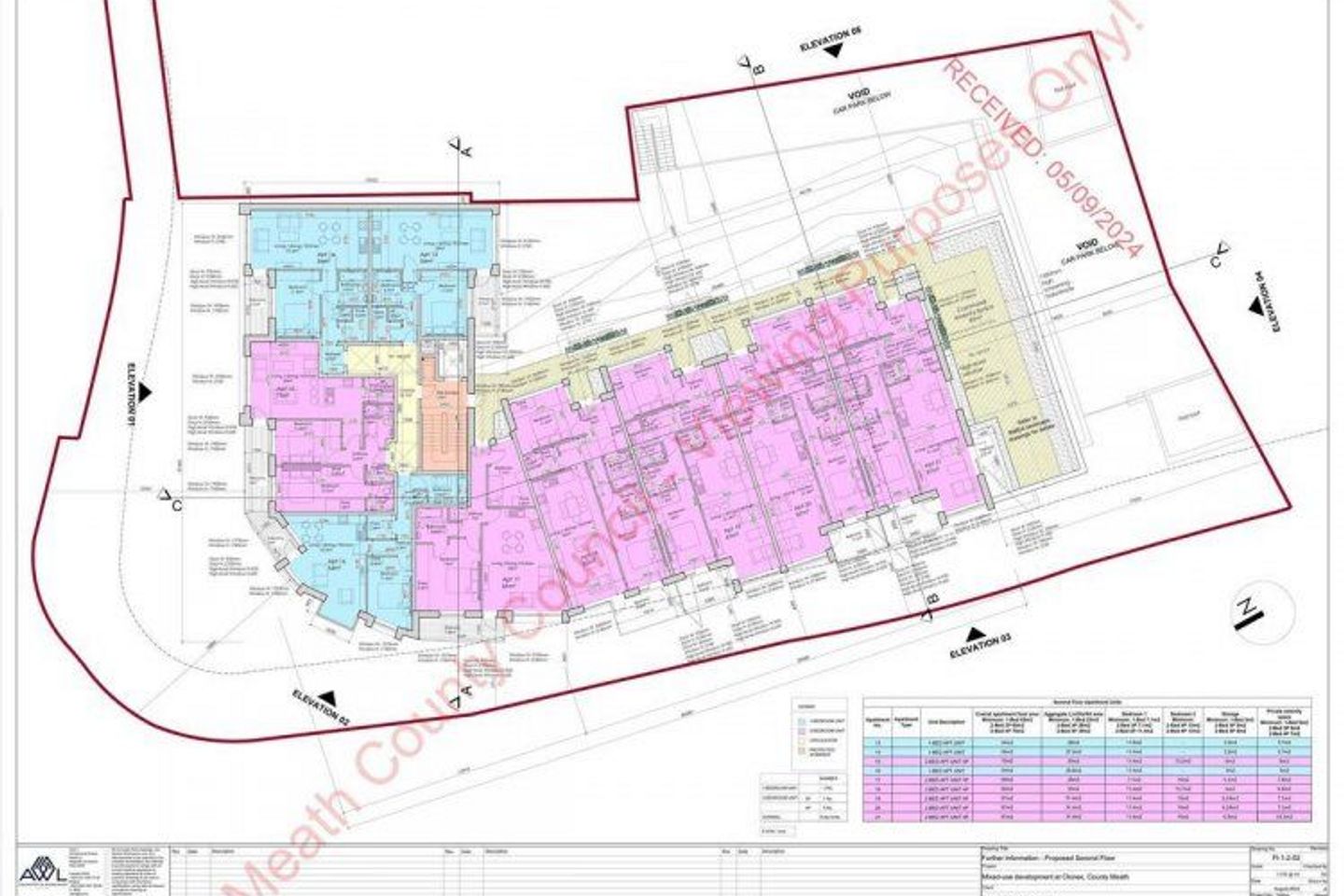
PJ Garvey Auctioneers / Estate Agent PJ Garvey Auctioneers are delighted to present this wonderful mixed use residential / commercial development opportunity to the Clonee property market. This is a most unique site with full planning permission granted for the following: Overall Floor Area: 0.7 acre SITE 0.7 ACRE / 0.283 HECTARE FULL PLANNING PERMISSION GRANTED FOR (37 Apartments, 3 Commercial Units) 19 x 2 BED APARTMENTS 17 x 1 BED APARTMENTS 1 STUDIO APARTMENT 37 PARKING SPACES 3 COMMERCIAL UNITS POSITION IN THE HEART OF CLONEE VILLAGE 19 x 2 Bed apartments 17 x 1 Bed apartments 1 x Studio apartment 37 x Parking spaces 3 x Commercial units (ranging in size from 58 Sq M - 113 Sq M) The strategic location of the property offers all the convenience of a Village Centre location together with a rural feel. Dunboyne Train Station is on the doorstep as are The M3 & M50 Motorways. Blanchardstown Shopping Centre & Castleknock Village are both within close proximity. The property also falls into an excellent catchment of both primary and secondary schools, parks and recreational facilities. All enquiries are to be directed to Patrick Garvey 01-6281600 / 0871360139
The local area
The local area
Sold properties in this area
Stay informed with market trends
Local schools and transport

Learn more about what this area has to offer.
School Name | Distance | Pupils | |||
|---|---|---|---|---|---|
| School Name | Saint Lukes National School | Distance | 690m | Pupils | 517 |
| School Name | Saint Lukes National School | Distance | 690m | Pupils | 517 |
| School Name | Powerstown Educate Together National School | Distance | 700m | Pupils | 331 |
School Name | Distance | Pupils | |||
|---|---|---|---|---|---|
| School Name | Powerstown Educate Together National School | Distance | 700m | Pupils | 331 |
| School Name | Gaelscoil An Chuilinn | Distance | 840m | Pupils | 281 |
| School Name | Gaelscoil An Chuilinn | Distance | 840m | Pupils | 281 |
| School Name | Ladyswell National School | Distance | 1.1km | Pupils | 434 |
| School Name | Ladyswell National School | Distance | 1.1km | Pupils | 434 |
| School Name | Sacred Heart Of Jesus National School Huntstown | Distance | 1.4km | Pupils | 661 |
| School Name | Sacred Heart Of Jesus National School Huntstown | Distance | 1.4km | Pupils | 661 |
School Name | Distance | Pupils | |||
|---|---|---|---|---|---|
| School Name | Le Chéile Secondary School | Distance | 300m | Pupils | 959 |
| School Name | Le Chéile Secondary School | Distance | 300m | Pupils | 959 |
| School Name | Blakestown Community School | Distance | 2.0km | Pupils | 521 |
School Name | Distance | Pupils | |||
|---|---|---|---|---|---|
| School Name | Blakestown Community School | Distance | 2.0km | Pupils | 521 |
| School Name | Rath Dara Community College | Distance | 2.1km | Pupils | 297 |
| School Name | Rath Dara Community College | Distance | 2.1km | Pupils | 297 |
| School Name | Hartstown Community School | Distance | 2.2km | Pupils | 1124 |
| School Name | Hartstown Community School | Distance | 2.2km | Pupils | 1124 |
| School Name | Colaiste Pobail Setanta | Distance | 2.9km | Pupils | 1069 |
| School Name | Colaiste Pobail Setanta | Distance | 2.9km | Pupils | 1069 |
Type | Distance | Stop | Route | Destination | Provider | ||||||
|---|---|---|---|---|---|---|---|---|---|---|---|
| Type | Bus | Distance | 690m | Stop | Damastown Close | Route | 70n | Destination | Tyrrelstown | Provider | Nitelink, Dublin Bus |
| Type | Bus | Distance | 690m | Stop | Damastown Close | Route | 38a | Destination | Burlington Road | Provider | Dublin Bus |
| Type | Bus | Distance | 690m | Stop | Damastown Close | Route | 38b | Destination | Burlington Road | Provider | Dublin Bus |
Type | Distance | Stop | Route | Destination | Provider | ||||||
|---|---|---|---|---|---|---|---|---|---|---|---|
| Type | Bus | Distance | 690m | Stop | Damastown Close | Route | 38 | Destination | Burlington Road | Provider | Dublin Bus |
| Type | Bus | Distance | 690m | Stop | Damastown Close | Route | 38b | Destination | O'Connell Street | Provider | Dublin Bus |
| Type | Bus | Distance | 690m | Stop | Damastown Close | Route | 38b | Destination | O'Connell Street | Provider | Dublin Bus |
| Type | Bus | Distance | 690m | Stop | Damastown Close | Route | 38b | Destination | Burlington Road | Provider | Dublin Bus |
| Type | Bus | Distance | 690m | Stop | Damastown Close | Route | 70n | Destination | Tyrrelstown | Provider | Nitelink, Dublin Bus |
| Type | Bus | Distance | 690m | Stop | Damastown Close | Route | 38 | Destination | Burlington Road | Provider | Dublin Bus |
| Type | Bus | Distance | 690m | Stop | Damastown Close | Route | 38 | Destination | Parnell Sq | Provider | Dublin Bus |
Your Mortgage and Insurance Tools
Check off the steps to purchase your new home
Use our Buying Checklist to guide you through the whole home-buying journey.
Budget calculator
Calculate how much you can borrow and what you'll need to save
Ad performance
- Date listed11/11/2025
- Views2,702
- Potential views if upgraded to an Advantage Ad4,404
Daft ID: 16343598
