Radhairc Na Coille, Rathcool, Co. Cork
€240,000
- Selling Type:By Private Treaty
About this property
Highlights
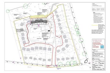
- Full Planning Permission for 8 Units (All 3 bedroom semi detached)
- Site Area 1.4 ha (3.44 acres)
- Excellent accessibility to the N72, allowing ease of access to Cork & Killarney
- 8 units of architecturally designed homes
- Forms part of the existing Radhairc na Coille Development
Description
Dick Pomeroy & Co. along with joint selling agents Liam Mullins & Associates present to the market this fantastic opportunity to acquire a Residential Development Site of approx. 3.44 acres with F.P.P for 8 Units at Radhairc na Coille, Rathcoole, Co. Cork The Location The site is situated in the Village of Rathcoole, North Cork within easy access to the N72 Mallow/Killarney Road. The busy town of Millstreet is a 10 minute drive, Banteer Village which has a railway station is an 8 minute drive. Commuting to Cork City will take approx 55 minutes and Killarney 45 minutes. Description Excellent development opportunity situated off the N72 Mallow/Killarney Road. The subject site forms part of the existing Radhairc na Coille Development and extends to approx 3.44 acres with full planning permission granted by An Bord Pleanala in March 2024 for the construction of 8 units. Vehicular access to the development will be via the existing estate entrance to Radhairc na Coille. Planning The site has ready to go full planning permission for 8 units granted by An Bord Pleanala in March 2024. Planning File NO. 216188, Board Order ABP-314526-22 Price €30,000 per stand, Vat Applicable NOTE: Any information, description, measurement or statement so given or contained in any such sales particulars, webpage, brochure, email, letter, report issued by or on behalf of Dick Pomeroy & Co., Auctioneers or the vendor are for illustration purposes only and are not to be taken as matters of fact or to be taken as forming any part of a resulting contract. Dick Pomeroy & Co Auctioneers nor the vendor accept any liability as to their accuracy of the particulars. Interested parties must conduct their due diligence by personal inspection or otherwise as to the correctness of these particulars. No person in the employment of Dick Pomeroy & Co Auctioneers has any authority to make or give any representation or warranty whatever in relation to this property.
The local area
The local area
Sold properties in this area
Stay informed with market trends
Local schools and transport

Learn more about what this area has to offer.
School Name | Distance | Pupils | |||
|---|---|---|---|---|---|
| School Name | St. Brendan's N.s., Rathcoole | Distance | 470m | Pupils | 75 |
| School Name | Kilcorney National School | Distance | 4.1km | Pupils | 24 |
| School Name | Dromagh National School | Distance | 4.5km | Pupils | 21 |
School Name | Distance | Pupils | |||
|---|---|---|---|---|---|
| School Name | Derrinagree National School | Distance | 4.9km | Pupils | 67 |
| School Name | Banteer National School | Distance | 7.0km | Pupils | 189 |
| School Name | Presentation National School Millstreet | Distance | 7.5km | Pupils | 245 |
| School Name | Millstreet Boys National School | Distance | 7.5km | Pupils | 98 |
| School Name | Scoil Fhursa Lyre | Distance | 8.3km | Pupils | 57 |
| School Name | Cullen National School | Distance | 9.2km | Pupils | 65 |
| School Name | Boherbue National School | Distance | 9.3km | Pupils | 200 |
School Name | Distance | Pupils | |||
|---|---|---|---|---|---|
| School Name | Millstreet Community School | Distance | 7.4km | Pupils | 370 |
| School Name | Boherbue Comprehensive School | Distance | 9.0km | Pupils | 528 |
| School Name | Scoil Mhuire | Distance | 10.0km | Pupils | 299 |
School Name | Distance | Pupils | |||
|---|---|---|---|---|---|
| School Name | Coláiste Treasa | Distance | 10.3km | Pupils | 627 |
| School Name | Scoil Phobail Sliabh Luachra | Distance | 18.5km | Pupils | 402 |
| School Name | De La Salle College | Distance | 21.3km | Pupils | 423 |
| School Name | Colaiste Ghobnatan | Distance | 21.4km | Pupils | 224 |
| School Name | Mcegan College | Distance | 21.4km | Pupils | 272 |
| School Name | St Mary's Secondary School | Distance | 21.6km | Pupils | 420 |
| School Name | Davis College | Distance | 23.1km | Pupils | 1010 |
Type | Distance | Stop | Route | Destination | Provider | ||||||
|---|---|---|---|---|---|---|---|---|---|---|---|
| Type | Rail | Distance | 6.4km | Stop | Banteer | Route | Rail | Destination | Tralee Casement Station | Provider | Irish Rail |
| Type | Rail | Distance | 6.4km | Stop | Banteer | Route | Rail | Destination | Dublin Heuston | Provider | Irish Rail |
| Type | Rail | Distance | 6.4km | Stop | Banteer | Route | Rail | Destination | Cork (kent) | Provider | Irish Rail |
Type | Distance | Stop | Route | Destination | Provider | ||||||
|---|---|---|---|---|---|---|---|---|---|---|---|
| Type | Rail | Distance | 6.4km | Stop | Banteer | Route | Rail | Destination | Mallow | Provider | Irish Rail |
| Type | Bus | Distance | 6.8km | Stop | Millstreet Station | Route | 257 | Destination | Killarney | Provider | Bus Éireann |
| Type | Bus | Distance | 6.8km | Stop | Millstreet Station | Route | 257 | Destination | Macroom | Provider | Bus Éireann |
| Type | Rail | Distance | 6.8km | Stop | Millstreet | Route | Rail | Destination | Dublin Heuston | Provider | Irish Rail |
| Type | Rail | Distance | 6.8km | Stop | Millstreet | Route | Rail | Destination | Cork (kent) | Provider | Irish Rail |
| Type | Rail | Distance | 6.8km | Stop | Millstreet | Route | Rail | Destination | Mallow | Provider | Irish Rail |
| Type | Rail | Distance | 6.8km | Stop | Millstreet | Route | Rail | Destination | Tralee Casement Station | Provider | Irish Rail |
Your Mortgage and Insurance Tools
Check off the steps to purchase your new home
Use our Buying Checklist to guide you through the whole home-buying journey.
Budget calculator
Calculate how much you can borrow and what you'll need to save
Statistics
- 27/06/2025Entered
- 5,220Property Views
- 8,509
Potential views if upgraded to a Daft Advantage Ad
Learn How
Daft ID: 120447471
