RESIDENTIAL APARTMENT DEVELOPMENT at KINSALE, CO. CORK, Kinsale, Co. Cork, P17K599
€2,250,000
- Selling Type:By Private Treaty
About this property
Description
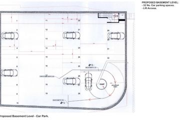
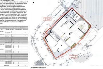
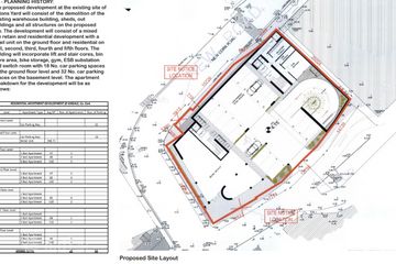
Residential Apartment Development at Kinsale, Co. Cork The proposed development at the existing site of Actons Yard will consist of the demolition of the existing warehouse building, sheds, out buildings and all structures on the proposed site. The development will consist of a mixed use retail and residential development with a retail unit on the ground floor and residential on first, second, third, fourth and fifth floors, 25 apartments in total. The building will incorporate lift and stair cores, bin store area, bike storage, gym, ESB substation and switch room with 18 No. car parking spaces on the ground floor level and 32 No. car parking spaces on the basement level. ***Please refer to images provided for floor plans, elevations and renders. NB, The aforementioned planning has lapsed since 2024. The above details are for guidance only and do not form part of any contract. They have been prepared with care but we are not responsible for any inaccuracies. All descriptions, dimensions, references to condition and necessary permission for use and occupation, and other details are given in good faith and are believed to be correct but any intending purchaser or tenant should not rely on them as statements or representations of fact but must satisfy himself / herself by inspection or otherwise as to the correctness of each of them. In the event of any inconsistency between these particulars and the contract of sale, the latter shall prevail. The details are issued on the understanding that all negotiations on any property are conducted through this office.
The local area
The local area
Sold properties in this area
Stay informed with market trends
Local schools and transport

Learn more about what this area has to offer.
School Name | Distance | Pupils | |||
|---|---|---|---|---|---|
| School Name | Scoil Naomh Eltin | Distance | 470m | Pupils | 400 |
| School Name | St Multose National School | Distance | 590m | Pupils | 54 |
| School Name | Gaelscoil Chionn Tsáile | Distance | 1.1km | Pupils | 145 |
School Name | Distance | Pupils | |||
|---|---|---|---|---|---|
| School Name | Summercove National School | Distance | 1.4km | Pupils | 217 |
| School Name | Belgooly National School | Distance | 4.6km | Pupils | 352 |
| School Name | Dunderrow National School | Distance | 5.4km | Pupils | 181 |
| School Name | Ballinspittle National School | Distance | 7.0km | Pupils | 184 |
| School Name | Ballinadee National School | Distance | 7.2km | Pupils | 103 |
| School Name | Ballyheada National School | Distance | 10.0km | Pupils | 164 |
| School Name | Gurraneasig National School | Distance | 10.5km | Pupils | 59 |
School Name | Distance | Pupils | |||
|---|---|---|---|---|---|
| School Name | Kinsale Community School | Distance | 620m | Pupils | 1498 |
| School Name | Edmund Rice College | Distance | 14.7km | Pupils | 577 |
| School Name | Coláiste Na Toirbhirte | Distance | 14.9km | Pupils | 451 |
School Name | Distance | Pupils | |||
|---|---|---|---|---|---|
| School Name | Carrigaline Community School | Distance | 15.4km | Pupils | 1060 |
| School Name | Gaelcholáiste Charraig Ui Leighin | Distance | 15.7km | Pupils | 283 |
| School Name | St. Brogan's College | Distance | 15.7km | Pupils | 861 |
| School Name | Hamilton High School | Distance | 15.9km | Pupils | 429 |
| School Name | Bandon Grammar School | Distance | 15.9km | Pupils | 717 |
| School Name | Coláiste Muire- Réalt Na Mara | Distance | 18.6km | Pupils | 518 |
| School Name | Coláiste An Spioraid Naoimh | Distance | 19.5km | Pupils | 700 |
Type | Distance | Stop | Route | Destination | Provider | ||||||
|---|---|---|---|---|---|---|---|---|---|---|---|
| Type | Bus | Distance | 100m | Stop | Kinsale Quarter | Route | 253c | Destination | Town Shuttle | Provider | Tfi Local Link Cork |
| Type | Bus | Distance | 230m | Stop | Kinsale | Route | 255 | Destination | Kinsale | Provider | Tfi Local Link Cork |
| Type | Bus | Distance | 230m | Stop | Kinsale | Route | 226 | Destination | Kent Train Station | Provider | Bus Éireann |
Type | Distance | Stop | Route | Destination | Provider | ||||||
|---|---|---|---|---|---|---|---|---|---|---|---|
| Type | Bus | Distance | 230m | Stop | Kinsale | Route | 226x | Destination | Mtu | Provider | Bus Éireann |
| Type | Bus | Distance | 230m | Stop | Kinsale | Route | 253 | Destination | Kinsale | Provider | Tfi Local Link Cork |
| Type | Bus | Distance | 230m | Stop | Kinsale | Route | 254 | Destination | Kinsale Hotel | Provider | Tfi Local Link Cork |
| Type | Bus | Distance | 230m | Stop | Kinsale | Route | 253 | Destination | Clonakilty | Provider | Tfi Local Link Cork |
| Type | Bus | Distance | 590m | Stop | Kinsale College | Route | 255 | Destination | Mtu Bishopstown | Provider | Tfi Local Link Cork |
| Type | Bus | Distance | 590m | Stop | Kinsale College | Route | 255 | Destination | Cork University Hospital | Provider | Tfi Local Link Cork |
| Type | Bus | Distance | 600m | Stop | Kinsale College | Route | 253c | Destination | Town Shuttle | Provider | Tfi Local Link Cork |
Your Mortgage and Insurance Tools
Check off the steps to purchase your new home
Use our Buying Checklist to guide you through the whole home-buying journey.
Budget calculator
Calculate how much you can borrow and what you'll need to save
Ad performance
- Date listed31/07/2025
- Views7,157
- Potential views if upgraded to an Advantage Ad11,666
Daft ID: 122571741