Gort An Tsrutháin, Garrafrauns, Tuam, Co. Galway
- Units in this development:3
2 Property Types in this Development

€350,000
3 Bed3 BathSemi-D
New Homes

€385,000
4 Bed3 BathDetached
New Homes
About this development
Highlights
- Spacious Interiors
- Will be Completed to a High Standard
- Boutique Development of Just Three Homes
- Located in the Heart of Garrafrauns Village
- 45 Minutes from Galway City
Description
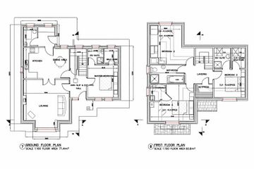
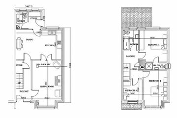
Fair Deal Property New Homes Division; Are delighted to present to market this boutique development of three newly finished homes located in the village of Garrafrauns. There are three homes available in total, 1 x 4 bedroom detached home with floor are of 141 square meters and 2 x 3 bedroom semi detached Homes with a floor are of of 109 Square meters Completed to a high modern standard, the homes feature a strong B2 energy rating and highly efficient condensing boiler system, ensuring excellent energy performance, reduced running costs, and long-term value. Located in the welcoming village of Garrafrauns, this property offers the perfect balance of peaceful countryside living with excellent connectivity, just 15 minutes from Tuam town and approximately 45 minutes from Galway City. The village benefits from a local primary school, with secondary schooling available nearby in Dunmore. With limited availability in this exclusive development represents a rare opportunity to acquire a spacious, energy-efficient modern family home located in a highly desirable location and private location. Early viewing is highly recommended. Brought to you by Fair Deal Property Your Trusted Partners for Residential Property Sales.
The local area
The local area
Sold properties in this area
Stay informed with market trends
Local schools and transport
Learn more about what this area has to offer.
School Name | Distance | Pupils | |||
|---|---|---|---|---|---|
| School Name | Garrafrauns National School | Distance | 350m | Pupils | 95 |
| School Name | Garrafrauns National School | Distance | 350m | Pupils | 95 |
| School Name | Irishtown National School | Distance | 5.1km | Pupils | 64 |
School Name | Distance | Pupils | |||
|---|---|---|---|---|---|
| School Name | Irishtown National School | Distance | 5.1km | Pupils | 64 |
| School Name | Milltown National School | Distance | 5.3km | Pupils | 98 |
| School Name | Milltown National School | Distance | 5.3km | Pupils | 98 |
| School Name | Dunmore National School | Distance | 6.1km | Pupils | 228 |
| School Name | Dunmore National School | Distance | 6.1km | Pupils | 228 |
| School Name | Cloonfad National School | Distance | 7.5km | Pupils | 133 |
| School Name | Cloonfad National School | Distance | 7.5km | Pupils | 133 |
School Name | Distance | Pupils | |||
|---|---|---|---|---|---|
| School Name | Dunmore Community School | Distance | 6.2km | Pupils | 353 |
| School Name | Dunmore Community School | Distance | 6.2km | Pupils | 353 |
| School Name | High Cross College | Distance | 13.2km | Pupils | 827 |
School Name | Distance | Pupils | |||
|---|---|---|---|---|---|
| School Name | High Cross College | Distance | 13.2km | Pupils | 827 |
| School Name | St. Jarlath's College | Distance | 13.4km | Pupils | 706 |
| School Name | St. Jarlath's College | Distance | 13.4km | Pupils | 706 |
| School Name | Presentation College | Distance | 13.6km | Pupils | 499 |
| School Name | Presentation College | Distance | 13.6km | Pupils | 499 |
| School Name | St. Brigid's School | Distance | 13.7km | Pupils | 391 |
| School Name | St. Brigid's School | Distance | 13.7km | Pupils | 391 |
Type | Distance | Stop | Route | Destination | Provider | ||||||
|---|---|---|---|---|---|---|---|---|---|---|---|
| Type | Bus | Distance | 250m | Stop | Garrafrauns | Route | 488 | Destination | Glennaneeny | Provider | Farragher International Travel Services |
| Type | Bus | Distance | 250m | Stop | Garrafrauns | Route | 488 | Destination | Glennaneeny | Provider | Farragher International Travel Services |
| Type | Bus | Distance | 1.7km | Stop | Ardcloon | Route | 488 | Destination | Glennaneeny | Provider | Farragher International Travel Services |
Type | Distance | Stop | Route | Destination | Provider | ||||||
|---|---|---|---|---|---|---|---|---|---|---|---|
| Type | Bus | Distance | 1.7km | Stop | Ardcloon | Route | 488 | Destination | Glennaneeny | Provider | Farragher International Travel Services |
| Type | Bus | Distance | 2.6km | Stop | Cloondergan | Route | 488 | Destination | Glennaneeny | Provider | Farragher International Travel Services |
| Type | Bus | Distance | 2.6km | Stop | Cloondergan | Route | 488 | Destination | Glennaneeny | Provider | Farragher International Travel Services |
| Type | Bus | Distance | 2.9km | Stop | Gortnagoyne | Route | 488 | Destination | Glennaneeny | Provider | Farragher International Travel Services |
| Type | Bus | Distance | 2.9km | Stop | Gortnagoyne | Route | 488 | Destination | Glennaneeny | Provider | Farragher International Travel Services |
| Type | Bus | Distance | 4.5km | Stop | Castlefarm | Route | 488 | Destination | Glennaneeny | Provider | Farragher International Travel Services |
| Type | Bus | Distance | 4.5km | Stop | Castlefarm | Route | 488 | Destination | Glennaneeny | Provider | Farragher International Travel Services |
Your Mortgage and Insurance Tools
Check off the steps to purchase your new home
Use our Buying Checklist to guide you through the whole home-buying journey.
Budget calculator
Calculate how much you can borrow and what you'll need to save
BER Details
Ad performance
- Date listed17/02/2026
- Views3,379
- Potential views if upgraded to an Advantage Ad5,508
Daft ID: 96498791
