Gort An Tsrutháin, Garrafrauns, Tuam, Co. Galway
- Units in this development:3
2 Property Types in this Development

€350,000
3 Bed3 BathSemi-D
New Homes

€385,000
4 Bed3 BathDetached
New Homes
About this development
Description
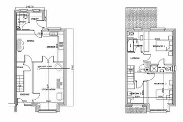
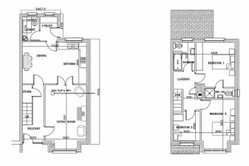
Fair Deal Property New Homes Division are delighted to present this exclusive boutique development of just three beautifully finished, modern energy-efficient homes located in the peaceful village setting of Garrafrauns, Co. Galway. Ideally positioned just 15 minutes from Tuam town and a comfortable 45-minute commute to Galway City, this development offers the perfect balance between tranquil village living and convenient access to centres of employment. Finished as new to an exceptional standard, these homes have been thoughtfully designed to meet the needs of modern family living, with spacious layouts, high levels of energy efficiency, and elegant contemporary finishes throughout. The development comprises of one impressive four-bedroom detached residence extending to approximately 141 square metres, along with two spacious three-bedroom semi-detached homes extending to approximately 109 square metres each. With just three homes available in total, this is a rare opportunity to secure a high-quality new home in a well-connected village location where supply is extremely limited. These homes are expected to generate strong interest and are sure to move quickly. To register your interest or arrange a viewing, contact Fair Deal Property today. Fair Deal Property — Your Trusted Partners for Residential Property Sales
The local area
The local area
Sold properties in this area
Stay informed with market trends
Local schools and transport
Learn more about what this area has to offer.
School Name | Distance | Pupils | |||
|---|---|---|---|---|---|
| School Name | Garrafrauns National School | Distance | 350m | Pupils | 95 |
| School Name | Garrafrauns National School | Distance | 350m | Pupils | 95 |
| School Name | Irishtown National School | Distance | 5.1km | Pupils | 64 |
School Name | Distance | Pupils | |||
|---|---|---|---|---|---|
| School Name | Irishtown National School | Distance | 5.1km | Pupils | 64 |
| School Name | Milltown National School | Distance | 5.3km | Pupils | 98 |
| School Name | Milltown National School | Distance | 5.3km | Pupils | 98 |
| School Name | Dunmore National School | Distance | 6.1km | Pupils | 228 |
| School Name | Dunmore National School | Distance | 6.1km | Pupils | 228 |
| School Name | Cloonfad National School | Distance | 7.5km | Pupils | 133 |
| School Name | Cloonfad National School | Distance | 7.5km | Pupils | 133 |
School Name | Distance | Pupils | |||
|---|---|---|---|---|---|
| School Name | Dunmore Community School | Distance | 6.2km | Pupils | 353 |
| School Name | Dunmore Community School | Distance | 6.2km | Pupils | 353 |
| School Name | High Cross College | Distance | 13.2km | Pupils | 827 |
School Name | Distance | Pupils | |||
|---|---|---|---|---|---|
| School Name | High Cross College | Distance | 13.2km | Pupils | 827 |
| School Name | St. Jarlath's College | Distance | 13.4km | Pupils | 706 |
| School Name | St. Jarlath's College | Distance | 13.4km | Pupils | 706 |
| School Name | Presentation College | Distance | 13.6km | Pupils | 499 |
| School Name | Presentation College | Distance | 13.6km | Pupils | 499 |
| School Name | St. Brigid's School | Distance | 13.7km | Pupils | 391 |
| School Name | St. Brigid's School | Distance | 13.7km | Pupils | 391 |
Type | Distance | Stop | Route | Destination | Provider | ||||||
|---|---|---|---|---|---|---|---|---|---|---|---|
| Type | Bus | Distance | 250m | Stop | Garrafrauns | Route | 488 | Destination | Glennaneeny | Provider | Farragher International Travel Services |
| Type | Bus | Distance | 250m | Stop | Garrafrauns | Route | 488 | Destination | Glennaneeny | Provider | Farragher International Travel Services |
| Type | Bus | Distance | 1.7km | Stop | Ardcloon | Route | 488 | Destination | Glennaneeny | Provider | Farragher International Travel Services |
Type | Distance | Stop | Route | Destination | Provider | ||||||
|---|---|---|---|---|---|---|---|---|---|---|---|
| Type | Bus | Distance | 1.7km | Stop | Ardcloon | Route | 488 | Destination | Glennaneeny | Provider | Farragher International Travel Services |
| Type | Bus | Distance | 2.6km | Stop | Cloondergan | Route | 488 | Destination | Glennaneeny | Provider | Farragher International Travel Services |
| Type | Bus | Distance | 2.6km | Stop | Cloondergan | Route | 488 | Destination | Glennaneeny | Provider | Farragher International Travel Services |
| Type | Bus | Distance | 2.9km | Stop | Gortnagoyne | Route | 488 | Destination | Glennaneeny | Provider | Farragher International Travel Services |
| Type | Bus | Distance | 2.9km | Stop | Gortnagoyne | Route | 488 | Destination | Glennaneeny | Provider | Farragher International Travel Services |
| Type | Bus | Distance | 4.5km | Stop | Castlefarm | Route | 488 | Destination | Glennaneeny | Provider | Farragher International Travel Services |
| Type | Bus | Distance | 4.5km | Stop | Castlefarm | Route | 488 | Destination | Glennaneeny | Provider | Farragher International Travel Services |
Your Mortgage and Insurance Tools
Check off the steps to purchase your new home
Use our Buying Checklist to guide you through the whole home-buying journey.
Budget calculator
Calculate how much you can borrow and what you'll need to save
BER Details
Ad performance
- Date listed18/02/2026
- Views4,557
Daft ID: 96498911