3,714 Commercial Properties for Sale in Ireland
c. 95.31 Acres, Ballinacourty, Kilfinane, Co. Limerick, V35WV09
95.31 acAgricultural LandUnit 2, Eastlink Business Park, Ballysimon Road, Limerick City, V94D2C1
Industrial UnitSouthpoint Business Park, Rathnew, Co. Wicklow
28200 m²Commercial Site15A Six Cross Roads Business Park, Waterford City, Co. Waterford, X91T653
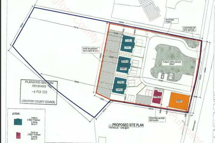
Industrial UnitMossstown, Keenagh, Co. Longford
2.15 acDevelopment LandTrimragh, Letterkenny, Co. Donegal
Development LandRusheenamanagh, Carna, Co. Galway
Development LandTrimragh, Letterkenny, Co. Donegal
0.7 acDevelopment LandRossnowlagh Lower, Rossnowlagh, Co. Donegal
3.26 acAgricultural LandUnit A2, Building 6500, Cork Airport Business Park, Co. Cork, T12Y56E
269 m²Investment PropertyBarnahesker, Kilkelly, Co. Mayo
1 acAgricultural LandGreen Hills, Dooradoyle, Co. Limerick, V94EW4F
1.13 acDevelopment Land195 Emmet Road, Inchicore, Dublin 8, D08XY4C
192 m²Investment PropertyNewtown, Swords, Co. Dublin, K67YD23
6.07 acDevelopment LandO'Connell St Development Site, Dungarvan Town Centre, Dungarvan, Co. Waterford
Investment Property15 O'Connell St, Dungarvan, Co. Waterford, X35P661
186 m²Investment PropertyC. 0.75 Acres Zoned Lands, Circular Road, Roscommon Town, Co. Roscommon
Development LandMain Street, Newtownmountkennedy, Co. Wicklow, A63KC57
0.07 acDevelopment LandPollnaranny, Ballintra, Co. Donegal
34.2 acAgricultural LandAbbey Street, Ballina, Co. Mayo
Industrial Unit