Development Site, Chapel Road, Lusk, Co. Dublin, K45NF79
€699,000
- Selling Type:By Private Treaty
About this property
Highlights
- Views of the Historic Round Tower
- Just Off Main Street Lusk
- Central Location
- Planning Reference Number F25A/0023
- Case ref: PL06F.323160
Description
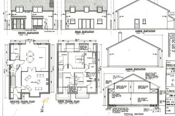
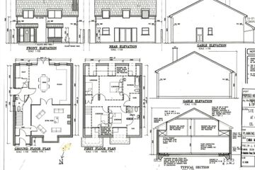
DNG McKenna Healy is pleased to offer one of the finest ready to go development site in the centre of Lusk to the market for sale. This magnificent, high-profile opportunity benefits from full planning permission for the construction of three luxury detached homes, making it an extremely attractive proposition for developers seeking certainty and scale. Full Planning Permission was granted for the development of 3 Detached Dwellings comprising of 4-bed dormer houses with private gardens and off street parking. The former industrial glasshouses and shed have been fully demolished and removed and on-site waste water piping rerouting has been completed. An Coimisiún Pleanála - Case ref: PL06F.323160 Planning Authrity Case Ref: F25A/0023 The site is strategically zoned TC (Town and District Centre) under the 2023 - 2029 Fingal Development Plan, ensuring the area is dedicated to protecting and enhancing urban facilities and character. Total Site Area: c.0.42 acres / 0.17 HA The site's position is unique, situated in an enclosed, walled setting that runs parallel with Lusk Main Street and is located immediately adjacent to Lusk National School. Lusk is an established, thriving community currently undergoing significant residential and commercial growth. Its combination of village amenity and connectivity makes it a sought-after area for high-quality residential development. This is a unique opportunity to acquire one of the last substantial, cleared sites in this high-profile, central location within the Village of Lusk. For full particulars, please contact Margaret Healy of DNG McKenna Healy on 01-8491510.
The local area
Sold properties in this area
Stay informed with market trends
Local schools and transport

Learn more about what this area has to offer.
School Name | Distance | Pupils | |||
|---|---|---|---|---|---|
| School Name | Lusk S.n.s. St. Maccullins | Distance | 100m | Pupils | 416 |
| School Name | Lusk Junior National School St Maccullins | Distance | 110m | Pupils | 382 |
| School Name | Rush And Lusk Educate Together | Distance | 700m | Pupils | 410 |
School Name | Distance | Pupils | |||
|---|---|---|---|---|---|
| School Name | Corduff National School | Distance | 2.0km | Pupils | 90 |
| School Name | St Mary's Special School Drumcar | Distance | 3.2km | Pupils | 98 |
| School Name | Hedgestown National School | Distance | 3.6km | Pupils | 67 |
| School Name | Gaelscoil Ros Eo | Distance | 4.1km | Pupils | 159 |
| School Name | Milverton National School | Distance | 4.3km | Pupils | 84 |
| School Name | Rush National School | Distance | 4.3km | Pupils | 708 |
| School Name | Donabate/portrane Educate Together National School | Distance | 4.4km | Pupils | 419 |
School Name | Distance | Pupils | |||
|---|---|---|---|---|---|
| School Name | Lusk Community College | Distance | 730m | Pupils | 1081 |
| School Name | Donabate Community College | Distance | 4.6km | Pupils | 813 |
| School Name | St Joseph's Secondary School | Distance | 5.1km | Pupils | 928 |
School Name | Distance | Pupils | |||
|---|---|---|---|---|---|
| School Name | Skerries Community College | Distance | 6.6km | Pupils | 1029 |
| School Name | Swords Community College | Distance | 8.0km | Pupils | 930 |
| School Name | St. Finian's Community College | Distance | 8.0km | Pupils | 661 |
| School Name | Ardgillan Community College | Distance | 8.2km | Pupils | 1001 |
| School Name | Fingal Community College | Distance | 8.2km | Pupils | 866 |
| School Name | Bremore Educate Together Secondary School | Distance | 8.8km | Pupils | 836 |
| School Name | Coláiste Ghlór Na Mara | Distance | 9.0km | Pupils | 500 |
Type | Distance | Stop | Route | Destination | Provider | ||||||
|---|---|---|---|---|---|---|---|---|---|---|---|
| Type | Bus | Distance | 370m | Stop | Station Road | Route | 33a | Destination | Station Road | Provider | Go-ahead Ireland |
| Type | Bus | Distance | 370m | Stop | Station Road | Route | 33x | Destination | Merrion Square W | Provider | Dublin Bus |
| Type | Bus | Distance | 390m | Stop | Station Road | Route | 33 | Destination | Balbriggan | Provider | Dublin Bus |
Type | Distance | Stop | Route | Destination | Provider | ||||||
|---|---|---|---|---|---|---|---|---|---|---|---|
| Type | Bus | Distance | 390m | Stop | Station Road | Route | 33n | Destination | Mourne View | Provider | Nitelink, Dublin Bus |
| Type | Bus | Distance | 390m | Stop | Station Road | Route | 33t | Destination | Station Road | Provider | Go-ahead Ireland |
| Type | Bus | Distance | 390m | Stop | Station Road | Route | 33e | Destination | Skerries | Provider | Dublin Bus |
| Type | Bus | Distance | 520m | Stop | Barrack Lane | Route | 33e | Destination | Skerries | Provider | Dublin Bus |
| Type | Bus | Distance | 520m | Stop | Barrack Lane | Route | 33x | Destination | Balbriggan | Provider | Dublin Bus |
| Type | Bus | Distance | 520m | Stop | Barrack Lane | Route | 33n | Destination | Mourne View | Provider | Nitelink, Dublin Bus |
| Type | Bus | Distance | 520m | Stop | Barrack Lane | Route | 33a | Destination | Balbriggan | Provider | Go-ahead Ireland |
Your Mortgage and Insurance Tools
Check off the steps to purchase your new home
Use our Buying Checklist to guide you through the whole home-buying journey.
Budget calculator
Calculate how much you can borrow and what you'll need to save
Ad performance
- Date listed25/11/2025
- Views12,830
- Potential views if upgraded to an Advantage Ad20,913
Properties similar to this property
€645,000
2 The Alcove,, Channel Road,, Rush,, Co. Dublin, K56X6504 Bed · 3 Bath · Detached€650,000
34 Beresford Avenue, Donabate, Donabate, Co. Dublin, K36RH314 Bed · 3 Bath · Semi-D€685,000
Carrig Bán, Ballykea, Skerries, Co. Dublin, K34VN504 Bed · 2 Bath · Detached€685,000
Carrig Bán, Ballykea, Skerries, Co. Dublin, K34VN504 Bed · 2 Bath · Detached
€720,000
Ashwood House, Ballough, Lusk, Co. Dublin, K45TF445 Bed · 2 Bath · Detached€800,000
Maryville, Skerries Road, Great Common, Lusk, Co. Dublin, K45XR125 Bed · 3 Bath · Detached€850,000
La Casita, Church Road, Lusk, Co. Dublin, K45W5294 Bed · 4 Bath · Detached€865,000
Sundrive Road, 4 bed 4 bath detached Property, Sundrive Road, Sundrive Road, Rush, Co Dublin, Rush, Co. Dublin4 Bed · 4 Bath · Detached€880,000
Ballykea, Skerries, Co. Dublin, K34K0944 Bed · 3 Bath · Detached€920,000
Coral Lodge, Ballykea, Skerries, Co. Dublin, K34AF444 Bed · 3 Bath · Detached€999,950
The Willows, Hayestown Road, Rush, Co. Dublin, K56VY836 Bed · 4 Bath · Detached€1,050,000
Dun Nera, Corduff (Hackett), Lusk, Co. Dublin, K45CK645 Bed · 6 Bath · Detached
Daft ID: 119145627
