Oakpark Drive, Letterkenny, Co. Donegal
€675,000
- Price per m²:€3,392
- Estimated Stamp Duty:€6,750
- Selling Type:By Private Treaty
About this property
Highlights
- Detached Family Home
- Located in a pleasant area within easy access to Town Centre and all amenities
- Comprising 4 bedrooms, 2 of which are located on ground floor
- Both first floor bedrooms are ensuite
- Total floor area 199 Sq m (2141 sq ft)
Description
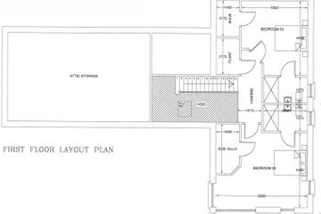
Sherry Fitzgerald Paul Reynolds are excited to present to the market this beautifully designed split level detached family home on 0.7 acre site. Soon to commence, this well designed detached property is located in the desriable Woodlands area of Lettekrenny, less than 10 min drive to Town Centre. This A rated house with a total floor area of 199 sq m (2141 sq ft) will be constructed to the highest of standards and offers accommodation to include living room, kitchen/dining area, 2 no. bedrooms and bathroom on ground floor and a further 2 ensuite bedrooms on first floor Entrance Hall 7.0 x 2.7. Staircase to first floor Living Room 5.5 x 4.7 Kitchen/Dining Area 5.5 x 5.1 Utility Room Door to external Bedroom 1 5.3 x 4.2. Space for built in wardrobe Bedroom 2 4.2 x 3.9. Space for built in wardrobe Bathroom 3.5 x 2.4 Landing Bedroom 3 5.5 x 4.5. Walk in wardrobe Ensuite 2.5 x 1.5 Bedroom 4 4.4 x 4.0. Walk in wardrobe Ensuite 2.5 x 1.5
The local area
The local area
Sold properties in this area
Stay informed with market trends
Local schools and transport

Learn more about what this area has to offer.
School Name | Distance | Pupils | |||
|---|---|---|---|---|---|
| School Name | Woodland National School | Distance | 290m | Pupils | 476 |
| School Name | Cashelshanaghan National School | Distance | 2.9km | Pupils | 31 |
| School Name | Letterkenny Educate Together National School | Distance | 3.5km | Pupils | 421 |
School Name | Distance | Pupils | |||
|---|---|---|---|---|---|
| School Name | Ballyraine National School | Distance | 3.6km | Pupils | 222 |
| School Name | Little Angels School | Distance | 3.7km | Pupils | 133 |
| School Name | Illistrin National School | Distance | 4.1km | Pupils | 514 |
| School Name | Magherabeg National School | Distance | 4.2km | Pupils | 117 |
| School Name | Letterkenny National School | Distance | 4.9km | Pupils | 479 |
| School Name | Lurgybrack National School | Distance | 5.0km | Pupils | 426 |
| School Name | Gaelscoil Adhamhnáin | Distance | 5.2km | Pupils | 406 |
School Name | Distance | Pupils | |||
|---|---|---|---|---|---|
| School Name | Errigal College | Distance | 3.9km | Pupils | 547 |
| School Name | Coláiste Ailigh | Distance | 4.4km | Pupils | 321 |
| School Name | Loreto Secondary School, Letterkenny | Distance | 5.0km | Pupils | 944 |
School Name | Distance | Pupils | |||
|---|---|---|---|---|---|
| School Name | St Eunan's College | Distance | 5.2km | Pupils | 1014 |
| School Name | Deele College | Distance | 12.3km | Pupils | 831 |
| School Name | The Royal And Prior School | Distance | 12.4km | Pupils | 611 |
| School Name | Loreto Community School | Distance | 12.7km | Pupils | 807 |
| School Name | Mulroy College | Distance | 13.1km | Pupils | 628 |
| School Name | St Columbas College | Distance | 20.1km | Pupils | 949 |
| School Name | Finn Valley College | Distance | 20.4km | Pupils | 424 |
Type | Distance | Stop | Route | Destination | Provider | ||||||
|---|---|---|---|---|---|---|---|---|---|---|---|
| Type | Bus | Distance | 1.3km | Stop | Silver Tassie Hotel | Route | 974 | Destination | Market Square | Provider | Patrick Gallagher Travel |
| Type | Bus | Distance | 3.5km | Stop | Dromore | Route | 989 | Destination | Letterkenny | Provider | Tfi Local Link Donegal Sligo Leitrim |
| Type | Bus | Distance | 3.5km | Stop | Ballyraine School | Route | 989 | Destination | Carrigans | Provider | Tfi Local Link Donegal Sligo Leitrim |
Type | Distance | Stop | Route | Destination | Provider | ||||||
|---|---|---|---|---|---|---|---|---|---|---|---|
| Type | Bus | Distance | 3.8km | Stop | Atu Ballyraine | Route | 989 | Destination | Letterkenny | Provider | Tfi Local Link Donegal Sligo Leitrim |
| Type | Bus | Distance | 3.8km | Stop | Drumnahoagh | Route | 953 | Destination | Greencastle | Provider | Tfi Local Link Donegal Sligo Leitrim |
| Type | Bus | Distance | 3.8km | Stop | Drumnahoagh | Route | 959 | Destination | Greencastle | Provider | Tfi Local Link Donegal Sligo Leitrim |
| Type | Bus | Distance | 4.0km | Stop | Letterkenny Shopping Centre | Route | 961 | Destination | Croithlí | Provider | Doherty's Coach Travel |
| Type | Bus | Distance | 4.0km | Stop | Atu Letterkenny | Route | 987 | Destination | Letterkenny Atu | Provider | Tfi Local Link Donegal Sligo Leitrim |
| Type | Bus | Distance | 4.0km | Stop | Atu Letterkenny | Route | 953 | Destination | Greencastle | Provider | Tfi Local Link Donegal Sligo Leitrim |
| Type | Bus | Distance | 4.0km | Stop | Atu Letterkenny | Route | 64 | Destination | Donegal | Provider | Bus Éireann |
Your Mortgage and Insurance Tools
Check off the steps to purchase your new home
Use our Buying Checklist to guide you through the whole home-buying journey.
Budget calculator
Calculate how much you can borrow and what you'll need to save
BER Details
Ad performance
- Date listed17/04/2026
- Views342
- Potential views if upgraded to an Advantage Ad557
Daft ID: 16528982