155 Loughside Road, Drumnasreane, Garrison, Enniskillen, Co. Fermanagh, Kinlough, Co. Leitrim
€40,000
- Selling Type:By Private Treaty
About this property
Description
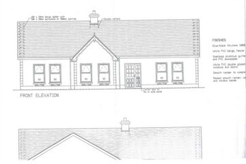
For sale by McGovern Estate Agents via the iamsold Bidding Platform Site for Sale with Full Planning Permission For a 4 Bed Bungalow sitting on approximately .8 Acre. Foundations built for the property, CLUD in place to confirm. Site is Overlooking Lough Melvin & Located only 1 mile to Garrison Village, 9 miles to Bundoran, 20 miles from Enniskillen. Shared driveway with another site. Option to purchase the additional site with FPP (check our website 159 Loughside Road) and/or 11 Acres of surrounding Agricultural Land. TO VIEW OR MAKE A BID Contact McGovern Estate Agents or iamsold NI, www.iamsoldni.com Auctioneer`s Comments This property is for sale under Traditional Auction terms. Should you view, offer or bid on the property, your information will be shared with the Auctioneer, iamsold. With this auction method, an immediate exchange of contracts takes place with completion of the purchase required to take place within 28 days from the date of exchange of contracts. The buyer is also required to make a payment of a non-refundable, part payment 10% Contract Deposit to a minimum of £6,000.00. In addition to their Contract Deposit, the Buyer must pay an Administration Fee to the Auctioneer of 1.80% of the final agreed sale price including VAT, subject to a minimum of £2,400.00 including VAT for conducting the auction. Buyers will be required to go through an identification verification process with iamsold and provide proof of how the purchase would be funded. Terms and conditions apply to the traditional auction method and you are required to check the Buyer Information Pack for any special terms and conditions associated with this lot. The property is subject to an undisclosed Reserve Price with both the Reserve Price and Starting Bid being subject to change. Notice Please note we have not tested any apparatus, fixtures, fittings, or services. Interested parties must undertake their own investigation into the working order of these items. All measurements are approximate and photographs provided for guidance only.
The local area
The local area
Sold properties in this area
Stay informed with market trends
Local schools and transport

Learn more about what this area has to offer.
School Name | Distance | Pupils | |||
|---|---|---|---|---|---|
| School Name | Rockfield National School | Distance | 4.0km | Pupils | 42 |
| School Name | Kilbarron National School | Distance | 6.9km | Pupils | 32 |
| School Name | Holy Family National School | Distance | 7.3km | Pupils | 183 |
School Name | Distance | Pupils | |||
|---|---|---|---|---|---|
| School Name | Scoil Chaitríona Ballyshannon | Distance | 7.3km | Pupils | 82 |
| School Name | Ballaghameehan National School | Distance | 7.4km | Pupils | 34 |
| School Name | Gaelscoil Éirne | Distance | 7.7km | Pupils | 28 |
| School Name | Creevy National School | Distance | 10.6km | Pupils | 224 |
| School Name | St Macartan's National School | Distance | 10.8km | Pupils | 282 |
| School Name | Four Masters National School | Distance | 10.8km | Pupils | 266 |
| School Name | Scoil Mhic Diarmada | Distance | 11.6km | Pupils | 17 |
School Name | Distance | Pupils | |||
|---|---|---|---|---|---|
| School Name | Coláiste Cholmcille | Distance | 7.4km | Pupils | 700 |
| School Name | Magh Ene College | Distance | 10.6km | Pupils | 354 |
| School Name | St. Clare's Comprehensive School | Distance | 16.6km | Pupils | 519 |
School Name | Distance | Pupils | |||
|---|---|---|---|---|---|
| School Name | Abbey Vocational School | Distance | 22.4km | Pupils | 999 |
| School Name | Grange Post Primary School | Distance | 26.7km | Pupils | 281 |
| School Name | Ballinode College | Distance | 28.8km | Pupils | 246 |
| School Name | Sligo Grammar School | Distance | 29.4km | Pupils | 495 |
| School Name | St. Catherine's Vocational School | Distance | 29.5km | Pupils | 366 |
| School Name | Mercy College | Distance | 30.0km | Pupils | 676 |
| School Name | Ursuline College | Distance | 30.4km | Pupils | 632 |
Type | Distance | Stop | Route | Destination | Provider | ||||||
|---|---|---|---|---|---|---|---|---|---|---|---|
| Type | Bus | Distance | 7.4km | Stop | Ballyshannon | Route | 964 | Destination | Galway Cathedral | Provider | Bus Feda Teoranta |
| Type | Bus | Distance | 7.4km | Stop | Ballyshannon | Route | 64 | Destination | Galway | Provider | Bus Éireann |
| Type | Bus | Distance | 7.4km | Stop | Ballyshannon | Route | 264 | Destination | Ballyshannon | Provider | Tfi Local Link Donegal Sligo Leitrim |
Type | Distance | Stop | Route | Destination | Provider | ||||||
|---|---|---|---|---|---|---|---|---|---|---|---|
| Type | Bus | Distance | 7.4km | Stop | Ballyshannon | Route | 982 | Destination | Sligo Station | Provider | Tfi Local Link Donegal Sligo Leitrim |
| Type | Bus | Distance | 7.4km | Stop | Ballyshannon | Route | 983 | Destination | Manorhamilton | Provider | Tfi Local Link Donegal Sligo Leitrim |
| Type | Bus | Distance | 7.4km | Stop | Ballyshannon | Route | 964 | Destination | Croithlí | Provider | Bus Feda Teoranta |
| Type | Bus | Distance | 7.4km | Stop | Ballyshannon | Route | 30 | Destination | Donegal | Provider | Bus Éireann |
| Type | Bus | Distance | 7.4km | Stop | Ballyshannon | Route | 64 | Destination | Derry | Provider | Bus Éireann |
| Type | Bus | Distance | 7.4km | Stop | Ballyshannon | Route | 264 | Destination | Letterkenny | Provider | Tfi Local Link Donegal Sligo Leitrim |
| Type | Bus | Distance | 9.0km | Stop | Finner | Route | 64 | Destination | Sligo | Provider | Bus Éireann |
Your Mortgage and Insurance Tools
Check off the steps to purchase your new home
Use our Buying Checklist to guide you through the whole home-buying journey.
Budget calculator
Calculate how much you can borrow and what you'll need to save
Ad performance
- Date listed02/03/2026
- Views56
- Potential views if upgraded to an Advantage Ad91
Similar properties
€220,000
39 Ross View, Bundoran, Bundoran, Co. Donegal, F94E4C23 Bed · 3 Bath · Semi-D€229,950
22 Dartry View, Kinlough, Kinlough, Co. Leitrim, F91T4A33 Bed · 2 Bath · Semi-D€249,000
Uragh, Tullaghan, Tullaghan, Co. Leitrim, F91N7993 Bed · 2 Bath · Detached€269,000
15 Melvin Fields, Kinlough, Kinlough, Co. Leitrim, F91V4X64 Bed · 3 Bath · Detached
Daft ID: 16510131
