Monclink, Manorcunningham, Co. Donegal
€50,000
- Selling Type:By Private Treaty
About Manorcunningham Monclink
Highlights
- 3 No. Sites x c.0.5 acre sites - €50,000 each
- Planning permission previously granted
- Ideally located between Letterkenny and Derry
- Enjoying far reaching country views
Description
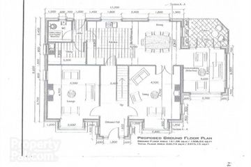
Enjoying far reaching country views. Planning permission has previously been granted for 3 x 2 storey house type, c. 2375 sq ft. The vendor will sell the sites subject to planning permission being granted. - 3 No. Sites x c.0.5 acre sites - €50,000 each - Planning permission previously granted for c, 2,375 sq ft attractive two storey house type - Ideally located between Letterkenny and Derry - Enjoying far reaching country views Disclaimer - The above particulars are issued by Glen Estates on the understanding that all negotiations are conducted through them. Information contained in the brochure does not form any part of any offer or contract and is provided in good faith, for guidance only. Glen estates have not tested any apparatus, fixtures, fittings, or services. Interested parties must undertake their own investigation into the working order of these items. Maps and plans are not to scale and measurements are approximate, photographs provided for guidance only. The particulars, descriptions, dimensions, references to condition, permissions or licences for use or occupation, access and any other details, such as prices, rents or any other outgoings are for guidance only and may be subject to change. Intending purchasers / tenants must satisfy themselves as to the accuracy of details provided to them either verbally or as part of this brochure. Neither Glen Estates or any of its employees have any authority to make or give any representation or warranty in respect of this property. Directions Directions: From Manorcunningham heading in direction of Newtowncunningham for approx 2 miles, at the commercial complex on the right hand side of the road, turn right and after 100 yards bear left. Continue on this road for 1 mile, turn right. The site is to be found after a short distance on left hand side.
The local area of Manorcunningham Monclink
Sold properties in this area
Stay informed with market trends
Local schools and transport

Learn more about what this area has to offer.
School Name | Distance | Pupils | |||
|---|---|---|---|---|---|
| School Name | Drumoghill National School | Distance | 1.7km | Pupils | 80 |
| School Name | Ray National School | Distance | 2.8km | Pupils | 60 |
| School Name | Magherabeg National School | Distance | 3.2km | Pupils | 117 |
School Name | Distance | Pupils | |||
|---|---|---|---|---|---|
| School Name | Moyle National School | Distance | 6.4km | Pupils | 80 |
| School Name | Castletown National School | Distance | 6.5km | Pupils | 63 |
| School Name | Scoil Cholmcille | Distance | 6.8km | Pupils | 210 |
| School Name | Woodland National School | Distance | 7.1km | Pupils | 476 |
| School Name | Glenmaquin National School | Distance | 7.3km | Pupils | 20 |
| School Name | S N Naomh Baoithin | Distance | 7.6km | Pupils | 106 |
| School Name | Lurgybrack National School | Distance | 7.6km | Pupils | 426 |
School Name | Distance | Pupils | |||
|---|---|---|---|---|---|
| School Name | The Royal And Prior School | Distance | 8.0km | Pupils | 611 |
| School Name | Deele College | Distance | 8.4km | Pupils | 831 |
| School Name | Coláiste Ailigh | Distance | 9.9km | Pupils | 321 |
School Name | Distance | Pupils | |||
|---|---|---|---|---|---|
| School Name | Errigal College | Distance | 10.0km | Pupils | 547 |
| School Name | Loreto Secondary School, Letterkenny | Distance | 10.3km | Pupils | 944 |
| School Name | St Eunan's College | Distance | 10.6km | Pupils | 1014 |
| School Name | Loreto Community School | Distance | 17.7km | Pupils | 807 |
| School Name | Mulroy College | Distance | 18.0km | Pupils | 628 |
| School Name | St Columbas College | Distance | 20.3km | Pupils | 949 |
| School Name | Finn Valley College | Distance | 20.5km | Pupils | 424 |
Type | Distance | Stop | Route | Destination | Provider | ||||||
|---|---|---|---|---|---|---|---|---|---|---|---|
| Type | Bus | Distance | 1.6km | Stop | Drumoghill | Route | 989 | Destination | Carrigans | Provider | Tfi Local Link Donegal Sligo Leitrim |
| Type | Bus | Distance | 3.0km | Stop | Manorcunningham | Route | 931 | Destination | Croithlí | Provider | Patrick Gallagher |
| Type | Bus | Distance | 3.0km | Stop | Manorcunningham | Route | 64 | Destination | Sligo | Provider | Bus Éireann |
Type | Distance | Stop | Route | Destination | Provider | ||||||
|---|---|---|---|---|---|---|---|---|---|---|---|
| Type | Bus | Distance | 3.0km | Stop | Manorcunningham | Route | 953 | Destination | Letterkenny | Provider | Tfi Local Link Donegal Sligo Leitrim |
| Type | Bus | Distance | 3.0km | Stop | Manorcunningham | Route | 480 | Destination | Derry | Provider | Bus Éireann |
| Type | Bus | Distance | 3.0km | Stop | Manorcunningham | Route | 959 | Destination | Greencastle | Provider | Tfi Local Link Donegal Sligo Leitrim |
| Type | Bus | Distance | 3.6km | Stop | Raymoghy | Route | 987 | Destination | Lifford | Provider | Tfi Local Link Donegal Sligo Leitrim |
| Type | Bus | Distance | 4.0km | Stop | Pluck | Route | 989 | Destination | Carrigans | Provider | Tfi Local Link Donegal Sligo Leitrim |
| Type | Bus | Distance | 5.9km | Stop | Carrickadawson | Route | 987 | Destination | Letterkenny Atu | Provider | Tfi Local Link Donegal Sligo Leitrim |
| Type | Bus | Distance | 6.3km | Stop | Dromore | Route | 989 | Destination | Letterkenny | Provider | Tfi Local Link Donegal Sligo Leitrim |
Your Mortgage and Insurance Tools
Check off the steps to purchase your new home
Use our Buying Checklist to guide you through the whole home-buying journey.
Budget calculator
Calculate how much you can borrow and what you'll need to save
Ad performance
- Date listed12/03/2026
- Views813
- Potential views if upgraded to an Advantage Ad1,325
Properties similar to Manorcunningham Monclink
€45,000
Castleblaugh, Newtown Cunningham, Co. DonegalSite€45,000
Monclink, Manorcunningham, Co. DonegalSite€75,000
Mondooey Upper, Manorcunningham, Co. DonegalSite€150,000
Ballylawn, Manorcunningham, Co. DonegalSite
€150,000
Manorcunnigham, Manorcunningham, Co. DonegalSite€160,000
Manorcunningham, Manorcunningham, Co. DonegalSite€175,000
205 Corkey, Manorcunningham, Manorcunningham, Co. Donegal, F92D8C94 Bed · 1 Bath · Semi-D€340,000
Aughlihard, Letterkenny, Letterkenny, Co. Donegal, F92NX394 Bed · 3 Bath · Bungalow€350,000
Dunduffsfort, Manorcunningham, Co. Donegal, F92HF835 Bed · 1 Bath · Semi-D€395,000
Sallybrook House , Monclink, Manorcunningham, Co. Donegal, F92FR9P4 Bed · 2 Bath · Detached€395,000
Monclink, Manorcunningham, Letterkenny, Co. Donegal, F92FR9P4 Bed · 2 Bath · Detached€495,000
Castledooey, Letterkenny, Co. Donegal, F92P4095 Bed · 3 Bath · Detached
Daft ID: 16518351
