Site At, Main Street, Oranmore, Co Galway
€220,000
- Selling Type:By Private Treaty
About this property
Description
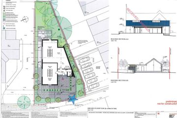
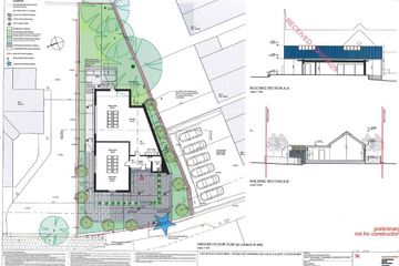
Commercial office development site with full grant planning permission for single storey 200 sq.m detached office building. Prime town centre location fronting directly onto the main street in Oranmore, site extends to 0.076H (0.187 acres) approx. Beside Oranmore library, opposite shops, restaurants, public houses, town car park and secondary school. Planning granted July 2025 by Galway County Council for a contemporary style single storey attractive self contained office building with landscaping, garden area and boundary treatments. Total floor area circa 200 sq.m. Ideal investment or owner occupier users. Further details from Sherry FitzGerald.
The local area
The local area
Sold properties in this area
Stay informed with market trends
Local schools and transport

Learn more about what this area has to offer.
School Name | Distance | Pupils | |||
|---|---|---|---|---|---|
| School Name | Scoil Íosa | Distance | 130m | Pupils | 743 |
| School Name | Scoil Íosa | Distance | 130m | Pupils | 743 |
| School Name | Gaelscoil De Hide | Distance | 430m | Pupils | 409 |
School Name | Distance | Pupils | |||
|---|---|---|---|---|---|
| School Name | Gaelscoil De Hide | Distance | 430m | Pupils | 409 |
| School Name | Merlin Woods Primary School | Distance | 4.0km | Pupils | 383 |
| School Name | Merlin Woods Primary School | Distance | 4.0km | Pupils | 383 |
| School Name | Maree National School | Distance | 4.2km | Pupils | 230 |
| School Name | Maree National School | Distance | 4.2km | Pupils | 230 |
| School Name | Brierhill National School | Distance | 4.5km | Pupils | 241 |
| School Name | Gaelscoil Dara | Distance | 5.6km | Pupils | 428 |
School Name | Distance | Pupils | |||
|---|---|---|---|---|---|
| School Name | Calasanctius College | Distance | 230m | Pupils | 925 |
| School Name | Calasanctius College | Distance | 230m | Pupils | 925 |
| School Name | Coláiste Mhuirlinne/merlin College | Distance | 4.0km | Pupils | 725 |
School Name | Distance | Pupils | |||
|---|---|---|---|---|---|
| School Name | Coláiste Mhuirlinne/merlin College | Distance | 4.0km | Pupils | 725 |
| School Name | Galway Educate Together Secondary School | Distance | 4.7km | Pupils | 350 |
| School Name | Galway Educate Together Secondary School | Distance | 4.7km | Pupils | 350 |
| School Name | Galway Community College | Distance | 7.1km | Pupils | 454 |
| School Name | Galway Community College | Distance | 7.1km | Pupils | 454 |
| School Name | Coláiste Bhaile Chláir | Distance | 7.5km | Pupils | 1315 |
| School Name | Coláiste Bhaile Chláir | Distance | 7.5km | Pupils | 1315 |
Type | Distance | Stop | Route | Destination | Provider | ||||||
|---|---|---|---|---|---|---|---|---|---|---|---|
| Type | Bus | Distance | 80m | Stop | Oranmore Centre | Route | 404 | Destination | Eyre Square | Provider | Bus Éireann |
| Type | Bus | Distance | 80m | Stop | Oranmore Centre | Route | 404 | Destination | Newcastle | Provider | Bus Éireann |
| Type | Bus | Distance | 80m | Stop | Oranmore Centre | Route | 404 | Destination | Eyre Square | Provider | Bus Éireann |
Type | Distance | Stop | Route | Destination | Provider | ||||||
|---|---|---|---|---|---|---|---|---|---|---|---|
| Type | Bus | Distance | 610m | Stop | Oranmore North | Route | 351 | Destination | Cliffs Of Moher | Provider | Tfi Local Link Limerick Clare |
| Type | Bus | Distance | 610m | Stop | Oranmore North | Route | 350 | Destination | Ennis | Provider | Bus Éireann |
| Type | Bus | Distance | 610m | Stop | Oranmore North | Route | 351 | Destination | Doolin Pier | Provider | Tfi Local Link Limerick Clare |
| Type | Bus | Distance | 610m | Stop | Oranmore North | Route | 51 | Destination | Limerick Bus Station | Provider | Bus Éireann |
| Type | Bus | Distance | 610m | Stop | Oranmore North | Route | 763 | Destination | Dublin Airport | Provider | Citylink |
| Type | Bus | Distance | 610m | Stop | Oranmore North | Route | 434 | Destination | Gort | Provider | Bus Éireann |
| Type | Bus | Distance | 610m | Stop | Oranmore North | Route | 351 | Destination | Ballyvaughan | Provider | Tfi Local Link Limerick Clare |
Your Mortgage and Insurance Tools
Check off the steps to purchase your new home
Use our Buying Checklist to guide you through the whole home-buying journey.
Budget calculator
Calculate how much you can borrow and what you'll need to save
Ad performance
- Date listed08/10/2025
- Views4,413
- Potential views if upgraded to an Advantage Ad7,193
Similar properties
AMV: €230,000
Apartment 175, Boireann Bheag, Roscam, Co. Galway, H91YW281 Bed · 1 Bath · Apartment€250,000
80 Frenchpark, Oranmore, Galway, H91F5442 Bed · 2 Bath · Apartment€295,000
Apartment 59, Riverdale, Oranmore, Co. Galway, H91RD232 Bed · 2 Bath · Apartment€325,000
Main Street, Oranmore, Co. Galway, H91N67X5 Bed · 2 Bath · Bungalow
€328,000
24 Renville Village, Oranmore, Rinville, Co. Galway, H91CVH62 Bed · 3 Bath · Semi-D€350,000
Apartment 58, Tuairin, Rosshill, Co. Galway, H91AKR32 Bed · 2 Bath · Apartment€355,000
Apt 111, Sraith Fhada, Doughiska, Co. Galway, H91XY543 Bed · 3 Bath · Townhouse€360,000
70 Garrán Ard, Doughiska, Briarhill, Co. Galway, H91P5RX3 Bed · 3 Bath · Terrace€395,000
87 Duirling, Roscam, Co. Galway, H91AKF73 Bed · 2 Bath · End of Terrace€410,000
66 Caiseal Cam, Roscam, Co. Galway, H91YK353 Bed · 3 Bath · Duplex€415,000
220, Boreann Bheag, Roscam, Co. Galway, H91VX543 Bed · 3 Bath · Duplex€430,000
22 Clochóg, Oranmore, Galway, Co. Galway, H91E0Y93 Bed · 1 Bath · Semi-D
Daft ID: 16278610