Site, Seaview, Kilpedder, Co. Wicklow
€250,000
- Selling Type:By Private Treaty
About this property
Description
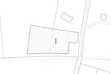
DNG Greystones is delighted to bring to the market this site of approx. 1 acre at Seaview in Kilpedder. The site is being sold subject to planning permission and Section 47 condition (Proven local needs) will apply. Please refer to Wicklow County Council for information on whether you are eligible. The site is broadly flat, regular shaped and enjoys a superbly sunny southerly aspect and boasts stunning views across the neighbouring farmland. The site is wonderfully convenient to a number of towns and villages with a huge selection of amenities close by being positioned just 700m from the N11 at the junction for Kilquade, 3.7km km to Newtownmountkennedy 4.3km to Kilcoole, 3.7km to Delgany and 6.5km to Greystones. The site offers a wonderful opportunity for someone to build their dream home in a rather wonderful location. Features 1 Acre site Being sold subject to planning Section 47 conditions will most likely apply Enjoys lovely farmland views Convenient location to a number of villages GPS Co-ordinates 53.110392, -6.095681
The local area
The local area
Sold properties in this area
Stay informed with market trends
Local schools and transport

Learn more about what this area has to offer.
School Name | Distance | Pupils | |||
|---|---|---|---|---|---|
| School Name | Kilcoole Primary School | Distance | 1.9km | Pupils | 575 |
| School Name | Kilcoole Primary School | Distance | 1.9km | Pupils | 575 |
| School Name | Woodstock Educate Together National School | Distance | 2.5km | Pupils | 117 |
School Name | Distance | Pupils | |||
|---|---|---|---|---|---|
| School Name | Woodstock Educate Together National School | Distance | 2.5km | Pupils | 117 |
| School Name | Delgany National School | Distance | 2.6km | Pupils | 207 |
| School Name | Delgany National School | Distance | 2.6km | Pupils | 207 |
| School Name | Newtownmountkennedy Primary School | Distance | 2.6km | Pupils | 365 |
| School Name | Newtownmountkennedy Primary School | Distance | 2.6km | Pupils | 365 |
| School Name | Greystones Community National School | Distance | 3.3km | Pupils | 411 |
| School Name | Greystones Community National School | Distance | 3.3km | Pupils | 411 |
School Name | Distance | Pupils | |||
|---|---|---|---|---|---|
| School Name | Colaiste Chraobh Abhann | Distance | 2.3km | Pupils | 774 |
| School Name | Colaiste Chraobh Abhann | Distance | 2.3km | Pupils | 774 |
| School Name | Greystones Community College | Distance | 3.0km | Pupils | 630 |
School Name | Distance | Pupils | |||
|---|---|---|---|---|---|
| School Name | Greystones Community College | Distance | 3.0km | Pupils | 630 |
| School Name | St David's Holy Faith Secondary | Distance | 4.6km | Pupils | 772 |
| School Name | St David's Holy Faith Secondary | Distance | 4.6km | Pupils | 772 |
| School Name | Temple Carrig Secondary School | Distance | 4.8km | Pupils | 946 |
| School Name | Temple Carrig Secondary School | Distance | 4.8km | Pupils | 946 |
| School Name | St. Kilian's Community School | Distance | 8.6km | Pupils | 416 |
| School Name | St. Kilian's Community School | Distance | 8.6km | Pupils | 416 |
Type | Distance | Stop | Route | Destination | Provider | ||||||
|---|---|---|---|---|---|---|---|---|---|---|---|
| Type | Bus | Distance | 610m | Stop | Kilpeddar Grove | Route | 131 | Destination | Wicklow | Provider | Bus Éireann |
| Type | Bus | Distance | 610m | Stop | Kilpeddar Grove | Route | L1 | Destination | Newtownmountkennedy | Provider | Go-ahead Ireland |
| Type | Bus | Distance | 610m | Stop | Kilpeddar Grove | Route | 133 | Destination | Wicklow | Provider | Bus Éireann |
Type | Distance | Stop | Route | Destination | Provider | ||||||
|---|---|---|---|---|---|---|---|---|---|---|---|
| Type | Bus | Distance | 680m | Stop | Kilpedder Footbridge | Route | 131 | Destination | Drop Off | Provider | Bus Éireann |
| Type | Bus | Distance | 680m | Stop | Kilpedder Footbridge | Route | 133 | Destination | Drop Off | Provider | Bus Éireann |
| Type | Bus | Distance | 680m | Stop | Kilpedder Footbridge | Route | 131 | Destination | Drop Off | Provider | Bus Éireann |
| Type | Bus | Distance | 680m | Stop | Kilpedder Footbridge | Route | 133 | Destination | Dublin | Provider | Bus Éireann |
| Type | Bus | Distance | 680m | Stop | Kilpedder Footbridge | Route | L1 | Destination | Bray Station | Provider | Go-ahead Ireland |
| Type | Bus | Distance | 880m | Stop | Glenview Park | Route | 133 | Destination | Dublin | Provider | Bus Éireann |
| Type | Bus | Distance | 880m | Stop | Glenview Park | Route | L1 | Destination | Bray Station | Provider | Go-ahead Ireland |
Your Mortgage and Insurance Tools
Check off the steps to purchase your new home
Use our Buying Checklist to guide you through the whole home-buying journey.
Budget calculator
Calculate how much you can borrow and what you'll need to save
Ad performance
- Date listed08/10/2025
- Views10,320
- Potential views if upgraded to an Advantage Ad16,822
Similar properties
€275,000
Bridge Cottage, Kilmacullagh, Newtownmountkennedy, Newtownmountkennedy, Co. Wicklow, A63AK75Site€285,000
Convent Lodge, Main Street, Kilcoole, Kilcoole, Co. Wicklow, A63Y4362 Bed · 1 Bath · Bungalow€395,000
Apartment 71 , Priory Court, Eden Gate, Delgany, Delgany, Co. Wicklow, A63HX372 Bed · 2 Bath · Apartment€395,000
43 Barleyfield, Wicklow Hills, Newtownmountkennedy, Co Wicklow, A63X2782 Bed · 2 Bath · Terrace
€420,000
32 Bayview Close, Kilcoole, Co Wicklow, A63EW943 Bed · 2 Bath · Semi-D€425,000
42 Bramble Corner, Kilcoole, Kilcoole, Co. Wicklow, A63ER813 Bed · 2 Bath · Semi-D€425,000
182 Season Park, Newtownmountkennedy, Co. Wicklow, A63K3043 Bed · 2 Bath · Semi-D€435,000
24 Sylvan Lawns, Kilcoole, Co. Wicklow, A63KW813 Bed · 2 Bath · Semi-D€460,000
Alderwood At Altidore Gardens, Newtownmountkennedy, Co. Wicklow2 Bed · 3 Bath · Terrace€475,000
35 Monalin, Wicklow Hills, Newtownmountkennedy, Co. Wicklow, A63KD293 Bed · 3 Bath · Semi-D€475,000
48 Monalin, Wicklow Hills, Newtownmountkennedy, Co Wicklow, A63WE283 Bed · 3 Bath · Terrace€480,000
33 Barleyfield, Wicklow Hills, Newtownmountkennedy, Newtownmountkennedy, Co. Wicklow, A63NY503 Bed · 3 Bath · Terrace
Daft ID: 16024150