Swiss Cottage, Bray Road, Enniskerry, Enniskerry, Co. Wicklow, A98D683
€400,000
- Selling Type:By Private Treaty
About this property
Highlights
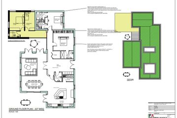
- FPP For Two single Storey Detached dwellings. House A 182 sq.m House B 182 sq.m.
- Ideally located on the Bray Road minutes from Enniskerry Village & The N11 / M50 motorway.
- Site Area 1.012 acre / 0.4095 hectare.
- Wicklow County Council Planning ref 23/60277
- Development Contributions noted at €13,000 per unit €26,000 total.
Description
Site @ Swiss Cottage, Bray Road, Enniskerry, Co Wicklow. A superbly located 1.012 acre / 0.4095 hectare plot with full planning permission (Wicklow County Council ref 23/60277) for two single storey 2 bedroom detached dwellings. Development contributions noted as €13,000 per unit (€26,000.00). House Type A. 182 sq.m in Size. (Exempted development potential additional 34 sq.m 2 bed 1 bath) House Type B 182 sq.m in size. (Exempted development potential additional 40sq.m 2 bed 1 bath) Situated on the Bray Road, Enniskerry 5 minutes from Enniskerry Village, the N11 / M50 motorways. Additional information available in PDF attachments or upon request.
The local area
The local area
Sold properties in this area
Stay informed with market trends
Local schools and transport
Learn more about what this area has to offer.
School Name | Distance | Pupils | |||
---|---|---|---|---|---|
School Name | Powerscourt National School | Distance | 350m | Pupils | 95 |
School Name | Enniskerry National School | Distance | 670m | Pupils | 207 |
School Name | Bray School Project National School | Distance | 2.6km | Pupils | 231 |
School Name | Distance | Pupils | |||
---|---|---|---|---|---|
School Name | St Fergal's National School | Distance | 2.7km | Pupils | 391 |
School Name | St Kierans Spec Sch | Distance | 2.9km | Pupils | 0 |
School Name | Kilmacanogue National School | Distance | 3.1km | Pupils | 224 |
School Name | Curtlestown National School | Distance | 3.3km | Pupils | 58 |
School Name | St. Peter's Primary School | Distance | 3.5km | Pupils | 155 |
School Name | Marino Community Special School | Distance | 3.7km | Pupils | 52 |
School Name | Gaelscoil Uí Chéadaigh | Distance | 3.8km | Pupils | 188 |
School Name | Distance | Pupils | |||
---|---|---|---|---|---|
School Name | St. Gerard's School | Distance | 2.3km | Pupils | 620 |
School Name | St. Kilian's Community School | Distance | 2.6km | Pupils | 417 |
School Name | John Scottus Secondary School | Distance | 3.3km | Pupils | 197 |
School Name | Distance | Pupils | |||
---|---|---|---|---|---|
School Name | Woodbrook College | Distance | 3.9km | Pupils | 604 |
School Name | Loreto Secondary School | Distance | 3.9km | Pupils | 735 |
School Name | St Thomas' Community College | Distance | 4.0km | Pupils | 14 |
School Name | Pres Bray | Distance | 4.2km | Pupils | 649 |
School Name | Coláiste Raithín | Distance | 4.2km | Pupils | 342 |
School Name | North Wicklow Educate Together Secondary School | Distance | 4.5km | Pupils | 325 |
School Name | Stepaside Educate Together Secondary School | Distance | 6.3km | Pupils | 659 |
Type | Distance | Stop | Route | Destination | Provider | ||||||
---|---|---|---|---|---|---|---|---|---|---|---|
Type | Bus | Distance | 370m | Stop | Cookstown | Route | L15 | Destination | Enniskerry | Provider | Go-ahead Ireland |
Type | Bus | Distance | 400m | Stop | Enniskerry Village | Route | 44 | Destination | Enniskerry | Provider | Dublin Bus |
Type | Bus | Distance | 400m | Stop | Enniskerry Village | Route | 185t | Destination | Southern Cross | Provider | Go-ahead Ireland |
Type | Distance | Stop | Route | Destination | Provider | ||||||
---|---|---|---|---|---|---|---|---|---|---|---|
Type | Bus | Distance | 400m | Stop | Enniskerry Village | Route | L15 | Destination | Bray Station | Provider | Go-ahead Ireland |
Type | Bus | Distance | 420m | Stop | Enniskerry Village | Route | 44 | Destination | Dundrum Road | Provider | Dublin Bus |
Type | Bus | Distance | 420m | Stop | Enniskerry Village | Route | 44 | Destination | Dcu | Provider | Dublin Bus |
Type | Bus | Distance | 420m | Stop | Enniskerry Village | Route | 44 | Destination | Enniskerry | Provider | Dublin Bus |
Type | Bus | Distance | 420m | Stop | Enniskerry Village | Route | L15 | Destination | Enniskerry | Provider | Go-ahead Ireland |
Type | Bus | Distance | 440m | Stop | Cookstown | Route | 185t | Destination | Southern Cross | Provider | Go-ahead Ireland |
Type | Bus | Distance | 440m | Stop | Cookstown | Route | L15 | Destination | Bray Station | Provider | Go-ahead Ireland |
Your Mortgage and Insurance Tools
Check off the steps to purchase your new home
Use our Buying Checklist to guide you through the whole home-buying journey.
Budget calculator
Calculate how much you can borrow and what you'll need to save
Statistics
- 14/10/2025Entered
- 8,092Property Views
- 13,190
Potential views if upgraded to a Daft Advantage Ad
Learn How
Similar properties
€370,000
Apartment 20, La Vallee, Upper Dargle Road, Co. Wicklow, A98RW672 Bed · 1 Bath · Apartment€430,000
1 Ballybawn Cottages, Kilmacanogue, Co. Wicklow, A98EE372 Bed · 1 Bath · Semi-D€460,000
53 Ashton Wood, Bray, Co. Wicklow, A98ED783 Bed · 1 Bath · Semi-D€475,000
27 Monastery Grove, Enniskerry, Enniskerry, Co. Wicklow, A98F2423 Bed · 2 Bath · Terrace
€485,000
19 Saran Wood, Bray, Bray, Co. Wicklow, A98AC603 Bed · 2 Bath · Terrace€495,000
Site with O.P.P., Enniskerry, Co. Wicklow, A98V091Site€495,000
Site With F.P.P, Site 2 @ Cedarbrook, Fassaroe Avenue, Bray, Co. Wicklow, A98CX34Site€500,000
Garden Site, Violet Hill House, Herbert Road, Bray, Co. Wicklow, A98T9C2Site€535,000
31 Richmond Park, Co. Wicklow, A98K5193 Bed · 1 Bath · Semi-D€569,950
54 Ashton Wood, Bray, Bray, Co. Wicklow, A98FC823 Bed · 3 Bath · Semi-D€575,000
7 Saran Wood, Bray, Bray, Co. Wicklow, A98C8973 Bed · 3 Bath · Terrace€595,000
Site With F.P.P., Site 1 @ Cedarbrook, Fassaroe Avenue, Bray, Co. Wicklow, A98CX34Site
Daft ID: 16181384