The Grange, Ballyboughal, Co. Dublin
€270,000
- Selling Type:By Private Treaty
About this property
Description
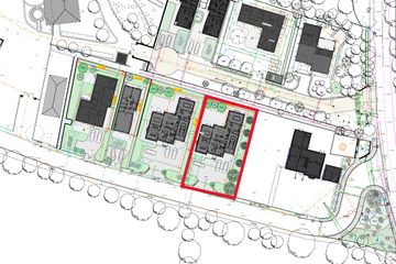
The Grange, Ballyboughal, Co. Dublin Prime Residential Site for Sale – With Full Planning Permission. An exceptional opportunity to acquire a fully serviced site with full planning permission in the charming village setting of Ballyboughal, Co. Dublin. Located within walking distance of Ballyboughal village, this boutique development offers a blend of countryside living with easy access to Dublin city, the M1, and Dublin Airport. Larger site - €270,000: Full planning permission for detached c.288 m2 4/5-bedroom home, with an office (or option for 5 bedroom) and garage. This home has been thoughtfully designed to offer modern, spacious living, ideal for families or professionals seeking a peaceful rural community while staying close to the city. Highlights: Site with full planning permission for detached house Attractive village location within walking distance of amenities Short drive to M1, M50, Swords & Dublin Airport Quiet and scenic countryside setting in North County Dublin A rare opportunity to develop or build your dream home in a sought-after Fingal location. Directions from Ballyboughal Village. (Next to A41 A039 / For directions) Start at Mace Ballyboughal and head south on Main St/R108 towards Patrick's Grange Continue to follow R108 for 0.4 of a mile Turn right onto the restricted-usage road, and the sites will be on your left.
The local area
The local area
Sold properties in this area
Stay informed with market trends
Local schools and transport

Learn more about what this area has to offer.
School Name | Distance | Pupils | |||
|---|---|---|---|---|---|
| School Name | Ballyboughal National School | Distance | 1.1km | Pupils | 217 |
| School Name | Rolestown National School | Distance | 3.0km | Pupils | 358 |
| School Name | Oldtown National School | Distance | 3.6km | Pupils | 62 |
School Name | Distance | Pupils | |||
|---|---|---|---|---|---|
| School Name | Gaelscoil Bhrian Bóroimhe | Distance | 4.4km | Pupils | 444 |
| School Name | Swords Educate Together National School | Distance | 4.5km | Pupils | 405 |
| School Name | Thornleigh Educate Together National School | Distance | 5.0km | Pupils | 299 |
| School Name | Corduff National School | Distance | 5.2km | Pupils | 90 |
| School Name | Broadmeadow Community National School | Distance | 5.2km | Pupils | 71 |
| School Name | Hedgestown National School | Distance | 5.9km | Pupils | 67 |
| School Name | St Cronan's Jns | Distance | 6.2km | Pupils | 499 |
School Name | Distance | Pupils | |||
|---|---|---|---|---|---|
| School Name | Swords Community College | Distance | 5.9km | Pupils | 930 |
| School Name | St. Finian's Community College | Distance | 5.9km | Pupils | 661 |
| School Name | Loreto College Swords | Distance | 6.6km | Pupils | 632 |
School Name | Distance | Pupils | |||
|---|---|---|---|---|---|
| School Name | Fingal Community College | Distance | 6.6km | Pupils | 866 |
| School Name | Coláiste Choilm | Distance | 7.2km | Pupils | 425 |
| School Name | Lusk Community College | Distance | 7.7km | Pupils | 1081 |
| School Name | Ashbourne Community School | Distance | 7.9km | Pupils | 1111 |
| School Name | Malahide & Portmarnock Secondary School | Distance | 8.4km | Pupils | 607 |
| School Name | Donabate Community College | Distance | 8.7km | Pupils | 813 |
| School Name | De Lacy College | Distance | 9.0km | Pupils | 913 |
Type | Distance | Stop | Route | Destination | Provider | ||||||
|---|---|---|---|---|---|---|---|---|---|---|---|
| Type | Bus | Distance | 930m | Stop | Ballyboughal | Route | 192 | Destination | Balbriggan | Provider | Tfi Local Link Louth Meath Fingal |
| Type | Bus | Distance | 930m | Stop | Ballyboughal | Route | 192 | Destination | Swords | Provider | Tfi Local Link Louth Meath Fingal |
| Type | Bus | Distance | 1.1km | Stop | Ballyboughal | Route | 195 | Destination | Ashbourne | Provider | Tfi Local Link Louth Meath Fingal |
Type | Distance | Stop | Route | Destination | Provider | ||||||
|---|---|---|---|---|---|---|---|---|---|---|---|
| Type | Bus | Distance | 1.1km | Stop | Ballyboughal | Route | 195 | Destination | Ballyboughal | Provider | Tfi Local Link Louth Meath Fingal |
| Type | Bus | Distance | 1.1km | Stop | Ballyboughal | Route | 195 | Destination | Balbriggan | Provider | Tfi Local Link Louth Meath Fingal |
| Type | Bus | Distance | 2.3km | Stop | Skidoo | Route | 192 | Destination | Balbriggan | Provider | Tfi Local Link Louth Meath Fingal |
| Type | Bus | Distance | 2.3km | Stop | Skidoo | Route | 192 | Destination | Swords | Provider | Tfi Local Link Louth Meath Fingal |
| Type | Bus | Distance | 2.8km | Stop | Roganstown | Route | 192 | Destination | Balbriggan | Provider | Tfi Local Link Louth Meath Fingal |
| Type | Bus | Distance | 2.8km | Stop | Roganstown | Route | 192 | Destination | Swords | Provider | Tfi Local Link Louth Meath Fingal |
| Type | Bus | Distance | 2.8km | Stop | Westpalstown | Route | 195 | Destination | Ballyboughal | Provider | Tfi Local Link Louth Meath Fingal |
Your Mortgage and Insurance Tools
Check off the steps to purchase your new home
Use our Buying Checklist to guide you through the whole home-buying journey.
Budget calculator
Calculate how much you can borrow and what you'll need to save
Statistics
- 09/01/2026Entered
- 519Property Views
- 846
Potential views if upgraded to a Daft Advantage Ad
Learn How
Similar properties
€245,000
Apartment 27, Lincoln Hall, Swords, Co. Dublin, K67HK712 Bed · 2 Bath · Apartment€250,000
Site C at Rolestown, Swords, Co. DublinSite€265,000
Cottage On Skerries Road, Greatcommon, Lusk, Co. Dublin, K45T1022 Bed · 1 Bath · House€269,000
6 Cruises Hill, Naul Village, Naul, Co. Dublin2 Bed · 2 Bath · Apartment
€275,000
Apartment 4, Cedar House, 45 Applewood Main Street, Applewood, Swords, Co. Dublin, K67YW272 Bed · 2 Bath · Apartment€285,000
Apartment 2, Chestnut House, 23 Applewood Square, Applewood, Swords, Co. Dublin, K67A0312 Bed · 2 Bath · Apartment€295,000
4 Cruise's Hill, Main Street, Naul Village, Naul, Co. Dublin, K32WK232 Bed · 2 Bath · Apartment€295,000
47 Chapel Farm Road, Lusk, Co. Dublin, K45YT212 Bed · 3 Bath · End of Terrace€295,000
12 Applewood Mews, Swords, Co. Dublin, K67CV662 Bed · 1 Bath · Duplex€300,000
Land At Man O War, Courtlough, Lusk, Co. DubinSite€320,000
34 Applewood Avenue West, Applewood, Swords, Co. Dublin, K67XY932 Bed · 1 Bath · Apartment€325,000
27 Chapel Farm Drive, Lusk, Lusk, Co. Dublin, K45DD523 Bed · 3 Bath · Terrace
Daft ID: 16468374
