60 Ferrycarrig Road, Coolock, Coolock, Dublin 17, D17FF66
€425,000
- Selling Type:By Private Treaty
About this property
Highlights
- Spacious layout
- Parking available for two cars
- Built-in wardrobes
- Expansive rear garden
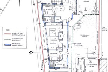
- Planning permission for a separate three-bedroom bungalow (Planning reference- 4299/24)
Description
Auctioneera is delighted to present 60 Ferrycarrig Road, Coolock in Dublin. An existing property with a site that has full planning permission for a separate three-bedroom bungalow. Set in a quiet residential pocket in the heart of Coolock, this property offers a fantastic blank canvas for buyers to personalise and create a warm, functional family space. With its classic brick façade, mature front garden, and private driveway, the home enjoys strong kerb appeal and off-street parking convenience. Notably, the property at No. 60 Ferrycarrig Road, Coolock comes with full planning permission for the subdivision of the existing site into two separate plots. The newly formed site, situated to the rear and side of the existing two-storey end-of-terrace dwelling, is approved for the construction of a single-storey, three-bedroom bungalow extending to approximately 100 sq m (1,076 sq ft) for private residential use. Each of the homes — both existing and proposed — will benefit from its own private enclosed rear garden and a dedicated car parking space to the front, accessed via the existing site entrance and driveway. This offers a rare and exciting opportunity for investment, multigenerational living, or future expansion. Inside, the ground floor features a bright and spacious living area that seamlessly flows into the dining space — ideal for family gatherings and entertaining. The adjoining kitchen is well laid out, offering ample cabinetry and worktop space, perfect for day-to-day cooking and meal prep. A ground-floor bathroom completes this level, offering practicality for busy households. Upstairs, the property comprises three well-proportioned bedrooms, each designed to accommodate modern living needs. The main bedroom is spacious and bright, easily fitting a large bed and additional furniture, with built-in wardrobes providing excellent storage. The second bedroom, also a double, is ideal for guests, children, or a home office setup, while the third bedroom offers flexibility — perfect as a nursery, study, or a cosy single room. All bedrooms benefit from large windows that allow for plenty of natural light, creating a bright and inviting atmosphere throughout the upper level. At the rear, the expansive garden offers a peaceful and private outdoor retreat — an ideal haven for children to play freely, pets to roam safely, or gardening enthusiasts to create their own green sanctuary. Whether you're envisioning weekend barbecues, a vegetable patch, or simply a quiet space to unwind, this generous outdoor area provides endless possibilities for relaxation and recreation. The location is a key highlight. Ferrycarrig Road is within walking distance of Coolock Village, with its selection of shops, schools, and sports clubs. Public transport is easily accessible, with multiple bus routes nearby and quick access to main roadways, making commuting to the city centre straightforward. Whether you're a first-time buyer looking for a welcoming home in a family-friendly area or an investor seeking a property with development potential, 60 Ferrycarrig Road offers both value and versatility in a well-connected Dublin neighbourhood.
The local area
The local area
Sold properties in this area
Stay informed with market trends
Local schools and transport

Learn more about what this area has to offer.
School Name | Distance | Pupils | |||
|---|---|---|---|---|---|
| School Name | St Joseph's National School Coolock | Distance | 230m | Pupils | 295 |
| School Name | Darndale National School Junior | Distance | 530m | Pupils | 159 |
| School Name | Our Lady Immac Sen National School | Distance | 570m | Pupils | 184 |
School Name | Distance | Pupils | |||
|---|---|---|---|---|---|
| School Name | St Francis Js Priorswood | Distance | 660m | Pupils | 171 |
| School Name | St Francis Senior National School | Distance | 730m | Pupils | 195 |
| School Name | Ayrfield Sen National School | Distance | 1.1km | Pupils | 224 |
| School Name | St Pauls Junior National School | Distance | 1.1km | Pupils | 232 |
| School Name | Scoil Fhursa | Distance | 1.4km | Pupils | 185 |
| School Name | Scoil Íde Girls National School | Distance | 1.4km | Pupils | 156 |
| School Name | Scoil Chaitriona Infants | Distance | 1.5km | Pupils | 194 |
School Name | Distance | Pupils | |||
|---|---|---|---|---|---|
| School Name | Coolock Community College | Distance | 900m | Pupils | 192 |
| School Name | Chanel College | Distance | 1.2km | Pupils | 466 |
| School Name | Mercy College Coolock | Distance | 1.4km | Pupils | 420 |
School Name | Distance | Pupils | |||
|---|---|---|---|---|---|
| School Name | Donahies Community School | Distance | 1.9km | Pupils | 494 |
| School Name | St. Mary's Secondary School | Distance | 2.2km | Pupils | 319 |
| School Name | Ardscoil La Salle | Distance | 2.3km | Pupils | 296 |
| School Name | St. David's College | Distance | 2.3km | Pupils | 505 |
| School Name | Our Lady Of Mercy College | Distance | 2.4km | Pupils | 379 |
| School Name | Belmayne Educate Together Secondary School | Distance | 2.8km | Pupils | 530 |
| School Name | Manor House School | Distance | 2.8km | Pupils | 669 |
Type | Distance | Stop | Route | Destination | Provider | ||||||
|---|---|---|---|---|---|---|---|---|---|---|---|
| Type | Bus | Distance | 210m | Stop | Belcamp Avenue | Route | 27x | Destination | Clare Hall | Provider | Dublin Bus |
| Type | Bus | Distance | 270m | Stop | Ferrycarrig Park | Route | 27 | Destination | Clare Hall | Provider | Dublin Bus |
| Type | Bus | Distance | 280m | Stop | Ferrycarrig Park | Route | 27x | Destination | Ucd | Provider | Dublin Bus |
Type | Distance | Stop | Route | Destination | Provider | ||||||
|---|---|---|---|---|---|---|---|---|---|---|---|
| Type | Bus | Distance | 330m | Stop | Marigold Road | Route | 27 | Destination | Eden Quay | Provider | Dublin Bus |
| Type | Bus | Distance | 330m | Stop | Marigold Road | Route | 27 | Destination | Jobstown | Provider | Dublin Bus |
| Type | Bus | Distance | 370m | Stop | Greencastle Avenue | Route | 27 | Destination | Eden Quay | Provider | Dublin Bus |
| Type | Bus | Distance | 400m | Stop | Marigold Road | Route | 27x | Destination | Clare Hall | Provider | Dublin Bus |
| Type | Bus | Distance | 410m | Stop | Glin Avenue | Route | 27x | Destination | Clare Hall | Provider | Dublin Bus |
| Type | Bus | Distance | 410m | Stop | Glin Avenue | Route | 27 | Destination | Clare Hall | Provider | Dublin Bus |
| Type | Bus | Distance | 420m | Stop | Glin Road | Route | 27x | Destination | Clare Hall | Provider | Dublin Bus |
Your Mortgage and Insurance Tools
Check off the steps to purchase your new home
Use our Buying Checklist to guide you through the whole home-buying journey.
Budget calculator
Calculate how much you can borrow and what you'll need to save
Ad performance
- Date listed27/06/2025
- Views4,134
- Potential views if upgraded to an Advantage Ad6,738
Similar properties
€385,000
16b Dundaniel Road, Dublin 5, Kilmore, Dublin 5, D05A5X43 Bed · 1 Bath · Terrace€395,000
40 Adare Drive, Coolock, Dublin 17, D17PA893 Bed · 2 Bath · End of Terrace€395,000
16A Templeview Place, Clarehall, Dublin 132 Bed · 2 Bath · Bungalow€395,000
59 Cromcastle Drive, Dublin 5, Kilmore, Dublin 5, D05YT683 Bed · 1 Bath · Terrace
€399,000
59a Kilmore Drive, Artane, Dublin 5, D05VH502 Bed · 2 Bath · Detached€399,950
67 Ardara Avenue, Donaghmede, Dublin 13, D13W2H23 Bed · 1 Bath · Semi-D€410,000
81 Newbury Avenue, Dublin 17, Clonshaugh, Dublin 17, D17DY843 Bed · 1 Bath · Detached€415,000
42 Millwood Park, Dublin 5, Edenmore, Dublin 5, D05T2773 Bed · 1 Bath · Detached€425,000
60 Ferrycarrig Road, Coolock, Co. Dublin, D17FF663 Bed · 1 Bath · End of Terrace€425,000
7 Coolgariff Road, Dublin 9, Beaumont, Dublin 9, D09KD283 Bed · 1 Bath · Semi-D€425,000
17 Oak View, Santry, Dublin 9, D09E7K43 Bed · 1 Bath · End of Terrace€425,000
Grace Dale, Limekiln Lane, Balgriffin, Dublin 13, D17TT55Site
Daft ID: 122172307