Ardnawark, Donegal Town , Donegal Town, Co. Donegal
€60,000
- Selling Type:By Private Treaty
About this property
Description
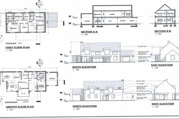
Ardnawark, Barnesmore, Donegal Town 2 No. Excellent Residential Sites With Full Planning Permission Granted Situate just 425 metres off the Donegal Town / Letterkenny N15 Roadway, only 1.5 km from the famous “Biddy’s O’Barnes” Bar & Restaurant & 8.5 km north of Donegal Town. Site No. 1. Extending to 0.487 hectares (1.20 acres) Planning Ref. 23/50621 Full Planning Granted Dec 2023 for - Two Storey Detached - 293.37 sq.m. (3156 sq.ft.) Ground Floor. Living Room, Living / Kitchen / Dining, Utility, 1 No. Bedroom (en-suite) & Garage First Floor. 4 No. Bedrooms (2 en-suite), Office & Bathroom Site No. 2 Extending to 0.503 hectares (1.24 acres) Planning Ref. 23/50620 Full Planning Granted Dec 2023 for - Two Storey Detached - 293.37 sq.m. (3156 sq.ft.) Ground Floor. Living Room, Living / Kitchen / Dining, Utility, 1 No. Bedroom (en-suite) & Garage First Floor. 4 No. Bedrooms (2 en-suite), Office & Bathroom Price Guide per Site - € 60,000
The local area
The local area
Sold properties in this area
Stay informed with market trends
Local schools and transport

Learn more about what this area has to offer.
School Name | Distance | Pupils | |||
|---|---|---|---|---|---|
| School Name | St Francis National School | Distance | 3.4km | Pupils | 163 |
| School Name | St Francis National School | Distance | 3.4km | Pupils | 163 |
| School Name | Killymard National School | Distance | 8.2km | Pupils | 266 |
School Name | Distance | Pupils | |||
|---|---|---|---|---|---|
| School Name | Killymard National School | Distance | 8.2km | Pupils | 266 |
| School Name | Scoil Aodh Rua Agus Nuala | Distance | 8.8km | Pupils | 235 |
| School Name | Scoil Aodh Rua Agus Nuala | Distance | 8.8km | Pupils | 235 |
| School Name | Gaelscoil Na Gceithre Maistri | Distance | 9.5km | Pupils | 54 |
| School Name | Gaelscoil Na Gceithre Maistri | Distance | 9.5km | Pupils | 54 |
| School Name | Glebe National School | Distance | 9.6km | Pupils | 121 |
| School Name | Glebe National School | Distance | 9.6km | Pupils | 121 |
School Name | Distance | Pupils | |||
|---|---|---|---|---|---|
| School Name | Abbey Vocational School | Distance | 9.9km | Pupils | 999 |
| School Name | Abbey Vocational School | Distance | 9.9km | Pupils | 999 |
| School Name | Finn Valley College | Distance | 17.7km | Pupils | 424 |
School Name | Distance | Pupils | |||
|---|---|---|---|---|---|
| School Name | Finn Valley College | Distance | 17.7km | Pupils | 424 |
| School Name | St Columbas College | Distance | 17.9km | Pupils | 949 |
| School Name | St Columbas College | Distance | 17.9km | Pupils | 949 |
| School Name | Gairm Scoil Chú Uladh | Distance | 18.6km | Pupils | 96 |
| School Name | Gairm Scoil Chú Uladh | Distance | 18.6km | Pupils | 96 |
| School Name | St. Columba's Comprehensive | Distance | 21.9km | Pupils | 395 |
| School Name | St. Columba's Comprehensive | Distance | 21.9km | Pupils | 395 |
Type | Distance | Stop | Route | Destination | Provider | ||||||
|---|---|---|---|---|---|---|---|---|---|---|---|
| Type | Bus | Distance | 9.5km | Stop | Donegal | Route | 64 | Destination | Letterkenny | Provider | Bus Éireann |
| Type | Bus | Distance | 9.5km | Stop | Donegal | Route | 480 | Destination | Donegal | Provider | Bus Éireann |
| Type | Bus | Distance | 9.5km | Stop | Donegal | Route | 264 | Destination | Letterkenny | Provider | Tfi Local Link Donegal Sligo Leitrim |
Type | Distance | Stop | Route | Destination | Provider | ||||||
|---|---|---|---|---|---|---|---|---|---|---|---|
| Type | Bus | Distance | 9.5km | Stop | Donegal | Route | 292 | Destination | Donegal | Provider | Tfi Local Link Donegal Sligo Leitrim |
| Type | Bus | Distance | 9.5km | Stop | Donegal | Route | 30 | Destination | Dublin | Provider | Bus Éireann |
| Type | Bus | Distance | 9.5km | Stop | Donegal | Route | 994 | Destination | Portnoo | Provider | Tfi Local Link Donegal Sligo Leitrim |
| Type | Bus | Distance | 9.5km | Stop | Donegal | Route | 480 | Destination | Sligo | Provider | Bus Éireann |
| Type | Bus | Distance | 9.5km | Stop | Donegal | Route | 264 | Destination | Ballyshannon | Provider | Tfi Local Link Donegal Sligo Leitrim |
| Type | Bus | Distance | 9.5km | Stop | Donegal | Route | 292 | Destination | Ballyshannon | Provider | Tfi Local Link Donegal Sligo Leitrim |
| Type | Bus | Distance | 9.5km | Stop | Donegal | Route | 480 | Destination | Derry | Provider | Bus Éireann |
Your Mortgage and Insurance Tools
Check off the steps to purchase your new home
Use our Buying Checklist to guide you through the whole home-buying journey.
Budget calculator
Calculate how much you can borrow and what you'll need to save
Ad performance
- Date listed18/12/2025
- Views1,612
- Potential views if upgraded to an Advantage Ad2,628
Similar properties
€55,000
Spierstown, Clar, Donegal Town, Co. DonegalSite€55,000
Drumboarty, Letterbarrow, Co. DonegalSite€60,000
Corveen, Donegal Town, Donegal Town, Co. DonegalSite€60,000
Drumgowan, Donegal Town, Co. DonegalSite
€95,000
Upper Main Street, Donegal, Donegal Town, Co. Donegal, F94K8H11 Bed · 1 Bath · Terrace€95,000
Summerhill, Donegal Town, Co Donegal, Donegal Town, Co. DonegalSite€120,000
27a Brú Na Mara, Donegal, Donegal Town, Co. Donegal, F94CT962 Bed · 1 Bath · Apartment€145,000
8 Water Street, Donegal, Donegal Town, Co. Donegal, F94N9P72 Bed · 1 Bath · Terrace€180,000
Ashdoon Brae, Donegal, Donegal Town, Co. Donegal, F94W8W62 Bed · 1 Bath · Detached€189,000
6 Ros Mór, Donegal, Donegal Town, Co. Donegal, F94VF613 Bed · 2 Bath · Duplex€215,000
Main Street, Carrick, Co. Donegal, F94KX125 Bed · 2 Bath · House€220,000
The Heeneys, Donegal, Donegal Town, Co. Donegal, F94XYK63 Bed · 1 Bath · Detached
Daft ID: 16457794
