Carrickavee, Folio CN29227F, Ballyjamesduff, Co. Cavan, A82H6Y4
€25,000
- Selling Type:By Private Treaty
About this property
Description
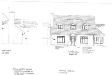
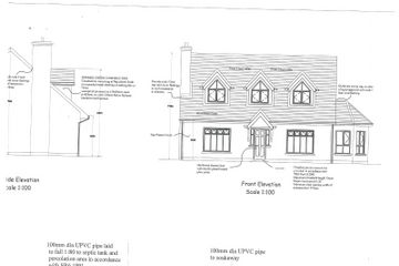
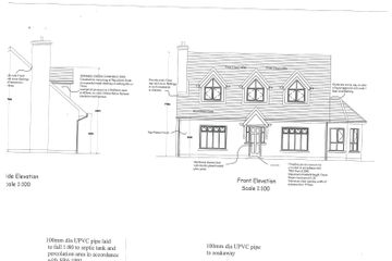
For sale by Martin Shortt Auctioneers via the iamsold Bidding Platform Please note this property will be offered by online auction (unless sold prior). For auction date and time please visit iamsold.ie. Vendors may decide to accept pre-auction bids so please register your interest with us to avoid disappointment. Circa 0.72 Acre Site – Carrickavee, Ballyjamesduff, Co. Cavan An attractive circa 0.72 acre landholding located in the popular rural area of Carrickavee, Ballyjamesduff, Co. Cavan. The property is contained within Folio CN29227F and offers excellent potential for the development of a detached family residence, subject to the necessary planning permissions. Plans are available for a spacious four-bedroom detached home, making this an ideal opportunity for owner-occupiers or self-builders seeking to create a bespoke home in a peaceful countryside setting. The site enjoys a convenient location, situated approximately 5 minutes from Ballyjamesduff, 15 minutes from Virginia, 25 minutes from Cavan Town, and circa 30 minutes from Kells, providing easy access to local services, schools and commuter routes while retaining a strong rural feel. A rare opportunity to acquire a generously sized site in a desirable and well-connected location. TO VIEW OR MAKE A BID Contact Martin Shortt Auctioneers or iamsold, www.iamsold.iw Auctioneers Comments: This property is offered for sale by unconditional auction. The successful bidder is required to pay a 10% deposit and contracts are signed immediately on acceptance of a bid. Please note this property is subject to an undisclosed reserve price. Terms and conditions apply to this sale.
The local area
The local area
Sold properties in this area
Stay informed with market trends
Local schools and transport

Learn more about what this area has to offer.
School Name | Distance | Pupils | |||
|---|---|---|---|---|---|
| School Name | Castlerahan National School | Distance | 2.6km | Pupils | 98 |
| School Name | St Clares National School | Distance | 2.9km | Pupils | 427 |
| School Name | Billis National School | Distance | 5.1km | Pupils | 83 |
School Name | Distance | Pupils | |||
|---|---|---|---|---|---|
| School Name | Mount Nugent National School | Distance | 6.1km | Pupils | 93 |
| School Name | Virginia National School | Distance | 6.5km | Pupils | 481 |
| School Name | Cnoc An Teampaill | Distance | 7.2km | Pupils | 157 |
| School Name | Crosserlough National School | Distance | 8.3km | Pupils | 92 |
| School Name | Killinkere National School | Distance | 8.3km | Pupils | 184 |
| School Name | Gilson National School | Distance | 8.4km | Pupils | 227 |
| School Name | St Fiach's National School Ballinacree | Distance | 9.5km | Pupils | 88 |
School Name | Distance | Pupils | |||
|---|---|---|---|---|---|
| School Name | St Clare's College | Distance | 2.8km | Pupils | 612 |
| School Name | Virginia College | Distance | 6.1km | Pupils | 844 |
| School Name | St Oliver Post Primary | Distance | 8.0km | Pupils | 641 |
School Name | Distance | Pupils | |||
|---|---|---|---|---|---|
| School Name | Bailieborough Community School Bailieborough Community School | Distance | 15.2km | Pupils | 751 |
| School Name | Royal School Cavan | Distance | 19.9km | Pupils | 354 |
| School Name | Castlepollard Community College | Distance | 20.7km | Pupils | 334 |
| School Name | Breifne College | Distance | 21.6km | Pupils | 893 |
| School Name | St Patrick's College | Distance | 21.7km | Pupils | 809 |
| School Name | Cnoc Mhuire | Distance | 21.8km | Pupils | 547 |
| School Name | Loreto College | Distance | 22.9km | Pupils | 689 |
Type | Distance | Stop | Route | Destination | Provider | ||||||
|---|---|---|---|---|---|---|---|---|---|---|---|
| Type | Bus | Distance | 2.1km | Stop | Moodoge | Route | 187 | Destination | Kells | Provider | Bus Éireann |
| Type | Bus | Distance | 2.1km | Stop | Moodoge | Route | 187 | Destination | Virginia | Provider | Bus Éireann |
| Type | Bus | Distance | 2.5km | Stop | Castlerahan | Route | 187 | Destination | Virginia | Provider | Bus Éireann |
Type | Distance | Stop | Route | Destination | Provider | ||||||
|---|---|---|---|---|---|---|---|---|---|---|---|
| Type | Bus | Distance | 2.5km | Stop | Castlerahan | Route | 187 | Destination | Kells | Provider | Bus Éireann |
| Type | Bus | Distance | 2.8km | Stop | Saint Clare's College | Route | 187 | Destination | Virginia | Provider | Bus Éireann |
| Type | Bus | Distance | 2.8km | Stop | Saint Clare's College | Route | 186 | Destination | Baile Ghib | Provider | Tfi Local Link Cavan Monaghan |
| Type | Bus | Distance | 2.8km | Stop | Saint Clare's College | Route | 186 | Destination | Kells | Provider | Tfi Local Link Cavan Monaghan |
| Type | Bus | Distance | 2.8km | Stop | Saint Clare's College | Route | 187 | Destination | Kells | Provider | Bus Éireann |
| Type | Bus | Distance | 2.8km | Stop | Saint Clare's College | Route | 186 | Destination | Cavan | Provider | Tfi Local Link Cavan Monaghan |
| Type | Bus | Distance | 3.0km | Stop | Ballyjamesduff | Route | 186 | Destination | Baile Ghib | Provider | Tfi Local Link Cavan Monaghan |
Your Mortgage and Insurance Tools
Check off the steps to purchase your new home
Use our Buying Checklist to guide you through the whole home-buying journey.
Budget calculator
Calculate how much you can borrow and what you'll need to save
Ad performance
- 16/01/2026Entered
- 161Property Views
- 262
Potential views if upgraded to a Daft Advantage Ad
Learn How
Similar properties
€25,000
Carrickavee TOB, Ballyjamesduff, Co. CavanSite€28,000
Kilbride, Mountnugent, Co. CavanSite€70,000
Aghacashel, Ballyjamesduff, Co. Cavan1 Bed · 1 Bath · Detached€80,000
Stradone St, Ballyjamesduff, Co. CavanSite
€80,000
Lisgrey, Virginia, Co. CavanSite€140,000
Ramonan, Ballyjamesduff, Co. CavanSite€210,000
Lismacanican, Mountnugent, Co. Cavan, A82W5982 Bed · 1 Bath · Detached€250,000
Drumroragh, Crosserlough, Co. Cavan, A82H7F24 Bed · 4 Bath · Detached€250,000
Rassan, Ballyjamesduff, Co. Cavan, A82A0V64 Bed · 4 Bath · Detached€300,000
Drumrora, Ballyjamesduff, Co. Cavan, A82KC563 Bed · 1 Bath · Bungalow€345,000
2 Elm Drive, Oldcastle Road, Ballyjamesduff, Co. Cavan, A82Y5424 Bed · 4 Bath · Detached€350,000
Crosserlough, Ballyjamesduff, Co. Cavan, A82E3Y26 Bed · 4 Bath · Bungalow
Daft ID: 16474521
