Carrickavee , Ballyjamesduff, Co. Cavan
€25,000
- Selling Type:By Private Treaty
About this property
Description
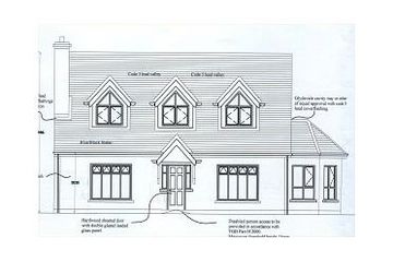
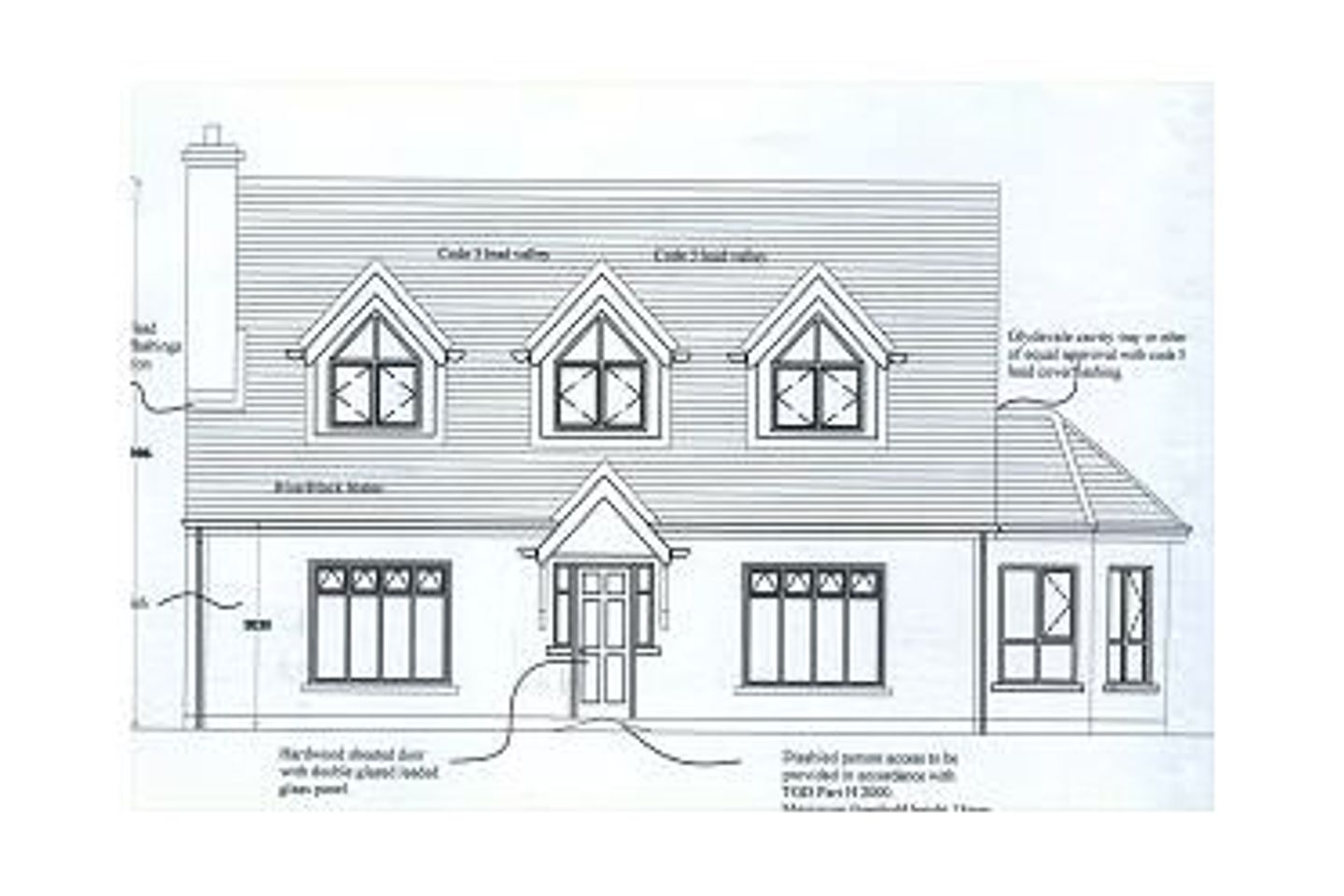
For sale by Martin Shortt Auctioneers via the iamsold Bidding Platform Please note this property will be offered by online auction (unless sold prior). For auction date and time please visit iamsold.ie. Vendors may decide to accept pre-auction bids so please register your interest with us to avoid disappointment. Circa 0.72 acre site. An attractive circa 0.72 acre landholding located in the popular rural area of Carrickavee, Ballyjamesduff, Co. Cavan. The property is contained within Folio CN29227F and offers excellent potential for the development of a detached family residence, subject to the necessary planning permissions. Plans are available for a spacious four-bedroom detached home, making this an ideal opportunity for owner-occupiers or self-builders seeking to create a bespoke home in a peaceful countryside setting. The site enjoys a convenient location, situated approximately 5 minutes from Ballyjamesduff, 15 minutes from Virginia, 25 minutes from Cavan Town, and circa 30 minutes from Kells, providing easy access to local services, schools and commuter routes while retaining a strong rural feel. A rare opportunity to acquire a generously sized site in a desirable and well-connected location. Auctioneers Comments: This property is offered for sale by online auction (unless sold prior) so please contact us early to avoid disappointment. The successful bidder is required to pay a 10% deposit and contracts are signed immediately on acceptance of a bid. Please note this property is subject to an undisclosed reserve price. Terms and conditions apply to this sale.
The local area
The local area
Sold properties in this area
Stay informed with market trends
Local schools and transport

Learn more about what this area has to offer.
School Name | Distance | Pupils | |||
|---|---|---|---|---|---|
| School Name | St Clares National School | Distance | 2.7km | Pupils | 427 |
| School Name | Castlerahan National School | Distance | 2.8km | Pupils | 98 |
| School Name | Billis National School | Distance | 5.0km | Pupils | 83 |
School Name | Distance | Pupils | |||
|---|---|---|---|---|---|
| School Name | Mount Nugent National School | Distance | 6.1km | Pupils | 93 |
| School Name | Virginia National School | Distance | 6.7km | Pupils | 481 |
| School Name | Cnoc An Teampaill | Distance | 7.4km | Pupils | 157 |
| School Name | Crosserlough National School | Distance | 8.1km | Pupils | 92 |
| School Name | Killinkere National School | Distance | 8.3km | Pupils | 184 |
| School Name | Gilson National School | Distance | 8.6km | Pupils | 227 |
| School Name | St Fiach's National School Ballinacree | Distance | 9.6km | Pupils | 88 |
School Name | Distance | Pupils | |||
|---|---|---|---|---|---|
| School Name | St Clare's College | Distance | 2.6km | Pupils | 612 |
| School Name | Virginia College | Distance | 6.3km | Pupils | 844 |
| School Name | St Oliver Post Primary | Distance | 8.2km | Pupils | 641 |
School Name | Distance | Pupils | |||
|---|---|---|---|---|---|
| School Name | Bailieborough Community School Bailieborough Community School | Distance | 15.2km | Pupils | 751 |
| School Name | Royal School Cavan | Distance | 19.6km | Pupils | 354 |
| School Name | Castlepollard Community College | Distance | 20.9km | Pupils | 334 |
| School Name | Breifne College | Distance | 21.3km | Pupils | 893 |
| School Name | St Patrick's College | Distance | 21.5km | Pupils | 809 |
| School Name | Cnoc Mhuire | Distance | 21.8km | Pupils | 547 |
| School Name | Loreto College | Distance | 22.6km | Pupils | 689 |
Type | Distance | Stop | Route | Destination | Provider | ||||||
|---|---|---|---|---|---|---|---|---|---|---|---|
| Type | Bus | Distance | 1.8km | Stop | Moodoge | Route | 187 | Destination | Kells | Provider | Bus Éireann |
| Type | Bus | Distance | 2.6km | Stop | Saint Clare's College | Route | 186 | Destination | Cavan | Provider | Tfi Local Link Cavan Monaghan |
| Type | Bus | Distance | 2.6km | Stop | Castlerahan | Route | 187 | Destination | Virginia | Provider | Bus Éireann |
Type | Distance | Stop | Route | Destination | Provider | ||||||
|---|---|---|---|---|---|---|---|---|---|---|---|
| Type | Bus | Distance | 2.8km | Stop | Ballyjamesduff | Route | 186 | Destination | Baile Ghib | Provider | Tfi Local Link Cavan Monaghan |
| Type | Bus | Distance | 2.8km | Stop | Ballyjamesduff | Route | 186 | Destination | Kells | Provider | Tfi Local Link Cavan Monaghan |
| Type | Bus | Distance | 2.8km | Stop | Ballyjamesduff | Route | 187 | Destination | Virginia | Provider | Bus Éireann |
| Type | Bus | Distance | 2.9km | Stop | Ballyjamesduff | Route | Vi04 | Destination | Cross Keys | Provider | Seamus O'Reilly |
| Type | Bus | Distance | 3.3km | Stop | Coppanagh Glebe | Route | 187 | Destination | Virginia | Provider | Bus Éireann |
| Type | Bus | Distance | 4.6km | Stop | Lisgrea | Route | 109 | Destination | Cavan Institute | Provider | Bus Éireann |
| Type | Bus | Distance | 4.6km | Stop | Lisgrea | Route | 109 | Destination | Kells | Provider | Bus Éireann |
Your Mortgage and Insurance Tools
Check off the steps to purchase your new home
Use our Buying Checklist to guide you through the whole home-buying journey.
Budget calculator
Calculate how much you can borrow and what you'll need to save
Ad performance
- Date listed22/01/2010
- Views28,037
- Potential views if upgraded to an Advantage Ad45,700
Similar properties
€25,000
Carrickavee, Folio CN29227F, Ballyjamesduff, Co. Cavan, A82H6Y4Site€26,000
Circa 1.06 acres (Folio CN35305F), Kilbride, Mountnugent, Co. CavanSite€28,000
Kilbride, Mountnugent, Co. CavanSite€70,000
Aghacashel, Ballyjamesduff, Co. Cavan1 Bed · 1 Bath · Detached
€80,000
Stradone St, Ballyjamesduff, Co. CavanSite€80,000
Lisgrey, Virginia, Co. CavanSite€100,000
Correagh Glebe, Virginia, Co. CavanSite€140,000
Ramonan, Ballyjamesduff, Co. CavanSite€149,500
Coppanagh, Virginia, Co. Cavan, Coppanagh, Co. Cavan, A82H1023 Bed · 1 Bath · Bungalow€240,000
32 Beechwood Avenue, Ballyjamesduff, Co. Cavan, A82A6Y74 Bed · 3 Bath · Semi-D€260,000
23 Oaklands Park, Ballyjamesduff, Co. Cavan, A82Y2N54 Bed · 3 Bath · Semi-D€300,000
Drumrora, Ballyjamesduff, Co. Cavan, A82KC563 Bed · 1 Bath · Bungalow
Daft ID: 1495791
