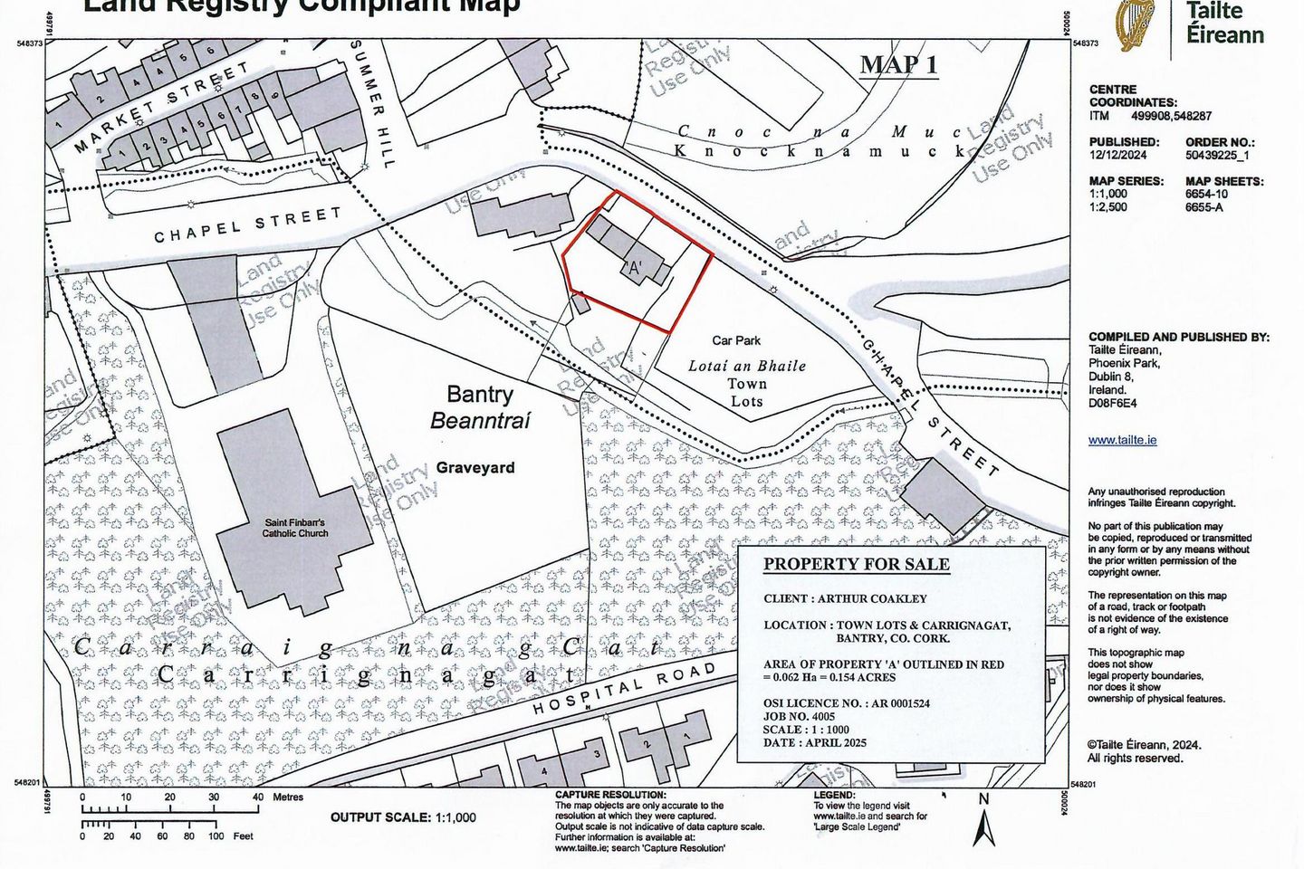
Carrignagat, Bantry, Bantry, Co. Cork
€350,000
- Selling Type:By Private Treaty
About this property
Description
SALE OF EXISTING RESIDENTIAL PLOT WITH FURTHER DEVELOPMENT POTENTIAL AT TOWN LOTS AND CARRIGANAT, BANTRY, WEST CORK. Development opportunity within Bantry town development boundary. Centrally located strategic site of ca. 0.154 acre plot with good road frontage. Consisting of three traditional dwellings including P75 TD99 and with excellent potential. Zoned residential within current Cork County Council Development Plan - Existing Residential - mixed residential and other uses. This is an ideal development opportunity for a mix of apartment and town house units. There are no listed building concerns. Existing units would be eligible for home improvement grant assistance. The site is within walking distance of Bantry general hospital, Colaiste Phobail Beanntrai and the town centre. This is a unique residential development site with mains services adjacent. PROPOSALS INVITED.
The local area
The local area
Sold properties in this area
Stay informed with market trends
Local schools and transport

Learn more about what this area has to offer.
School Name | Distance | Pupils | |||
|---|---|---|---|---|---|
| School Name | Scoil Mhuire Agus Bharra | Distance | 240m | Pupils | 341 |
| School Name | Gaelscoil Bheanntraí | Distance | 410m | Pupils | 121 |
| School Name | St Brendan's National School | Distance | 630m | Pupils | 22 |
School Name | Distance | Pupils | |||
|---|---|---|---|---|---|
| School Name | Dromore National School | Distance | 6.5km | Pupils | 67 |
| School Name | Coomhola National School | Distance | 7.2km | Pupils | 98 |
| School Name | Dromclough National School | Distance | 7.8km | Pupils | 34 |
| School Name | Derrycreha National School | Distance | 7.9km | Pupils | 27 |
| School Name | Carrigboy National School | Distance | 8.2km | Pupils | 83 |
| School Name | St James' National School Durrus | Distance | 8.7km | Pupils | 17 |
| School Name | Kealkil National School | Distance | 9.2km | Pupils | 194 |
School Name | Distance | Pupils | |||
|---|---|---|---|---|---|
| School Name | Colaiste Pobail Bheanntraí | Distance | 500m | Pupils | 766 |
| School Name | Schull Community College | Distance | 18.7km | Pupils | 359 |
| School Name | Skibbereen Community School | Distance | 19.4km | Pupils | 945 |
School Name | Distance | Pupils | |||
|---|---|---|---|---|---|
| School Name | Maria Immaculata Community College | Distance | 23.2km | Pupils | 639 |
| School Name | Scoil Mhuire | Distance | 23.9km | Pupils | 106 |
| School Name | Pobalscoil Inbhear Scéine | Distance | 24.6km | Pupils | 614 |
| School Name | Mount St Michael | Distance | 31.0km | Pupils | 379 |
| School Name | Beara Community School | Distance | 32.4km | Pupils | 298 |
| School Name | Colaiste Ghobnatan | Distance | 35.3km | Pupils | 224 |
| School Name | Clonakilty Community College | Distance | 39.1km | Pupils | 700 |
Type | Distance | Stop | Route | Destination | Provider | ||||||
|---|---|---|---|---|---|---|---|---|---|---|---|
| Type | Bus | Distance | 530m | Stop | Bantry | Route | 236 | Destination | Glengarriff | Provider | Bus Éireann |
| Type | Bus | Distance | 530m | Stop | Bantry | Route | 229 | Destination | Bantry, Stop 256041 | Provider | West Cork Connect |
| Type | Bus | Distance | 530m | Stop | Bantry | Route | 236 | Destination | Cork | Provider | Bus Éireann |
Type | Distance | Stop | Route | Destination | Provider | ||||||
|---|---|---|---|---|---|---|---|---|---|---|---|
| Type | Bus | Distance | 530m | Stop | Bantry | Route | 270 | Destination | Killarney | Provider | Bus Éireann |
| Type | Bus | Distance | 530m | Stop | Bantry | Route | 232 | Destination | Castletownbere | Provider | Tfi Local Link Cork |
| Type | Bus | Distance | 530m | Stop | Bantry | Route | 232 | Destination | Kilcrohane | Provider | Tfi Local Link Cork |
| Type | Bus | Distance | 530m | Stop | Bantry | Route | 236 | Destination | Castletownbere | Provider | Bus Éireann |
| Type | Bus | Distance | 530m | Stop | Bantry | Route | 229 | Destination | St Patricks Quay | Provider | West Cork Connect |
| Type | Bus | Distance | 530m | Stop | Bantry | Route | 270 | Destination | Bantry Via Bandon | Provider | Bus Éireann |
| Type | Bus | Distance | 530m | Stop | Bantry | Route | 236 | Destination | Bantry Via Bandon | Provider | Bus Éireann |
Your Mortgage and Insurance Tools
Check off the steps to purchase your new home
Use our Buying Checklist to guide you through the whole home-buying journey.
Budget calculator
Calculate how much you can borrow and what you'll need to save
Statistics
- 26/06/2025Entered
- 2,330Property Views
- 3,798
Potential views if upgraded to a Daft Advantage Ad
Learn How
Similar properties
€330,000
Type C1 - 3 Bedroom Semi-D, An Fulacht Fiadh (New Houses), An Fulacht Fiadh (New Houses), Bantry, Co. Cork3 Bed · 3 Bath · Terrace€330,000
Type F2 - 2 Bed Mid Terrace , An Fulacht Fiadh (New Houses), An Fulacht Fiadh (New Houses), Bantry, Co. Cork2 Bed · 3 Bath · Terrace€330,000
Type G - 2 Bed End Terrace , An Fulacht Fiadh (New Houses), An Fulacht Fiadh (New Houses), Bantry, Co. Cork2 Bed · 3 Bath · End of Terrace€330,000
Type H - 2 Bed Mid Terrace , An Fulacht Fiadh (New Houses), An Fulacht Fiadh (New Houses), Bantry, Co. Cork2 Bed · 3 Bath · Terrace
€345,000
Church Road, Bantry, Co. Cork, P75KR523 Bed · 2 Bath · Semi-D€360,000
Type C2 - 3 Bedroom End of Terrace, An Fulacht Fiadh (New Houses), An Fulacht Fiadh (New Houses), Bantry, Co. Cork3 Bed · 3 Bath · End of Terrace€360,000
Type D1 - 3 Bed Semi-D , An Fulacht Fiadh (New Houses), An Fulacht Fiadh (New Houses), Bantry, Co. Cork3 Bed · 3 Bath · Semi-D€360,000
Type D2 - 3 Bed Semi-D , An Fulacht Fiadh (New Houses), An Fulacht Fiadh (New Houses), Bantry, Co. Cork3 Bed · 3 Bath · Semi-D€375,000
Type B - 4 Bedroom Semi-D, An Fulacht Fiadh (New Houses), An Fulacht Fiadh (New Houses), Bantry, Co. Cork4 Bed · 3 Bath · Semi-D€400,000
Type E - 3 Bed Semi-D , An Fulacht Fiadh (New Houses), An Fulacht Fiadh (New Houses), Bantry, Co. Cork3 Bed · 3 Bath · Semi-D€400,000
No. 1 An Fulacht Fiadh, Bantry, Co. Cork, P75VX924 Bed · 3 Bath · Detached€495,000
The Cottage, Church Road, Bantry, Co Cork, P75F4333 Bed · 3 Bath · Detached
Daft ID: 122166892
