Corraine, Ballybofey, Altnapaste, Co. Donegal, F93H0C8
€27,500
- Selling Type:By Private Treaty
About this property
Highlights
- One of the cheapest sites in Ireland
Description
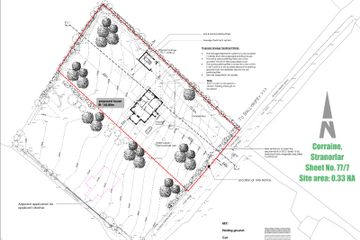
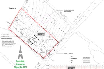
Corraine, Ballybofey — Two Adjoining Sites with Outline Planning Permission Located in the ever-popular Corraine area of Ballybofey, these two adjoining residential sites offer an excellent opportunity to build in a peaceful yet well-connected location close to town. Each site comes with outline planning permission renewed in 2025 and valid for five years, allowing a buyer to move ahead with confidence. Site 0.3 ha (approx. 0.74 acres) - €27,500 Site 0.33 ha (approx. 0.81 acres) - €27,500 Set amidst scenic countryside, this location offers a superb lifestyle — with forest walking, running, horse-riding and mountain bike trails literally at your doorstep, and Dooish National School just a short distance away. The sites combine rural peace with close proximity to Ballybofey and Stranorlar, offering easy access to shops, schools, sports facilities and all local amenities. Very keenly priced, these plots are ideal for those wishing to build their own home or for a small builder/developer seeking a manageable two-house project. Available individually or together. Martin McGowan Properties Directions F93 H0C8 NB this is to assist in finding the sites and this eircode is not for sale nor connected to the lands that are for sale.
The local area
Sold properties in this area
Stay informed with market trends
Local schools and transport

Learn more about what this area has to offer.
School Name | Distance | Pupils | |||
|---|---|---|---|---|---|
| School Name | Dooish National School | Distance | 2.5km | Pupils | 190 |
| School Name | Welchtown National School | Distance | 2.8km | Pupils | 47 |
| School Name | Sessiaghoneill National School | Distance | 5.3km | Pupils | 190 |
School Name | Distance | Pupils | |||
|---|---|---|---|---|---|
| School Name | St Mary's Stranorlar | Distance | 6.2km | Pupils | 498 |
| School Name | S N Taodhbhog | Distance | 6.4km | Pupils | 55 |
| School Name | Scoil Náisiúnta An Choimín | Distance | 7.0km | Pupils | 62 |
| School Name | Robertson National School Stranorlar | Distance | 7.1km | Pupils | 90 |
| School Name | Glencovitt National School | Distance | 7.1km | Pupils | 59 |
| School Name | Drumkeen National School | Distance | 11.1km | Pupils | 109 |
| School Name | Killygordan National School | Distance | 11.9km | Pupils | 21 |
School Name | Distance | Pupils | |||
|---|---|---|---|---|---|
| School Name | Finn Valley College | Distance | 6.2km | Pupils | 424 |
| School Name | St Columbas College | Distance | 6.3km | Pupils | 949 |
| School Name | Gairm Scoil Chú Uladh | Distance | 13.9km | Pupils | 96 |
School Name | Distance | Pupils | |||
|---|---|---|---|---|---|
| School Name | Deele College | Distance | 19.4km | Pupils | 831 |
| School Name | Loreto Secondary School, Letterkenny | Distance | 19.4km | Pupils | 944 |
| School Name | St Eunan's College | Distance | 19.5km | Pupils | 1014 |
| School Name | Coláiste Ailigh | Distance | 20.1km | Pupils | 321 |
| School Name | The Royal And Prior School | Distance | 20.2km | Pupils | 611 |
| School Name | Errigal College | Distance | 20.9km | Pupils | 547 |
| School Name | Abbey Vocational School | Distance | 22.3km | Pupils | 999 |
Type | Distance | Stop | Route | Destination | Provider | ||||||
|---|---|---|---|---|---|---|---|---|---|---|---|
| Type | Bus | Distance | 2.9km | Stop | Welchtown | Route | 988 | Destination | Letterkenny | Provider | Tfi Local Link Donegal Sligo Leitrim |
| Type | Bus | Distance | 6.0km | Stop | Ballybofey | Route | 480 | Destination | Ballybofey | Provider | Bus Éireann |
| Type | Bus | Distance | 6.0km | Stop | Ballybofey | Route | 964 | Destination | Letterkenny Bus Station | Provider | Bus Feda |
Type | Distance | Stop | Route | Destination | Provider | ||||||
|---|---|---|---|---|---|---|---|---|---|---|---|
| Type | Bus | Distance | 6.0km | Stop | Ballybofey | Route | 290 | Destination | Ballybofey | Provider | Tfi Local Link Donegal Sligo Leitrim |
| Type | Bus | Distance | 6.0km | Stop | Ballybofey | Route | 487 | Destination | Strabane | Provider | Bus Éireann |
| Type | Bus | Distance | 6.0km | Stop | Ballybofey | Route | 264 | Destination | Ballyshannon | Provider | Tfi Local Link Donegal Sligo Leitrim |
| Type | Bus | Distance | 6.0km | Stop | Ballybofey | Route | 288 | Destination | Derry Uu Magee | Provider | Tfi Local Link Donegal Sligo Leitrim |
| Type | Bus | Distance | 6.0km | Stop | Ballybofey | Route | 494 | Destination | Strabane | Provider | Bus Éireann |
| Type | Bus | Distance | 6.0km | Stop | Ballybofey | Route | 64 | Destination | Letterkenny | Provider | Bus Éireann |
| Type | Bus | Distance | 6.0km | Stop | Ballybofey | Route | 491 | Destination | Ballybofey | Provider | Bus Éireann |
Your Mortgage and Insurance Tools
Check off the steps to purchase your new home
Use our Buying Checklist to guide you through the whole home-buying journey.
Budget calculator
Calculate how much you can borrow and what you'll need to save
Ad performance
- Date listed14/11/2025
- Views3,425
- Potential views if upgraded to an Advantage Ad5,583
Properties similar to this property
Daft ID: 16346926
